1

Vila premium, de vanzare, supr 196 mp, zona Copou

490.000 €

Copou, Iași

Nr. cam.:
5
Sup. utilă:
196 mp
Sup. teren:
300 mp
Tip prop.:
Individuală
  • • Locație aproximativă
  • • Vizionare prin apel video

Descriere casă

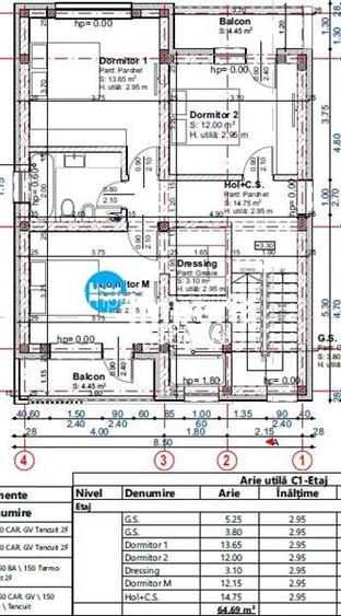
Vila Copou – locuință premium într-o zonă de top Prețuri începând de la 490.000€ + TVA Prețul diferă în funcție de parcelă | terenuri între 290 – 560 mp Vă propunem spre achiziție un ansamblu exclusivist de vile situat în zona Copou, dedicat celor care caută confort, calitate și un stil de viață modern. Imobilele sunt dispuse pe D+P+E, oferind o compartimentare eficientă: 3 dormitoare + birou dormitor la parter 4 băi Demisol cu baie, bucătărie și ieșire pe terasă Tavane înalte de 3 m Finisaje și dotări premium: Încălzire în pardoseală pe toate nivelurile Tâmplărie VEKA, izolație cu vată minerală Construcție solidă, hidroizolație profesională Aer condiționat, centrală termică Pregătire panouri fotovoltaice Sistem supraveghere + automatizare poartă Exterior complet amenajat: Curte proprie amenajată 2 locuri de parcare Toate utilitățile racordate Locație excelentă – Copou: zonă liniștită, verde, cu acces rapid către oraș. Pentru mai multe detalii sunați la numărul de telefon al consilierului imobiliar Vlad Ababei - Cod ofertă: 10008
Citește mai mult Citește mai puțin
Aer condiționat Încălzire prin pardoseală

Detalii casă

ID anunț: X3V4111GO Copiat! 275413132 Copiat!
Actualizat în: 07 Aprilie 2026
Suprafață construită: 196 mp
Suprafață desfășurată: 196 mp
Nr. băi: 4
Nr. balcoane / Terase / Logii: 3
Nr. terase: 1
Învelitoare acoperiș: data_properties.roof_type.carton
An construcție: 2026 (Finalizată)
Structură rezistență: Cărămidă
Etaj: Etaj 1 / 1
Regim înălțime: D+P+1E

Utilități

Destinație
Rezidențial
Podele
Parchet Gresie
Utilități
Apă Curent Gaze Canalizare
Internet
Fibră optică

Puncte de interes

Mijloace transport
bus-station
Statia "Stadion", linia de autobuz 41,41b,42
Stații autobuz aprox. 295 m
tram-station
Statia "Stadion", liniile de tramvai 1,8,13
Stații tramvai aprox. 306 m
bus-station
Stadion
Stații autobuz aprox. 317 m
tram-station
Stadion
Stații tramvai aprox. 337 m
Școală
school
Liceu cu Program Sportiv Iasi
Școli aprox. 239 m
school
Liceul de Informatica "Grigore Moisil"
Școli aprox. 380 m
kindergarten
GRĂDINIȚA CU PROGRAM PRELUNGIT NR. 14
Gradinițe aprox. 644 m
university
Agricultural and Veterinary Medicine University (en)
Universități aprox. 719 m
Recreere
bar
Coffe-Tarie
Bar aprox. 33 m
park
Parcul Expozitiei
Parcuri aprox. 359 m
sports-ground
Teren Rugby UA Iasi
Terenuri sport aprox. 462 m
supermarket
Supermagazin Copou
Supermarket aprox. 1016 m

Detalii despre preț și costuri

Costuri cu achiziția

Fără credit
Credit ipotecar
Noua casă

i

Costuri adiționale mai puțin știute la achiziție: taxe notariale, comisioane etc.

Insight premium disponibil după login

Proprietăți similare

Casă cu 6 camere în Copou
525.000 € + TVA
Iași, Copou
6 camere
210 mp
500 mp teren
Casă cu 4 camere în Bucium
449.000 €
Iași, Bucium
4 camere
220 mp
705 mp teren
Casă cu 5 camere în Tătărași
470.000 €
Iași, Tătărași
5 camere
203 mp
426 mp teren

Detalii de contact

Imperia Imobiliare

Vlad ABABEI CONSULTANT IMOBILIAR VANZARI PE ZONELE : Tatarasi, Copou, Bucium, Rivers Towers

Imperia Imobiliare
PRO

Abonează-te la newsletter să fii primul care primește cele mai noi recomandări de proprietăți și sfaturi de la experți.

CONTACT

Creează alertă

Salvează căutarea ca să primești pe email ultimele anunțuri publicate

Case și vile cu 4+ camere de vânzare în zona Copou, Iași