Case Complex Rezidential P+1E+POD 4 Camere-Platoul Beldiman-Iasi

159.000 €

Popas Păcurari, Iași

Nr. cam.:
4
Sup. utilă:
110 mp
Sup. teren:
263 mp
Tip prop.:
Înșiruită
  • • Comision 0%
  • • Locație aproximativă

Descriere casă

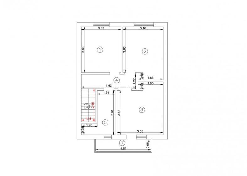
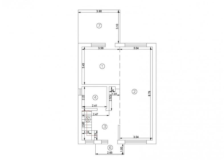
Va propunem spre vanzare mai multe case, intr-un complex rezidential deosebit, cu preturi intre 159. EURO Imobilele dispun de o suprafata utila de peste 100 mp2 si fac parte dintr-un ansamblu modern format din module de tip cvadruplex Compartimentare interioara: Parter: Hol de acces. Grup sanitar. Sufragerie luminoasa, cu zona de dining. Bucatarie deschisa, cu iesire directa spre terasa din spate (amenajata cu beton amprentat). Etaj: Hol spatios de distributie. 3 dormitoare confortabile, fiecare bine luminat natural. Grup sanitar complet utilat. Balcon cu vedere asupra curtii. Pod: Constructie solida cu placa de beton si izolatie, ideal pentru depozitare suplimentara. Facilitati exterioare: Fiecare unitate dispune de 2 locuri de parcare amenajate in fata casei. Structura rezistenta, finisaje premium ce se pot personaliza de catre proprietar Curte generoasa, cu suprafete cuprinse intre 172 si 263mp2 Panorama superba, zona foarte linistita, dar cu acces facil catre punctele de interes din zona Pentru mai multe detalii, vizionari, sau alte oferte, va asteptam cu drag la numarul de telefon afisat
Citește mai mult Citește mai puțin
Nemobilat Curte Centrală proprie Încălzire prin pardoseală

Detalii casă

ID anunț: XB8811120 Copiat! 274365875 Copiat!
Actualizat în: 09 Martie 2026
Suprafață construită: 131 mp
Nr. bucătării: 1
Nr. băi: 2
Nr. balcoane / Terase / Logii: 2
Nr. terase: 1
Front stradal: 25 m
An construcție: 2025 (Finalizată)
Structură rezistență: Cărămidă
Regim înălțime: P+1E

Utilități

Contorizare
Apometre Contor căldură Contor gaz
Diverse
Scară interioară
Alte spații utile
Dressing
Utilități
Curent Apă Canalizare Gaze Telefon
Podele
Parchet Gresie
Uși interior
Lemn
Izolații termice
Exterior Interior
Ferestre cu geam termopan
PVC

Certificat energetic:

Clasa energetică: B

Vecinătăți:

Mall Moldova, Popas Pacurari

Disponibilitate proprietate:

imediat

Puncte de interes

Mijloace transport
bus-station
Statia "Antibiotice", linia 20
Stații autobuz aprox. 1452 m
bus-station
Statia "Troita", linia 20
Stații autobuz aprox. 1566 m
bus-station
Statia "Daewoo", linia 20
Stații autobuz aprox. 1827 m
Școală
school
Scoala
Școli aprox. 1017 m
school
Scoala Noua
Școli aprox. 1398 m
Recreere
restaurant
Crystal
Restaurant aprox. 1066 m
sports-ground
Teren sportiv
Terenuri sport aprox. 1145 m
sports-ground
Teren sportiv
Terenuri sport aprox. 1520 m
restaurant
Stef
Restaurant aprox. 1588 m

Detalii despre preț și costuri

Costuri cu achiziția

Fără credit
8.360 RON
Credit ipotecar
10.147 RON
Noua casă
950 RON+ taxe notariale

i

Costuri adiționale mai puțin știute la achiziție: taxe notariale, comisioane etc.

Proprietăți recomandate

Detalii de contact

Invest Imobiliare

Rares Bucovineanu Agent Imobiliar

Invest Imobiliare
PRO

Abonează-te la newsletter să fii primul care primește cele mai noi recomandări de proprietăți și sfaturi de la experți.

CONTACT

Creează alertă

Salvează căutarea ca să primești pe email ultimele anunțuri publicate

Case și vile cu 4+ camere de vânzare în zona Popas Păcurari, Iași