ACASĂ de la prima vizită — Vilă Parter Nouă, Ansamblu Exclusiv, Investiție cu Randament Ridicat
Vila face parte dintr-un ansamblu rezidential racordat la utilitati publice, cu drumuri asfaltate si facilitati precum: statie transport public (la intrare in ansamblu), farmacie, cabinet medical, pizzerie, cafenea.
O proprietate rară pe piață, care combină confortul unei locuințe eficiente energetic cu avantajele unei investiții sigure, într-o zonă aflată în plină dezvoltare și cu creștere accelerată a valorii imobiliare.
Suprafață și teren
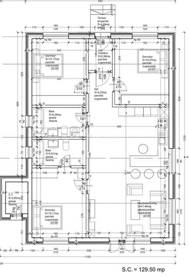
• Suprafață vilă: 130 mp
• Suprafață teren: 400 mp
• Curte liberă compactă: aproximativ 270 mp
• Terasă: 22 mp cu acces din living și dormitorul matrimonial
• Împrejmuire completă: gard beton + gard metalic înalt 2 m, culoare gri antracit
Curtea oferă spațiu generos pentru grădină, zonă de relaxare, loc de joacă, piscină sau amenajare peisagistică, păstrând în același timp intimitatea specifică unei proprietăți individuale.
Compartimentare optimă — confort maxim fără scări
Locuința este proiectată exclusiv pe parter, cel mai căutat tip de casă pentru familii și pentru revânzare ulterioară.
• 3 dormitoare mari, luminoase, cu ferestre ample
• 3 băi, fiecare cu aerisire naturală (geam)
• Living generos cu deschidere către terasă
• Înălțimea camerelor de 3 m — spațiu aerisit, lumină naturală abundentă
• Compartimentare eficientă, fără pierderi de spațiu
Absența scărilor oferă siguranță, accesibilitate și costuri reduse de întreținere pe termen lung.
Construcție solidă și eficiență energetică ridicată
Casa este realizată din materiale premium, cu accent pe durabilitate și costuri minime de exploatare.
• Zidărie din cărămidă Porotherm 30 cm
• Izolație exterioară polistiren 15 cm
• Pereți interiori din cărămidă 12 cm — izolare fonică superioară și flexibilitate la compartimentare
• Tâmplărie Salamander tripan
Sisteme moderne pentru costuri reduse
• Pompă de căldură
• Încălzire în pardoseală
• Consum energetic optimizat pentru facturi minime
Această configurație asigură confort termic constant și independență față de fluctuațiile costurilor la energie.
Avantajele ansamblului
• Vile individuale, fără pereți comuni
• Drum asfaltat
• Utilități complete din rețeaua publică
• Zonă liniștită, aerisită, cu construcții noi
• Stație de transport public în apropiere
• Comunitate în formare, cu potențial ridicat de dezvoltare
Predare
Imobilul se predă complet finisat, la cheie, pregătit pentru mutare imediată, fără investiții suplimentare.
Mobilerul se poate realiza pe comanda extra cost.
Investiție cu randament foarte bun
Proprietatea se află într-o zonă rezidențială în plină expansiune, unde cererea pentru case individuale pe parter depășește oferta. Acest tip de locuință se tranzacționează rapid și își păstrează valoarea în timp, având un potențial ridicat de apreciere.
Avantaje investiționale:
• Creștere accelerată a valorii proprietăților în zonă
• Cerere constantă din partea familiilor care părăsesc orașul
• Tip de imobil rar și foarte lichid pe piață
• Costuri de întreținere reduse, atractive pentru utilizare pe termen lung sau închiriere
• Ansamblu nou, cu infrastructură completă
VAUNT ID: 109971
Citește mai mult
Citește mai puțin
Aer condiționat
Centrală proprie
Încălzire prin pardoseală
2 Parcări
Renovat
Sediul central - Timișoara
Bulevardul Victor Babeș nr. 2, 300230, Timișoara, România
Tel: +40.374.40.44.98 / Fax: +40.256.401.179
Email: suport@imobiliare.ro
Luni - Vineri 08:00 - 20:00
Punct de lucru - București: Iride Business Park, Bld. Dimitrie
Pompeiu 9-9A, Clădirea B2B,
020335, Sector 2, București, România
CONTACT
Sediul central - Timișoara
Bulevardul Victor Babeș nr. 2, 300230, Timișoara, România
Tel: +40.374.40.44.98 / Fax: +40.256.401.179
Email: suport@imobiliare.ro
Luni - Vineri 08:00 - 20:00
Punct de lucru - București: Iride Business Park, Bld. Dimitrie
Pompeiu 9-9A, Clădirea B2B,
020335, Sector 2, București, România
Sună acum și cere detalii sau programează o vizionare.
Cere detalii prin email
*
*
*
*
Aeroporturi
Gradinițe
Supermarket
Parcări
Terenuri sport
Aeroportul International Henri Coanda (OTP)
aprox.
1605 m
Aeroportul Internațional Henri Coandă București (Otopeni)
aprox.
1694 m
Gradinita numarul 1
aprox.
1858 m
Mega Image Otopeni-Tunari
aprox.
440 m
Parcare
aprox.
1223 m
Parcare
aprox.
1240 m
Parcare
aprox.
1427 m
Parcare
aprox.
1557 m
Parcare
aprox.
1578 m
Parcare
aprox.
1654 m
Parcare
aprox.
1673 m
Teren sportiv
aprox.
1826 m
Înainte să pleci...
Ești sigur că ai văzut și aceste proprietăți?
215.000 €
Județul Ilfov, Otopeni
5 camere
174 mp
200 mp teren
230.000 €
Județul Ilfov, Otopeni
4 camere
120 mp
200 mp teren
225.000 €
Județul Ilfov, Otopeni
4 camere
143 mp
250 mp teren
Creează alertă
Salvează căutarea ca să primești pe email ultimele anunțuri publicate
Case și vile cu 4+ camere de vânzare în Otopeni, Județul Ilfov
Cere detalii prin email
*
*
*
*
Detaliile tale de contact vor fi partajate cu City Nord
Preț total1.115.943 RON (219.031 €)
Costuri cu achiziția10.350 RON
Preț de achiziție1.105.593 RON
Costuri cu achiziția10.350 RON
Comision agenție Întreabă agenţia
Onorariu notarial8.692 RON
Taxă înscriere OCPI1.658 RON
Preț de achiziție1.105.593 RON
Preț locuință1.105.593 RON
TVA 0%Inclus în prețul cerut
Cost total181.111 RON (35.547 €)
Avans (15%)165.839 RON
Cost achitat în prima lună2.888 RON
Costuri cu achiziția12.384 RON
Cost achitat în prima lună2.888 RON
Comision analiză dosar
400 RON - 900 RON
Taxă evaluare imobil(până la)
900 RON
Rata lunară (variabilă)4.925 RON
Asigurare anuală imobil1.106 RON
Arhivă electronică102 RON
Poliță PAD130 RON
Asigurare de viață/lună Costul este variabil. În funcție de banca aleasă, procentul variază între 0.0259% și 0.035% din soldul creditului.
Costuri cu achiziția12.384 RON
Comision agenție Întreabă agenţia
Onorariu notarial8.692 RON
Taxă întabulare OCPI1.658 RON
Autentificare contract credit2.034 RON
Preț de achiziție1.105.593 RON
Preț locuință1.105.593 RON
TVA 0%Inclus în prețul cerut
Preț de achiziție1.105.593 RON
Preț locuință1.105.593 RON
TVA 0%
Inclus în prețul cerut
Avans minim499.300 RON
Credit pe 30 de ani606.293 RON
Cost achitat în prima lună
Taxa evaluare imobil(până la)
900 RON
Rata lunară (variabilă)4.260 RON
Depozit colateral12.780 RON
Comision de garantare FNGCIMM92 RON
Asigurare anuală imobil1.106 RON
Poliță PAD130 RON
Tarif arhivă electronică102 RON
Costuri adiționale1.246 RON + taxe notariale
Asigurare viață și complexă (opțională)Costul este variabil. În funcție de banca aleasă, procentul variază între 0.0259% și 0.035% din soldul creditului
Onorariu notarialconform tarif notarial
Taxă întabulare OCPI1.246 RON
i
Toate valorile de mai sus sunt estimative și nu reprezintă în mod obligatoriu costurile exacte pe care le veți primi de la companiile/instituțiile prin care veți încheia tranzacția.