4

Casa la rosu / 1.328 mp teren / AC valabila / Otopeni 9 Mai

294.367 €

Otopeni, Județul Ilfov

Nr. cam.:
6
Sup. utilă:
240 mp
Sup. teren:
1.328 mp
Tip prop.:
Altele
  • • Comision 0%
  • • Locație exactă

Descriere casă

Proprietar, vand teren intravilan cu constructie noua (2025), neterminata, situat în Otopeni, pe strada 9 Mai, la doar 300 m de DN1 și aproximativ 500 m de viitoarea stație de metrou. Poziția este ideală atât pentru o casă generoasă, cât și pentru dezvoltarea unui proiect de vile. Pe teren a fost începută construcția unei case P+M, cu autorizație valabilă și documentație completă. În acest moment sunt realizate fundația, zidăria și placa de beton. Proprietatea se vinde la acest pret in stadiul actual, urmand ca viitorul proprietar sa finalizeze constructia. Detalii construcție: • Regim de înălțime: P+M • Suprafață utilă totală: 278 mp • Parter: 167 mp • Mansardă: 111 mp • Construcție începută în 2025 Un avantaj important este posibilitatea de extindere a terenului până la aproximativ 3.000 mp — ceea ce îl face foarte potrivit pentru un proiect de vile, oferind spațiul necesar pentru o dezvoltare coerentă. Zona este una centrală, cu acces facil și infrastructură completă de utilități. Vecinătățile sunt deja formate, cu locuințe finalizate și bine întreținute, ceea ce oferă un cadru plăcut și stabil. VAUNT ID: 108138
Citește mai mult Citește mai puțin
Grădină

Detalii casă

ID anunț: X7QH1128H Copiat! 274325716 Copiat!
Actualizat în: 20 Aprilie 2026
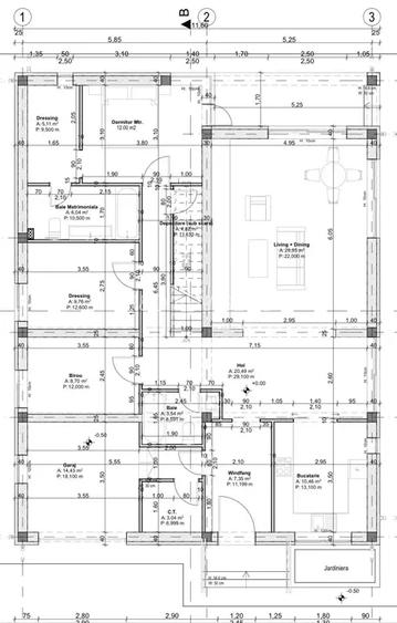
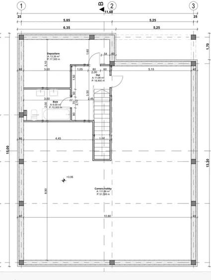
Suprafață utilă totală: 240 mp
Suprafață construită: 167 mp
Suprafață desfășurată: 278 mp
Nr. băi: 3
Front stradal: 4 m
An construcție: 2025 (În construcție)
Structură rezistență: Beton
Regim înălțime: P+1E+M

Utilități

Destinație
Rezidențial
Alte spații utile
Dressing WC Serviciu
Amenajare străzi
Mijloace de transport în comun Iluminat stradal Asfaltate
Comision
0%

Puncte de interes

Mijloace transport
bus-station
Statia Amco, linia 783
Stații autobuz aprox. 1264 m
bus-station
Statia Pasaj Otopeni, linia 149,304
Stații autobuz aprox. 1955 m
Școală
school
Liceul Teoretic Ioan Petrus - Corp 2
Școli aprox. 397 m
school
Liceul Teoretic Ioan Petrus - Corp 1
Școli aprox. 412 m
kindergarten
Gradinita numarul 1
Gradinițe aprox. 1071 m
Recreere
restaurant
"La Iancu" Restaurant
Restaurant aprox. 336 m
supermarket
Mega Image Otopeni
Supermarket aprox. 422 m
park
Rond Primaria Otopeni
Parcuri aprox. 567 m
sports-ground
Teren sportiv
Terenuri sport aprox. 1312 m

Detalii despre preț și costuri

Costuri cu achiziția

Fără credit
Credit ipotecar
Noua casă

i

Costuri adiționale mai puțin știute la achiziție: taxe notariale, comisioane etc.

Insight premium disponibil după login

Proprietăți recomandate

Detalii de contact

R&D ADVISERS

Corina Sandulescu

R&D ADVISERS
PRO

Abonează-te la newsletter să fii primul care primește cele mai noi recomandări de proprietăți și sfaturi de la experți.

CONTACT

Creează alertă

Salvează căutarea ca să primești pe email ultimele anunțuri publicate

Case și vile cu 4+ camere de vânzare în Otopeni, Județul Ilfov