Casa 4 Camere Individuala Otopeni | Pozitie Buna | Complex Aerisit

265.000 €

Otopeni, Județul Ilfov

Nr. cam.:
4
Sup. utilă:
126 mp
Sup. teren:
250 mp
Tip prop.:
Altele
  • • Locație aproximativă

Descriere casă

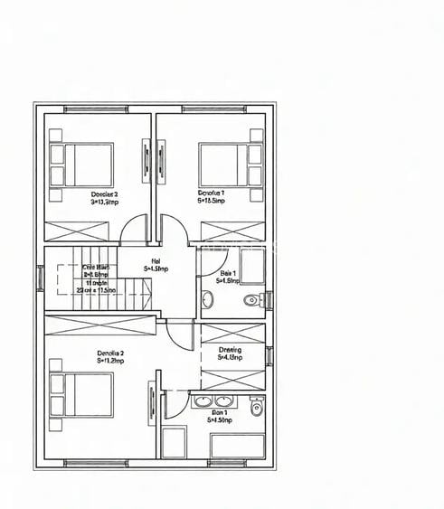
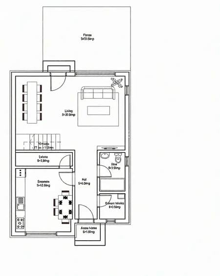
Faza I este comple vanduta! Casele aflate acum in constructie se vor finaliza in luna decembrie. Într-o zonă calmă și bine cotată din Otopeni, în cartierul Odăi, se află această casă individuală, gândită pentru cei care își doresc liniște, siguranță și confort. Proprietatea face parte dintr-un ansamblu rezidențial nou, unde intimitatea și comunitatea selectă sunt priorități. Locuința se desfășoară pe parter, etaj și pod, având o suprafață utilă de 125 mp și o suprafață construită de 164 mp. Terenul aferent este generos, existând două variante de achiziție: 242 mp sau 268 mp, la care se adaugă o cotă de 50 mp din drumul de servitute. Casa se predă complet finisată, la cheie, la prețul de 265.000 euro TVA inclus pentru terenul de 242 mp, respectiv 270.000 euro TVA inclus pentru terenul de 268 mp. La parter, spațiul este organizat astfel încât să ofere funcționalitate și confort zilnic: un living luminos, o bucătărie închisă cu debara, o baie, o cameră tehnică, dar și o terasă exterioară amenajată, ideală pentru momentele de relaxare în aer liber. Etajul este dedicat zonei de noapte și cuprinde două dormitoare deservite de o baie comună, un hol generos, precum și un dormitor matrimonial ce beneficiază de baie proprie și dressing. Podul, izolat corespunzător, oferă un spațiu practic de depozitare. Casa este racordată la toate utilitățile necesare: apă curentă, gaze naturale și curent electric trifazic. Dispune de fosă septică ecologică, iar canalizarea este deja pregătită la nivelul complexului. Un avantaj major al acestei proprietăți îl reprezintă faptul că este o casă individuală, nu duplex, oferind astfel un plus de intimitate. Accesul este rapid către DN1, Aeroportul Otopeni, școli și magazine, Penny Odăi fiind situat foarte aproape. Zona este una rezidențială matură, cu infrastructură completă și vecini de calitate, fiind un mediu sigur și liniștit, perfect pentru familii cu copii. Această locuință reușește să îmbine armonios confortul urban cu intimitatea și echilibrul unei case bine amplasate în nordul Capitalei. Vino sa vezi cu ochii tai! VAUNT ID: 113881
Citește mai mult Citește mai puțin
Curte Curte comună Centrală proprie Încălzire prin pardoseală 2 Parcări

Detalii casă

ID anunț: X7QH112E3 Copiat! 275391099 Copiat!
Actualizat în: 01 Aprilie 2026
Tip tranzacție: De vânzare prin agent
Suprafață utilă totală: 126 mp
Suprafață construită: 156 mp
Nr. băi: 3
Nr. terase: 1
Învelitoare acoperiș: Tabla
An construcție: 2026 (În construcție)
Modalitate de plată: Cash sau Credit

Utilități

Destinație
Rezidențial
Pereți
Faianță Vopsea lavabilă
Podele
Gresie
Ușă intrare
Metal Parchet
Uși interior
Celulare
Izolații termice
Exterior
Ferestre cu geam termopan
PVC
Contorizare
Apometre Contor gaz
Diverse
Scară interioară Telecomandă poartă acces auto
Alte spații utile
Spațiu depozitare Dressing WC Serviciu
Facilități imobil
Acoperiș
Utilități
Curent Apă Gaze
Internet
Cablu Fibră optică
Amenajare străzi
Mijloace de transport în comun Iluminat stradal Asfaltate

Certificat energetic:

Clasa energetică: A

Puncte de interes

Mijloace transport
bus-station
Statia Sat Odai, linia 304
Stații autobuz aprox. 1058 m
bus-station
Statia Amco, linia 783
Stații autobuz aprox. 1072 m
bus-station
Statia Pasaj Otopeni, linia 149,304
Stații autobuz aprox. 1295 m
bus-station
Statia I.C.S.I.M, linia 304
Stații autobuz aprox. 1321 m
Școală
kindergarten
Gradinita cu program prelungit nr. 2 Otopeni
Gradinițe aprox. 726 m
university
Academia Națională de Informații "Mihai Viteazul"
Universități aprox. 1538 m
school
Liceul Teoretic Ioan Petrus - Corp 1
Școli aprox. 1650 m
school
Liceul Teoretic Ioan Petrus - Corp 2
Școli aprox. 1685 m
Recreere
restaurant
Complexul Ambasad'Or
Restaurant aprox. 605 m
sports-ground
Teren sportiv
Terenuri sport aprox. 752 m
park
La Lac
Parcuri aprox. 1657 m
supermarket
Mega Image Otopeni
Supermarket aprox. 1998 m

Detalii despre preț și costuri

Costuri cu achiziția

Fără credit
Credit ipotecar
Noua casă

i

Costuri adiționale mai puțin știute la achiziție: taxe notariale, comisioane etc.

Acces la informații premium după autentificare
Login Gratuit

Proprietăți similare

Casă cu 5 camere în Exterior Sud
279.000 €
Județul Ilfov, Otopeni
5 camere
140 mp
200 mp teren
Casă cu 6 camere în Otopeni
242.000 €
Județul Ilfov, Otopeni
6 camere
160 mp
220 mp teren
Casă cu 5 camere în Odăi
275.000 €
Județul Ilfov, Otopeni
5 camere
140 mp
100 mp teren

Detalii de contact

R&D ADVISERS

Gabriela Andrei Project Manager

4.92(4 review-uri)

R&D ADVISERS
PRO

Abonează-te la newsletter să fii primul care primește cele mai noi recomandări de proprietăți și sfaturi de la experți.

CONTACT

Creează alertă

Salvează căutarea ca să primești pe email ultimele anunțuri publicate

Case și vile cu 4+ camere de vânzare în Otopeni, Județul Ilfov