vila la alb/4cam,2bai+parcare/centru Popesti Leordeni

170.000 €

Popești-Leordeni, Județul Ilfov

Nr. cam.:
4
Sup. utilă:
87,25 mp
Sup. teren:
86 mp
Tip prop.:
Înșiruită
  • • Comision 0%
  • • Locație aproximativă

Descriere casă

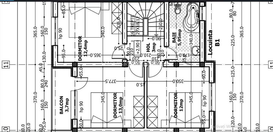
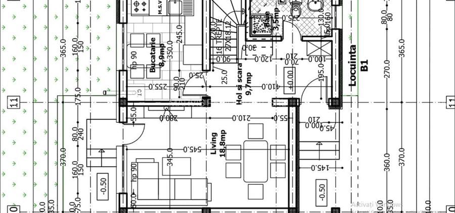
Comision 0%, direct dezvoltator. Foto reale din vila promovata. Pentru vizionari/informatii, apelati: . Se accepta cash/credit. Vila insiruita, gata(acte gata, toate utilitatile, semifinisata), la alb, avand utilitatile orasului, doar sa va alegeti finisajele preferate(montajul va dura 25-30 zile calendaristice). Ansamblu de vile insiruite, gata, doar va alegeti finisajele si se preda la cheie), ce pune la dispozitie vile insiruite, compuse din 4 camere si dependinte, incluzand in pret si un loc de parcare, intr-un buget alocat(precizat mai jos), dar pe care-l puteti gestiona cum doriti si il puteti suplimenta in functie de necesitatile Dvs. Imobilele au la parter hol, bucatarie inchisa generoasa, living si baie cu cabina de dus, iar la etaj - 3 dormitoare, baie si hol. Ambele bai au aerisire naturala.Accesul in pod se face printr-o trapa cu scara, de lemn, rabatabila. Din living este accesul catre curte. Curtea are o suprafata de aproximativ 35mp. Fiecare casa este acoperita cu tabla Bilka de 0.5mm grosime, culoare gri mat. In pod este prevazuta o fereastra tip velux de 55/98 cm pentru ventilatie si lumina naturala. Podul este izolat cu spuma(se preda ca atare) si are o suprafata utila de aproximativ 60mp, se preda finisat/compartimentat contra cost, daca se doreste. Toate coloanele de apa, canalizare, termoficare, curent, cablu tv si internet sunt trase pana in pod, pentru cazul in care se doresc amenajari suplimentare. Geamurile sunt de termopan marca Salamander, gri la exterior si alb la interior prevazute cu glafuri exterioare vopsite in camp electrostatic, culoarea gri. Usa de intrare este metalica avand culoarea gri. Casele dispun de centrale in condensare de 24kw, iar incalzirea este mixta, respectiv, parterul cu incalzire in pardoseala(fara baie) si radiatoare de otel in bai si la etaj. Baia de la parter are cabina de dus(tip walk-in, cu rigola), wc si lavoar, iar cea de la etaj cada, wc si lavoar. Exteriorul este izolat cu termosistem de 10 cm grosime. Balconul este placat cu gresie de exterior si are balustrada metalica. Gardul pe spate este din elemente prefabricate din beton cu decor iar intre case stalpi metalici si gard dublu asa cum se vede in fotografii. Curtea se preda amenajata(cum se vede in fotografii), avand alee de beton pe langa casa cu latimea de 80cm. Locurile de parcare si drumul de acces sunt betonate si sunt alocate prin cota indiviza 1/12 incluse in pret. Fiecare casa este contorizata individual la apa/gaz/curent. Usile de interior de calitate, marca Classen/pline cu toc reglabil. Bugete finisaje: gresie,faianta/60lei/mp, parchet+accesorii/50lei/mp, usi interior/800 lei( toc reglabil+montaj inclus), obiecte sanitare baie/2000lei/baie parter si, 2500lei/baie etaj. Curtea este amenajata cu pavele, respectiv 0.8 m de lângă casa și o terasă de aproximativ 3.5x4=14mp. total pavaj 18 mp pe unitate.
Citește mai mult Citește mai puțin
Nemobilat Grădină Curte comună Calorifere Centrală proprie Încălzire prin pardoseală 1 Parcare

Detalii casă

ID anunț: XA1A1109S Copiat! 275304752 Copiat!
Actualizat în: 25 Martie 2026
Suprafață construită: 51 mp
Suprafață desfășurată: 114 mp
Nr. bucătării: 1
Nr. băi: 2
Nr. balcoane / Terase / Logii: 1
Nr. terase: 1
Suprafață terase: 14 mp
Front stradal: 8.0 m
Învelitoare acoperiș: Tabla
An construcție: 2024 (Finalizată)
Structură rezistență: Beton
Regim înălțime: P+1E

Utilități

Pereți
Faianță Vopsea lavabilă
Podele
Gresie Parchet
Ușă intrare
Metal
Uși interior
Lemn PVC Sticlă
Izolații termice
Exterior
Ferestre cu geam termopan
PVC
Contorizare
Apometre Contor gaz
Electrocasnice
TV
Alte spații utile
WC Serviciu
Facilități imobil
Acoperiș
Utilități
Curent Apă Canalizare CATV Gaze Telefon
Internet
Cablu
Amenajare străzi
Iluminat stradal Mijloace de transport în comun Asfaltate
Comision
0%

Vecinătăți:

Primarie - centru Popesti-Leordeni, str.Scolii, str. Viilor

Disponibilitate proprietate:

data_properties.property_availability.Imediat

Puncte de interes

Mijloace transport
bus-station
Viilor
Stații autobuz aprox. 608 m
bus-station
Facului
Stații autobuz aprox. 773 m
tram-station
ROMPRIM
Stații tramvai aprox. 1959 m
metro-station
Dimitrie Leonida (M2)
Stații metrou aprox. 1970 m
Școală
school
Scoala nr. 2
Școli aprox. 498 m
school
Scoala cu clasele I-VIII nr. 2
Școli aprox. 498 m
school
Scoala nr. 1
Școli aprox. 893 m
school
Liceul Teoretic Radu Popescu
Școli aprox. 943 m
Recreere
park
Parc
Parcuri aprox. 419 m
supermarket
Mega Image
Supermarket aprox. 699 m
restaurant
Casa Teca
Restaurant aprox. 707 m
sports-ground
Teren sportiv
Terenuri sport aprox. 921 m

Detalii despre preț și costuri

Costuri cu achiziția

Fără credit
8.742 RON
Credit ipotecar
10.577 RON
Noua casă
1.007 RON+ taxe notariale

i

Costuri adiționale mai puțin știute la achiziție: taxe notariale, comisioane etc.

Proprietăți similare

Casă cu 4 camere în Central
170.000 €
Județul Ilfov, Popești-Leordeni
4 camere
96 mp
80 mp teren
Casă cu 4 camere în Central
170.000 €
Județul Ilfov, Popești-Leordeni
4 camere
130 mp
80 mp teren
Casă cu 4 camere în Central
170.000 €
Județul Ilfov, Popești-Leordeni
4 camere
96 mp
80 mp teren

Detalii de contact

MARVIS REZIDENTIAL SRL

Viorel Nica Broker Imobiliar

MARVIS REZIDENTIAL SRL

Abonează-te la newsletter să fii primul care primește cele mai noi recomandări de proprietăți și sfaturi de la experți.

CONTACT

Creează alertă

Salvează căutarea ca să primești pe email ultimele anunțuri publicate

Case și vile cu 4+ camere de vânzare în Popești-Leordeni, Județul Ilfov