Vilă la munte / Proprietate investițională – Predeal

249.900 €

Predeal, Județul Brașov

Nr. cam.:
6
Sup. utilă:
207,2 mp
Sup. teren:
400,72 mp
Tip prop.:
Individuală
  • • Comision 0%
  • • Exclusivitate
  • • Locație exactă

Descriere casă

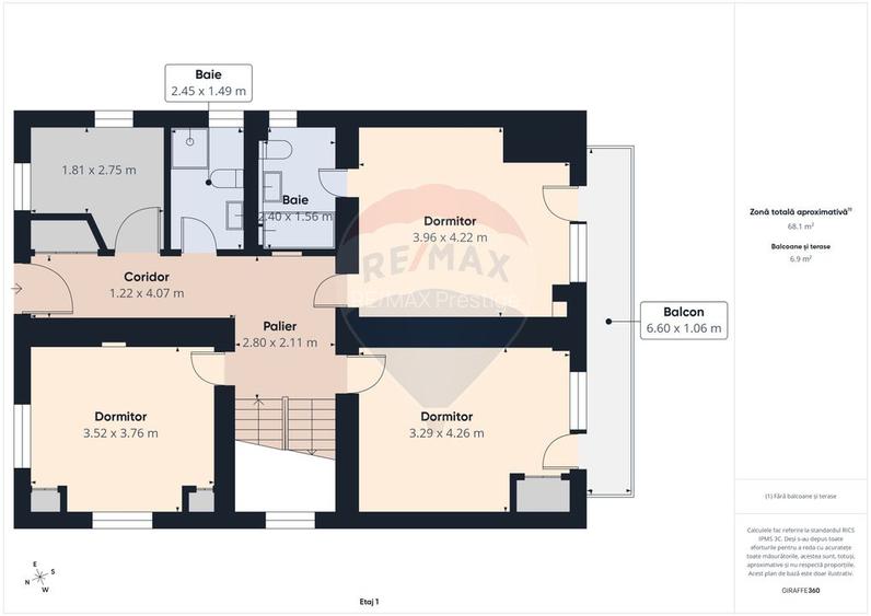
Casă investițională de vânzare – Predeal, Poiana Narciselor nr. 25 Vă propunem spre vânzare o vilă situată într-un cartier de case din Predeal, în imediata apropiere a pădurii, ideală atât ca locuință de vacanță, cât și ca proprietate investițională pentru închiriere în regim turistic. Imobilul beneficiază de acces din două străzi, oferind flexibilitate excelentă pentru utilizare și exploatare. Construcția este realizată în anul 2005, pe structură de beton și BCA, cu placă de beton între etaje. Mansarda este termoizolată, iar acoperișul este din tablă Lindab. Proprietatea se vinde mobilată și utilată și dispune de șemineu funcțional. În curte există spațiu de parcare, iar exteriorul este completat de o terasă generoasă cu grătar, cu acces direct către curte. Suprafața terenului este de 400,72 mp, din care curtea liberă reprezintă 299,42 mp. Amprenta la sol este de 101 mp. Casa are o suprafață utilă de 207,2 mp și o suprafață construită desfășurată de 304 mp. Imobilul este dispus pe demisol locuibil, parter și mansardă și cuprinde 6 camere, dintre care 5 dormitoare și un living, precum și 5 băi. Întreaga proprietate beneficiază de centrală termică proprie și calorifere, asigurând confort și control eficient al încălzirii. Demisolul are o suprafață utilă de 68,7 mp și include o terasă de 35,8 mp cu grătar. Compartimentarea cuprinde bucătărie complet echipată, living, baie, cameră tehnică și spații de depozitare. Parterul are 68,1 mp utili și un balcon de 6,9 mp. Aici regăsim 3 dormitoare, dintre care unul cu baie proprie, două dormitoare cu acces la balcon, o baie pe hol și o cameră de depozitare. Mansarda dispune de 70,4 mp utili, la care se adaugă balcoane în suprafață de 9 mp. Compartimentarea include două camere mari, fiecare cu balcon și baie proprie, plus spații de depozitare. Datorită compartimentării eficiente, numărului mare de băi, curții libere și accesului facil, proprietatea se pretează foarte bine atât pentru utilizare personală ca vilă de vacanță, cât și pentru exploatare în regim turistic. Preț: 249.900 euro. Vă așteptăm la vizionare.
Citește mai mult Citește mai puțin
Mobilat Calorifere Centrală proprie Zonă de deal / munte

Detalii casă

ID anunț: XDQ01105A Copiat! 275331223 Copiat!
Actualizat în: 25 Martie 2026
Suprafață construită: 304 mp
Nr. băi: 5
Nr. balcoane / Terase / Logii: 3
Învelitoare acoperiș: Tabla
An construcție: 2005
Structură rezistență: Beton

Utilități

Pereți
Faianță Vopsea lavabilă
Podele
Gresie Parchet
Ușă intrare
Metal
Uși interior
Lemn
Izolații termice
Exterior
Ferestre cu geam termopan
PVC
Contorizare
Apometre Contor căldură Contor gaz
Bucătărie
Mobilată Utilată
Electrocasnice
Hotă
Amenajare străzi
Iluminat stradal
Comision
0%

Puncte de interes

Mijloace transport
train-station
Statia CFR Predeal
Stații tren aprox. 418 m
bus-station
Gara Predeal
Stații autobuz aprox. 420 m
Școală
kindergarten
Gradinita nr. 1
Gradinițe aprox. 168 m
school
Liceul Mihail Saulescu
Școli aprox. 635 m
school
Liceul Teoretic Mihail Săulescu
Școli aprox. 637 m
kindergarten
Gradinita 1A
Gradinițe aprox. 732 m
Recreere
restaurant
Restaurant Vatra Regala ***
Restaurant aprox. 241 m
park
Parc
Parcuri aprox. 246 m
sports-ground
Patinoar
Terenuri sport aprox. 313 m
supermarket
Supermarket
Supermarket aprox. 333 m

Detalii despre preț și costuri

Costuri cu achiziția

Fără credit
11.481 RON
Credit ipotecar
13.654 RON
Noua casă
1.413 RON+ taxe notariale

i

Costuri adiționale mai puțin știute la achiziție: taxe notariale, comisioane etc.

Proprietăți similare

Casă cu 6 camere în Cioplea
260.000 €
Județul Brașov, Predeal
6 camere
160 mp
544 mp teren
Casă cu 4 camere în Bartolomeu
235.000 €
Brașov, Bartolomeu
4 camere
102 mp
233 mp teren
Casă cu 5 camere în Hărman
245.000 €
Județul Brașov, Hărman
5 camere
171 mp
541 mp teren

Detalii de contact

RE/MAX Prestige

David Popa Sales Associate

RE/MAX Prestige
PRO

Abonează-te la newsletter să fii primul care primește cele mai noi recomandări de proprietăți și sfaturi de la experți.

CONTACT

Creează alertă

Salvează căutarea ca să primești pe email ultimele anunțuri publicate

Case și vile cu 4+ camere de vânzare în Predeal, Județul Brașov