Townhouse Avalon 4 camere | 2 Locuri Parcare |

640.000 €

Aviației, București

Nr. cam.:
4
Sup. utilă:
132 mp
Sup. teren:
102 mp
Tip prop.:
Triplex
  • • Comision 0%
  • • Locație aproximativă

Descriere casă

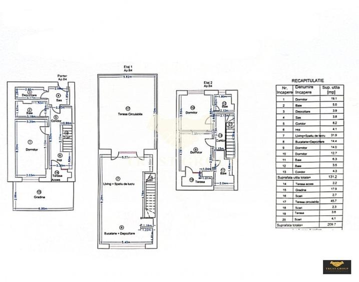
Vila de vanzare in Avalon Residence – Pipera Descopera confortul si linistea unui complex rezidential exclusivist, situat pe Bulevardul Pipera, in apropierea rondului OMV. Avalon Residence este un ansamblu modern, format din townhouse-uri si blocuri cu regim mic de inaltime, inconjurat de spatii verzi generoase si facilitati premium pentru intreaga familie: -gradina si promenada pe malul lacului -loc de joaca pentru copii -teren de baschet -piscina exterioara -sala de yoga Compartimentare vila: -Parter: un dormitor/birou, baie cu dus, camera tehnica cu masina de spalat si uscator, acces direct catre parcarea acoperita prin iesirea secundara din casa. -Etaj 1: living spatios in regim open space cu bucatarie moderna (dotata inclusiv cu bar ascuns), plus un WC de serviciu pentru oaspeti. -Etaj 2: doua dormitoare, fiecare cu baie proprie; unul dintre ele dispune de terasa/balcon deschis de 4 mp. In fata casei, chiar la intrarea principala, se afla o gradina intima de 18 mp, ideala pentru amenajari florale sau o zona verde de relaxare. In spate, in continuarea livingului de la etajul 1, se deschide o terasa generoasa de 48 mp, perfecta pentru seri in aer liber, cina cu prietenii sau spatiu de joaca pentru cei mici. Parcarea este acoperita si pozitionata chiar langa iesirea din casa, pentru un plus de comoditate. Aceasta vila imbina perfect functionalitatea, designul modern si facilitatile de lifestyle din cadrul complexului, fiind alegerea ideala pentru o familie care cauta confort si siguranta. La pretul afisat se adauga TVA. Fiecare loc de parcare are un cost aditional de 25.000€ +TVA
Citește mai mult Citește mai puțin
Mobilat Grădină Piscină Curte comună Aer condiționat Centrală proprie Încălzire prin pardoseală 2 Parcări 2 Parcări / Garaje / Parcări subterane

Detalii casă

ID anunț: XEK51115B Copiat! 275386433 Copiat!
Actualizat în: 01 Aprilie 2026
Nr. bucătării: 1
Nr. băi: 4
Nr. balcoane / Terase / Logii: 1
Nr. terase: 2
An construcție: 2023 (Finalizată)
Structură rezistență: Beton
Regim înălțime: P+2E

Utilități

Pereți
Vopsea lavabilă Faianță
Podele
Parchet Gresie
Ușă intrare
Metal
Uși interior
Lemn
Izolații termice
Exterior
Utilități
Curent Apă Canalizare Gaze
Bucătărie
Mobilată Utilată
Alte spații utile
Spațiu depozitare WC Serviciu
Facilități imobil
Videointerfon
Amenajare străzi
Asfaltate Iluminat stradal Mijloace de transport în comun

Certificat energetic:

Clasa energetică: A

Disponibilitate proprietate:

data_properties.property_availability.imediat

Puncte de interes

Mijloace transport
bus-station
Capat C.F.R Constanta linii : 112,135,445
Stații autobuz aprox. 893 m
tram-station
Rocin
Stații tramvai aprox. 1148 m
metro-station
Pipera (M2)
Stații metrou aprox. 1433 m
airport
Aeroportul Internațional Băneasa (Aurel Vlaicu) - LRBS (BBU)
Aeroporturi aprox. 1902 m
Școală
kindergarten
Gradinita Zece
Gradinițe aprox. 976 m
school
Scoala Nr.3 Voluntari
Școli aprox. 1204 m
school
Gradinita Happy Univers
Școli aprox. 1541 m
kindergarten
Echilibria 1
Gradinițe aprox. 1561 m
Recreere
restaurant
Q's Inn
Restaurant aprox. 193 m
park
spatiu verde
Parcuri aprox. 203 m
supermarket
Pipera Plaza
Supermarket aprox. 492 m
sports-ground
Teren sportiv
Terenuri sport aprox. 1716 m

Detalii despre preț și costuri

Costuri cu achiziția

Fără credit
24.884 RON
Credit ipotecar
28.715 RON
Noua casă
3.403 RON+ taxe notariale

i

Costuri adiționale mai puțin știute la achiziție: taxe notariale, comisioane etc.

Proprietăți similare

Casă cu 4 camere în Pipera
680.000 € + TVA
București, Pipera
4 camere
220 mp
437 mp teren
Casă cu 5 camere în Băneasa
653.305 € + TVA
București, Băneasa
5 camere
200 mp
198,23 mp teren
Casă cu 5 camere în Herăstrău
649.000 €
București, Herăstrău
5 camere
160 mp
190 mp teren

Detalii de contact

TRUST GROUP REAL ESTATE

Ariana Fatu Real Estate Advisor

5.00(3 review-uri)

TRUST GROUP REAL ESTATE
PRO

Abonează-te la newsletter să fii primul care primește cele mai noi recomandări de proprietăți și sfaturi de la experți.

CONTACT

Creează alertă

Salvează căutarea ca să primești pe email ultimele anunțuri publicate

Case și vile cu 4+ camere de vânzare în zona Aviației, Sector 1