30

Vila tip 3 Duplex- Mobexpert Homes Pipera

333.900 €

Pipera, București

  • • Locație exactă

Descriere casă

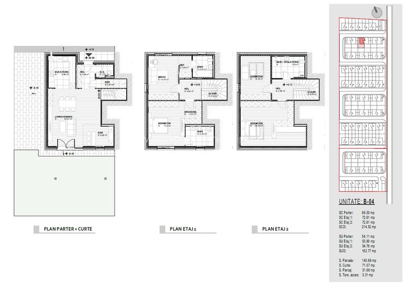
Va oferim spre vanzare vila tip duplex cu 5 camere in cadrul Proiectului Rezidential Mobexpert Homes Pipera, construita in regim de inaltime P+2M beneficiaza de 2 locuri de parcare , terasa dotata cu pergola si gradina proprie destinata relaxarii in aer liber. Compartimentata eficient, unitatea are 5 camere ce au fost concepute pentru a oferi confort. Cu o suprafata de 163 mp utili, sunt dispuse astfel: parterul este compus din zona de vestibul de 4.68 mp, grup sanitar 2.20 mp, spatiu special destinat pentru depozitare de 2.80 mp, bucataria open space 9.45 mp si living spatios si luminos de 35 mp cu acces direct catre zona de terasa si gradina. La etajul 1 compartimentarea este menita sa ofere intimitate si utilitate, fiecare dintre cele doua dormitoare beneficiind de baie proprie. Dormitorul matrimonial are o suprafata 21.66 mp si dormitorul secundar o suprafata de 17.11 mp. Etajul 2 dispune de o zona de hol de 4.83 mp, o baie comuna de 7.59 mp si 2 camere prevazute cu velux dublu: un dormitor 14.18 mp si o camera 28.14 mp pe care o puteti amenaja in functie de necesitate: dormitor, loc de joaca pentru copii, zona de dressing sau zona pentru birou. Proiectul rezidențial Mobexpert Homes Pipera, dezvoltat de antreprenorul Dan Sucu, fondatorul Grupului Mobexpert, un model de afacere 100% românesc ,cuprinde 104 vile înșiruite cu regim de înălțime P+2E, oferind suprafețe utile între 138 și 163 mp. Fiecare unitate dispune de grădină proprie, terasă dotată cu pergolă și două locuri de parcare. Proiectul Mobexpert Homes Pipera intruneste calitatile unui loc numit acasa, unde confortul devine un stil de viata. Situat în zona de nord a capitalei, pe Str. Vasile Alecsandri din Pipera, proiectul beneficiază de proximitatea celor mai bune școli și grădinițe, atât private cât și publice: Școala Americană, British School, Olga Gudynn. De asemenea, în apropiere găsiți centre comerciale și supermarketuri, precum Mega Image, Jolie Ville, Băneasa Shopping City, Pipera Plaza și LIDL. Zona oferă și multiple opțiuni de recreere și fitness, cum ar fi Atlantis Club/World Class și Grădina Zoologică, Padurea Baneasa, Parcul Regina Ana ,dar și restaurante și cafenele, inclusiv Strip Mall – Iancu Nicolae, precum și centre medicale. Departe de agitația și traficul intens din zonele principale, ansamblul nostru asigură acces rapid și ușor la ieșirea din București prin DN1, către Aeroportul Henri Coandă și către polii de birouri din zona Bulevardului Dimitrie Pompeiu și Calea Floreasca. De asemenea, veți avea acces rapid la autostrăzile A0 și A3, centura București și orașele limitrofe. Suntem bucuroși să vă informăm că la finalul anului 2024, Mobexpert Homes Pipera a finalizat 110 locuințe, iar rezidenții noștri formează deja o comunitate vibrantă, contribuind la crearea unui mediu de trai armonios și plăcut. Povestea continuă: următoarea fază a proiectului rezidențial Mobexpert Homes Pipera va include 104 locuințe de calitate excepțională, cu un design modern, într-un complex de vile tip P+2E, cu suprafețe utile între 138 mp și 163 mp. Fiecare unitate va dispune de o terasă cu grădină proprie și două locuri de parcare, fiind prevăzută cu infrastructura necesară pentru instalarea unei stații de încărcare electrică. În plus, noul complex de vile va include in proximitate un loc de joacă special amenajat pentru copii, unde cei mici pot explora, socializa și se pot bucura de activități recreative în siguranță. Acest spațiu dedicat pentru joacă este gândit pentru a încuraja interacțiunea și dezvoltarea abilităților sociale ale celor mici, contribuind astfel la formarea unei comunități unite. Gradina este un accesoriu pentru casa ta care iti va bucura fiecare zi din viata, asadar ne-am gandit sa iti amenajam zona de terasa si sa o dotam cu pergola pentru a petrece mai mult timp in aer liber alaturi de cei dragi. Stim ca siguranta este foarte importanta pentru noi si rezidentii nostri, de aceea intreg ansamblul este pazit si supravegheat 24/24h prin intermediul camerelor video fixe. Acordam o deosebita atentie la detalii, folosim finisaje de calitate premium: centrala proprie, incalzire in pardoseala + termostat prevazute in fiecare camera - pentru un confort termic optim, obiecte sanitare Waser, usi interior Italia, ceramica portelanata, unitati de aer conditionat prevazute in fiecare camera, tamplarie Schuco dotata cu geam tripan. Zona de mansardă a fost transformată în zonă de locuit, astfel încât te poți bucura de un spațiu suplimentar versatil, perfect pentru birou, loc de relaxare sau chiar cameră de joacă. Această amenajare inteligentă maximizează potențialul locuinței, oferind confort și intimitate, iar lumina naturală pătrunde generos, creând un ambient plăcut și primitor. Pentru ca dorim sa iti asiguram tot confortul, la achizitionarea oricarui tip de locuinte iti oferim Servicii de Design Interior Premium si iti punem la dispozitie propriul designer prin intermediul echipelor noastre din magazinul Mobexpert Pipera. Locuintele pot fi achizitionate prin urmatoarele modalitati de plata: cash sau credit bancar. Va invitam sa vizitati site-ul nostru Mobexpert-Homes-Pipera .Pentru o imagine cat mai completa a Proiectului Rezidential Mobexpert Homes Pipera va asteptam cu placere sa ne contactati in vederea stabilirii unei vizionari. *Cota tva se aplica conform legii in vigoare. *Pozele sunt cu titlu de prezentare.
Citește mai mult Citește mai puțin
ID anunț: XFT901001 Copiat! 260872215 Copiat!
Actualizat în: 21 Aprilie 2026

Puncte de interes

Școală
kindergarten
Kindergarden
Gradinițe aprox. 985 m
school
Scoala Discovery
Școli aprox. 1098 m
university
School American Bucharest-Voluntari
Universități aprox. 1800 m
kindergarten
Echilibria 1
Gradinițe aprox. 1907 m
Recreere
park
residential kids park
Parcuri aprox. 404 m
supermarket
Mega Image Pipera Liziera
Supermarket aprox. 1175 m
sports-ground
Teren sportiv
Terenuri sport aprox. 1574 m
cafe
Doncafe Brasserie
Cafenea aprox. 1676 m

Detalii despre preț și costuri

Costuri cu achiziția

Fără credit
Credit ipotecar
Noua casă

i

Costuri adiționale mai puțin știute la achiziție: taxe notariale, comisioane etc.

Insight premium disponibil după login

Proprietăți recomandate

Detalii de contact

Abonează-te la newsletter să fii primul care primește cele mai noi recomandări de proprietăți și sfaturi de la experți.

CONTACT

Creează alertă

Salvează căutarea ca să primești pe email ultimele anunțuri publicate

Case și vile de vânzare în zona Pipera, Sector 1