5

NEXO Nature FINALIZAT - Pipera - Vile Inteligente cu Pompe de Căldură, 230 mp

562.650 €

Pipera, București

Nr. cam.:
4
Sup. utilă:
167 mp
Sup. teren:
178 mp
Tip prop.:
Altele
  • • Comision 0%
  • • Locație exactă
  • • Vizionare prin apel video

Descriere casă

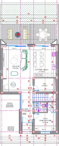
NEXO Nature este un ansamblu rezidențial compus din 14 vile individuale, fiecare având fundație, pereți și structură complet separate, cu consum energetic aproape de zero.Situat pe Strada Matei Millo în Pipera. Vilele de tip C vor fi echipate cu tehnologii moderne, precum: Vilele de tip C INTERIOR & TEHNIC •⁠ ⁠Pereți finisați la alb •⁠ ⁠Gresie în camera tehnică •⁠ ⁠Tavane plutitoare •⁠ ⁠Încălzire în pardoseală marca Uponor •⁠ ⁠Răcire cu serpentine în tavan (Uponor) •⁠ ⁠Centrală de tratare a aerului și control al umidității, plus sistem de ventilație centralizat cu recuperare de căldură •⁠ ⁠Instalație electrică completă: prize, întrerupătoare, tablou principal Smart Home cu protecții de ultimă generație •⁠ ⁠Sistem Smart Home KNX integrat (control iluminat, jaluzele, draperii, perdele, încălzire, răcire, ventilație, senzori de prezență etc.) •⁠ ⁠Cablaj pentru sistem fotovoltaic FERSTRE & ACCES •⁠ ⁠Ferestre din aluminiu Reynaers •⁠ ⁠Ușă de aluminiu de intrare (Door System), dimensiuni 1.015 x 2.350 mm, cu yală electromotor care oferă posibilitatea sa se monteze dispozitiv pentru acces prin cod, amprentă sau telefon. FAȚADE & IZOLAȚII •⁠ ⁠Fațadă ventilată, parțial riflată •⁠ ⁠Izolație termică cu vată minerală, grosime 15 cm EXTERIOR •⁠ ⁠Terasele de la parter placate cu ceramică •⁠ ⁠Terasa de la etajele 1 placata cu ceramică flotantă •⁠ ⁠Balustrade din sticlă pentru terasa de la etajul 1 •⁠ ⁠2 locuri de parcare •⁠ ⁠Amenajare spații comune cu peste 700 de plante și sistem de picurare pentru apă •⁠ ⁠Amenajare locuri de parcare pentru vizitatori SISTEME •⁠ ⁠Pompă de căldură aer - apă NIBE pentru încălzirea locuinței •⁠ ⁠Stație de filtrare pentru apa rece •⁠ ⁠Rezervor de stocare pentru apă potabilă + sistem E.sybox pentru presiune constantă Grupul NEXO este format din Nexo Instalconstruct si NEXO Imobiliare. NEXO Imobiliare este dezvoltatorul complexului NEXO Nature și este sustinător al inovației și sustenabilității. Viziunea noastră, pentru următorul deceniu, este să dezvoltăm peste 200.000 de metri pătrați de clădiri certificate verzi, ultra eficiente energetic, cu un consum aproape de zero. Fiecare clădire este supusă unor teste riguroase cu ușă suflantă, cu supra presiune de fum, pentru a asigura performanță energetică foarte ridicată. Integrăm tehnologii de construire si instalații de ultimă generație, utilizând energia din surse regenerabile, încurajăm viața care respectă echilibrul natural. NEXO Instalconstruct este ANTREPRENORUL GENERAL al complexului NEXO Nature si are ca obiect de activitate construcții cladiri de la A la Z, este o societate fondata in 2011, care are peste 150 angajati (proprii si subcontractori) si care pune accent pe construirea corecta, moderna si ultra eficienta energetic a cladirilor.
Citește mai mult Citește mai puțin
Curte Curte comună Alte metode electrice Centrală proprie Încălzire prin pardoseală 2 Parcări

Detalii casă

ID anunț: XFC401003 Copiat! 238984496 Copiat!
Actualizat în: 23 Aprilie 2026
Tip tranzacție: De vânzare prin dezvoltator
Suprafață construită: 110 mp
Suprafață desfășurată: 230 mp
Nr. bucătării: 1
Nr. băi: 3
Nr. terase: 1
Suprafață terase: 60 mp
Structură rezistență: Cărămidă
Regim înălțime: P+1E
Modalitate de plată: Cash sau Credit

Utilități

Destinație
Rezidențial
Ferestre cu geam termopan
Aluminiu
Contorizare
Apometre
Diverse
Scară interioară Telecomandă poartă acces auto
Alte spații utile
Spațiu depozitare Dressing WC Serviciu Dependințe
Utilități
Curent Curent trifazic Apă Canalizare CATV
Internet
Cablu Fibră optică
Servicii imobil
Supraveghere video
Amenajare străzi
Asfaltate Mijloace de transport în comun Iluminat stradal
Comision
0%

Vecinătăți:

– Locație excepțională: Situat pe strada Matei Millo, NEXO Nature oferă o locație privilegiată.
– Legătură cu natura: Există acces către două păduri, chiar de pe strada Matei Millo. Pădurea Miciurin este la 500 de metri distanță de NEXO Nature, iar Pădurea Andronache la 800 de metri.
– Loc de joacă perfect: La doar 5 metri distanță de NEXO Nature, primăria locală a creat un loc de joacă minunat, iar la 100 de metri un teren de baschet și mese de ping-pong, oferind un spațiu sigur și plăcut pentru copii.
– Terenuri de tenis: La doar 50 de metri.
– Experiență de alergare premium: Clienții vor savura senzația unică de a alerga pe o pistă de tartan care înconjoară parțial pădurea Miciurin, o premieră în România.
– Avangarde Kids: Grădinița se află la doar 100 de metri distanță.
- Intrarea rapida pe autostrada A3.

Puncte de interes

Mijloace transport
bus-station
statia cocorilor
Stații autobuz aprox. 1813 m
bus-station
Statia Escalei, linia 682
Stații autobuz aprox. 1986 m
Școală
school
Sediu al scolii generale cu cls. I-VIII, nr 1- oras Voluntari
Școli aprox. 1163 m
school
Gradinita
Școli aprox. 1419 m
kindergarten
Echilibria 1
Gradinițe aprox. 1486 m
school
Gradinita Happy Univers
Școli aprox. 1519 m
Recreere
sports-ground
Teren fotbal
Terenuri sport aprox. 269 m
sports-ground
Teren sportiv
Terenuri sport aprox. 1220 m
park
Parcul de Interes public Pipera- oras VOLUNTARI
Parcuri aprox. 1342 m
restaurant
Restaurant
Restaurant aprox. 1873 m

Detalii despre preț și costuri

Costuri cu achiziția

Fără credit
Credit ipotecar
Noua casă

i

Costuri adiționale mai puțin știute la achiziție: taxe notariale, comisioane etc.

Acces la informații premium după autentificare
Login Gratuit

NEXO Nature

NEXO Nature

NEXO Nature este un ansamblu rezidențial format din 14 vile individuale, fiecare cu fundație, pereți și structură complet separate, având consum energetic aproape de zero. Locuințele sunt dotate cu pompe de căldură sol-apă, răcire prin serpentine în tavan, ventilație cu recuperare de căldură, sistem Smart Home, panouri fotovoltaice, fațadă ventilat...

Vezi detalii ansamblu

Proprietăți similare

Casă cu 4 camere în Pipera
499.900 €
București, Pipera
4 camere
125 mp
355 mp teren
Casă cu 5 camere în Pipera
435.600 €
București, Pipera
5 camere
148 mp
125 mp teren
Casă cu 4 camere în Pipera
459.800 €
București, Pipera
4 camere
117 mp
140 mp teren

Detalii de contact

Abonează-te la newsletter să fii primul care primește cele mai noi recomandări de proprietăți și sfaturi de la experți.

CONTACT

Creează alertă

Salvează căutarea ca să primești pe email ultimele anunțuri publicate

Case și vile cu 4+ camere de vânzare în zona Pipera, Sector 1