Va oferim spre vanzare vila tip Townhouse cu 5 camere in cadrul noului Proiect Rezidential Mobexpert Homes Pipera, construita in regim de inaltime P+2M ,beneficiaza de 2 locuri de parcare incluse, terasa dotata cu pergola si gradina proprie destinata relaxarii in aer liber.
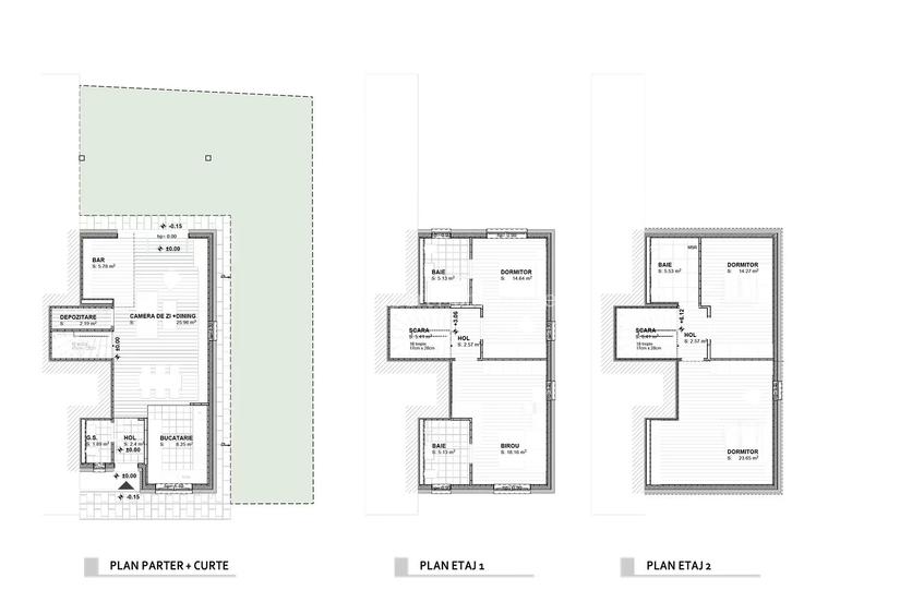
Compartimentata eficient, unitatea are 5 camere ce au fost concepute pentru a oferi confort. Cu o suprafata de 138 mp utili, sunt dispuse astfel: parterul este compus din zona de vestibul grup ,sanitar 2 mp, spatiu special destinat pentru depozitare de 2.20 mp, bucataria open space 8.25 mp si living spatios si luminos de 32 mp cu acces direct catre zona de terasa si gradina.
La etajul 1 compartimentarea este menita sa ofere intimitate si utilitate, fiecare dintre cele doua dormitoare beneficiind de baie proprie. Dormitorul matrimonial are o suprafata 18 mp si dormitorul secundar o suprafata de 14.64 mp.
Etajul 2 dispune de o zona de hol de 2,57 mp, precum si de 2 camere prevazute cu velux dublu: un dormitor cu baie proprie de 14.27 ce poate fi amenajat ca birou sau si o camera de 23.65 mp pe care o puteti amenaja in functie de necesitate: dormitor, loc de joaca pentru copii, zona de dressing.
Proiectul rezidențial Mobexpert Homes Pipera, dezvoltat de antreprenorul Dan Sucu, fondatorul Grupului Mobexpert, un model de afacere 100% românesc ,cuprinde 104 vile înșiruite cu regim de înălțime P+2E, oferind suprafețe utile între 138 și 163 mp. Fiecare unitate dispune de grădină proprie, terasă dotată cu pergolă și două locuri de parcare.
Proiectul Mobexpert Homes Pipera intruneste calitatile unui loc numit acasa, unde confortul devine un stil de viata.
Situat în zona de nord a capitalei, pe Str. Vasile Alecsandri din Pipera, proiectul beneficiază de proximitatea celor mai bune școli și grădinițe, atât private cât și publice: Școala Americană, British School, Olga Gudynn. De asemenea, în apropiere găsiți centre comerciale și supermarketuri, precum Mega Image, Jolie Ville, Băneasa Shopping City, Pipera Plaza și LIDL. Zona oferă și multiple opțiuni de recreere și fitness, cum ar fi Atlantis Club/World Class și Grădina Zoologică, Padurea Baneasa, Parcul Regina Ana ,dar și restaurante și cafenele, inclusiv Strip Mall – Iancu Nicolae, precum și centre medicale.
Departe de agitația și traficul intens din zonele principale, ansamblul nostru asigură acces rapid și ușor la ieșirea din București prin DN1, către Aeroportul Henri Coandă și către polii de birouri din zona Bulevardului Dimitrie Pompeiu și Calea Floreasca. De asemenea, veți avea acces rapid la autostrăzile A0 și A3, centura București și orașele limitrofe.
Suntem bucuroși să vă informăm că la finalul anului 2024, Mobexpert Homes Pipera a finalizat 110 locuințe, iar rezidenții noștri formează deja o comunitate vibrantă, contribuind la crearea unui mediu de trai armonios și plăcut.
Povestea continuă: următoarea fază a proiectului rezidențial Mobexpert Homes Pipera va include 104 locuințe de calitate excepțională, cu un design modern, într-un complex de vile tip P+2E, cu suprafețe utile între 138 mp și 163 mp. Fiecare unitate va dispune de o terasă cu grădină proprie și două locuri de parcare, fiind prevăzută cu infrastructura necesară pentru instalarea unei stații de încărcare electrică.
În plus, noul complex de vile va include in proximitate un loc de joacă special amenajat pentru copii, unde cei mici pot explora, socializa și se pot bucura de activități recreative în siguranță. Acest spațiu dedicat pentru joacă este gândit pentru a încuraja interacțiunea și dezvoltarea abilităților sociale ale celor mici, contribuind astfel la formarea unei comunități unite.
Gradina este un accesoriu pentru casa ta care iti va bucura fiecare zi din viata, asadar ne-am gandit sa iti amenajam zona de terasa si sa o dotam cu pergola pentru a petrece mai mult timp in aer liber alaturi de cei dragi.
Stim ca siguranta este foarte importanta pentru noi si rezidentii nostri, de aceea intreg ansamblul este pazit si supravegheat 24/24h prin intermediul camerelor video fixe.
Acordam o deosebita atentie la detalii, folosim finisaje de calitate premium: centrala proprie, incalzire in pardoseala + termostat prevazute in fiecare camera - pentru un confort termic optim, obiecte sanitare Waser, usi interior Italia, ceramica portelanata, unitati de aer conditionat prevazute in fiecare camera, tamplarie Schuco dotata cu geam tripan.
Zona de mansardă a fost transformată în zonă de locuit, astfel încât te poți bucura de un spațiu suplimentar versatil, perfect pentru birou, loc de relaxare sau chiar cameră de joacă. Această amenajare inteligentă maximizează potențialul locuinței, oferind confort și intimitate, iar lumina naturală pătrunde generos, creând un ambient plăcut și primitor.
Pentru ca dorim sa iti asiguram tot confortul, la achizitionarea oricarui tip de locuinte iti oferim Servicii de Design Interior Premium si iti punem la dispozitie propriul designer prin intermediul echipelor noastre din magazinul Mobexpert Pipera.
Locuintele pot fi achizitionate prin urmatoarele modalitati de plata: cash sau credit bancar.
Va invitam sa vizitati site-ul nostru Mobexpert-Homes-Pipera .Pentru o imagine cat mai completa a Proiectului Rezidential Mobexpert Homes Pipera va asteptam cu placere sa ne contactati in vederea stabilirii unei vizionari.
*Cota tva se aplica conform legii in vigoare.
*Pozele sunt cu titlu de prezentare.
Citește mai mult
Citește mai puțin
Grădină
Aer condiționat
Centrală proprie
Încălzire prin pardoseală
2 Parcări
Asfaltate
Betonate
Mijloace de transport în comun
Iluminat stradal
Comision
0%
Certificat energetic:
Clasa energetică:
A
Vecinătăți:
Situat în zona de nord a capitalei, pe Str. Vasile Alecsandri din Pipera, proiectul beneficiază de proximitatea celor mai bune școli și grădinițe, atât private cât și publice: Școala Americană, British School, Olga Gudynn. De asemenea, în apropiere găsiți centre comerciale și supermarketuri, precum Mega Image, Jolie Ville, Băneasa Shopping City, Pipera Plaza și LIDL. Zona oferă și multiple opțiuni de recreere și fitness, cum ar fi Atlantis Club/World Class și Grădina Zoologică, Padurea Baneasa, Parcul Regina Ana ,dar și restaurante și cafenele, inclusiv Strip Mall – Iancu Nicolae, precum și centre medicale.
Departe de agitația și traficul intens din zonele principale, ansamblul nostru asigură acces rapid și ușor la ieșirea din București prin DN1, către Aeroportul Henri Coandă și către polii de birouri din zona Bulevardului Dimitrie Pompeiu și Calea Floreasca. De asemenea, veți avea acces rapid la autostrăzile A0 și A3, centura București și orașele limitrofe.
Costuri adiționale mai puțin știute la achiziție: taxe notariale, comisioane etc.
Calculul ipotecarului
Mobexpert Homes Pipera
Proiectul rezidențial Mobexpert Homes Pipera, dezvoltat de antreprenorul Dan Sucu, fondatorul Grupului Mobexpert, un model de afacere 100% românesc ,cuprinde 104 vile înșiruite cu regim de înălțime P+2E, oferind suprafețe utile între 138 și 163 mp. Fiecare unitate dispune de grădină proprie, terasă dotată cu pergolă și două locuri de parcare.
Pr...
Sediul central - Timișoara
Bulevardul Victor Babeș nr. 2, 300230, Timișoara, România
Tel: +40.374.40.44.98 / Fax: +40.256.401.179
Email: suport@imobiliare.ro
Luni - Vineri 08:00 - 20:00
Punct de lucru - București: Iride Business Park, Bld. Dimitrie
Pompeiu 9-9A, Clădirea B2B,
020335, Sector 2, București, România
CONTACT
Sediul central - Timișoara
Bulevardul Victor Babeș nr. 2, 300230, Timișoara, România
Tel: +40.374.40.44.98 / Fax: +40.256.401.179
Email: suport@imobiliare.ro
Luni - Vineri 08:00 - 20:00
Punct de lucru - București: Iride Business Park, Bld. Dimitrie
Pompeiu 9-9A, Clădirea B2B,
020335, Sector 2, București, România
Sună acum și cere detalii sau programează o vizionare.
Nu rata ocazia să afli mai multe!
Sună acum și cere detalii sau programează o vizionare.
Cere detalii prin email
*
*
*
*
Gradinițe
Școli
Universități
Supermarket
Parcuri
Terenuri sport
Spital
Cafenea
Restaurant
Bancă
Kindergarden
aprox.
985 m
Echilibria 1
aprox.
1907 m
Scoala Discovery
aprox.
1098 m
Happy Children Academy
aprox.
1111 m
Scoala Internationala Olga Gudynn
aprox.
1197 m
Mark Twain
aprox.
1444 m
British School of Bucharest
aprox.
1551 m
Scoala Americana
aprox.
1738 m
American International School of Bucharest (en)
aprox.
1741 m
School American Bucharest-Voluntari
aprox.
1800 m
Mega Image Pipera Liziera
aprox.
1175 m
Billa
aprox.
1187 m
Mega Image Pipera-Tunari
aprox.
1208 m
Carrefour Market Pipera
aprox.
1526 m
residential kids park
aprox.
404 m
Private Skatepark (en)
aprox.
975 m
Parcul de Interes public Pipera- oras VOLUNTARI
aprox.
1659 m
Pipera
aprox.
1675 m
Teren sportiv
aprox.
1574 m
Teren sportiv
aprox.
1636 m
Teren sportiv
aprox.
1759 m
Teren sportiv
aprox.
1877 m
BIO-MEDICA International S.A-Voluntari(cartierul Pipera) (en)
aprox.
1362 m
Bio Medica Pipera
aprox.
1376 m
Doncafe Brasserie
aprox.
1676 m
Zona Pensiunii Pipera(b-dul Pipera)
aprox.
1778 m
UniCredit Bank - Ag. Pipera
aprox.
1376 m
Unicredit Tiriac Bank (en)
aprox.
1377 m
Bancpost (en)
aprox.
1884 m
BRD (en)
aprox.
1897 m
BRD - Ag. Pipera-Tunari
aprox.
1903 m
Înainte să pleci...
Ești sigur că ai văzut și aceste proprietăți?
333.900 € + TVA
București, Pipera
5 camere
163 mp
71 mp teren
264.600 € + TVA
București, Pipera
5 camere
138 mp
33 mp teren
294.762 € + TVA
București, Pipera
4 camere
138 mp
204 mp teren
249.900 € + TVA
București, Pipera
4 camere
134 mp
100 mp teren
350.000 €
București, Pipera
5 camere
186 mp
250 mp teren
275.000 € + TVA
București, Pipera
4 camere
134 mp
100 mp teren
Creează alertă
Salvează căutarea ca să primești pe email ultimele anunțuri publicate
Case și vile cu 4+ camere de vânzare în zona Pipera, Sector 1
Cere detalii prin email
*
*
*
*
Detaliile tale de contact vor fi partajate cu Mobexpert Homes Pipera
Preț total1.944.567 RON (381.729 €)
Costuri cu achiziția15.895 RON
Preț de achiziție1.928.672 RON
Costuri cu achiziția15.895 RON
Comision agenție Întreabă agenţia
Onorariu notarial13.002 RON
Taxă înscriere OCPI2.893 RON
Preț de achiziție1.928.672 RON
Preț locuință1.593.943 RON
TVA 21%334.728 RON
Cost total311.626 RON (61.173 €)
Avans (15%)289.301 RON
Cost achitat în prima lună3.711 RON
Costuri cu achiziția18.614 RON
Cost achitat în prima lună3.711 RON
Comision analiză dosar
400 RON - 900 RON
Taxă evaluare imobil(până la)
900 RON
Rata lunară (variabilă)8.591 RON
Asigurare anuală imobil1.929 RON
Arhivă electronică102 RON
Poliță PAD130 RON
Asigurare de viață/lună Costul este variabil. În funcție de banca aleasă, procentul variază între 0.0259% și 0.035% din soldul creditului.
Costuri cu achiziția18.614 RON
Comision agenție Întreabă agenţia
Onorariu notarial13.002 RON
Taxă întabulare OCPI2.893 RON
Autentificare contract credit2.719 RON
Preț de achiziție1.928.672 RON
Preț locuință1.593.943 RON
TVA 21%334.728 RON
Preț de achiziție1.928.672 RON
Preț locuință1.593.943 RON
TVA 21%
334.728 RON
Avans minim1.322.474 RON
Credit pe 30 de ani606.198 RON
Cost achitat în prima lună
Taxa evaluare imobil(până la)
900 RON
Rata lunară (variabilă)4.259 RON
Depozit colateral12.777 RON
Comision de garantare FNGCIMM161 RON
Asigurare anuală imobil1.929 RON
Poliță PAD130 RON
Tarif arhivă electronică102 RON
Costuri adiționale2.069 RON + taxe notariale
Asigurare viață și complexă (opțională)Costul este variabil. În funcție de banca aleasă, procentul variază între 0.0259% și 0.035% din soldul creditului
Onorariu notarialconform tarif notarial
Taxă întabulare OCPI2.069 RON
i
Toate valorile de mai sus sunt estimative și nu reprezintă în mod obligatoriu costurile exacte pe care le veți primi de la companiile/instituțiile prin care veți încheia tranzacția.