#The Heaven 33 - Alexander Residence

360.000 € + TVA

Pipera, București

Nr. cam.:
5
Sup. utilă:
148 mp
Sup. teren:
125 mp
Tip prop.:
Înșiruită
  • • Comision 0%
  • • Exclusivitate
  • • Locație exactă

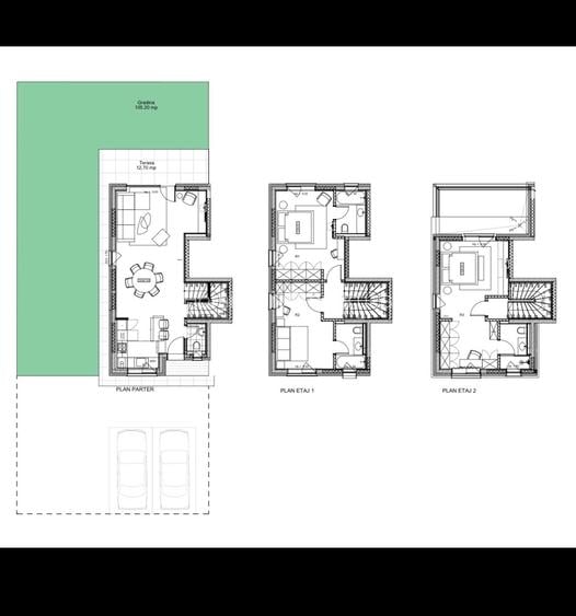
Descriere casă

Vilă premium de colț în Alexander Residence Faza 2, poziționată excelent în cadrul ansamblului și beneficiind de cea mai mare curte din fază. O proprietate rar disponibilă, ideală pentru clienții care caută spațiu exterior generos, intimitate și un standard ridicat de locuire. Locuința impresionează prin designul modern, compartimentarea eficientă și amenajarea completă, realizată în tonuri elegante și materiale atent alese. Fiecare spațiu a fost gândit pentru confort, funcționalitate și estetică. Zona de zi oferă un living amplu și luminos, cu acces direct către terasă și grădină, dining bine integrat și bucătărie modernă complet echipată. Suprafețele vitrate mari aduc lumină naturală pe tot parcursul zilei și creează o atmosferă caldă și aerisită. Etajul este dedicat zonei private, cu dormitoare spațioase, amenajate modern, băi elegante și multiple spații de depozitare. Punctul forte al proprietății îl reprezintă terenul generos și poziționarea pe colț, oferind o curte mult peste media ansamblului, perfectă pentru relaxare, zonă lounge, joacă pentru copii, animale de companie sau amenajare peisagistică premium. Avantaje principale: • vilă de colț • cea mai mare curte din Alexander Residence Faza 2 • complet mobilată și utilată • living luminos cu acces direct în grădină • bucătărie complet echipată • dormitoare elegante și confortabile • băi finisate premium • terasă amenajată • locuri de parcare • aer condiționat • proprietate gata de mutare imediată Alexander Residence este un ansamblu modern, apreciat pentru comunitatea selectă, accesibilitate și calitatea construcțiilor, fiind una dintre cele mai căutate opțiuni rezidențiale din zonă. O proprietate completă, rară prin poziționare și suprafața terenului, destinată celor care nu fac compromisuri. Pentru detalii suplimentare și programarea unei vizionări, contactați-ne.
Citește mai mult Citește mai puțin
Mobilat Lux Aer condiționat Centrală proprie Încălzire prin pardoseală 2 Parcări Renovat Bine întreținut (Bună)

Detalii casă

ID anunț: XDFE0101I Copiat! 275449724 Copiat!
Actualizat în: 18 Aprilie 2026
Nr. bucătării: 1
Nr. băi: 4
Învelitoare acoperiș: Tabla
An construcție: 2025 (Finalizată)
Regim înălțime: P+2E

Utilități

Destinație
Rezidențial De vacanță
Jaluzele
Verticale
Pereți
Vopsea lavabilă Faianță
Podele
Gresie Parchet
Rulouri/Obloane
Aluminiu
Ușă intrare
Metal
Uși interior
Lemn
Izolații termice
Exterior
Ferestre cu geam termopan
Aluminiu
Bucătărie
Utilată Mobilată
Electrocasnice
Mașină de spălat Frigider Cuptor microunde Aragaz Hotă Mașină spălat vase TV
Alte spații utile
WC Serviciu Dependințe
Utilități
Gaze Canalizare Apă Curent
Internet
Cablu Fibră optică Wireless
Servicii imobil
Administrare Supraveghere video
Amenajare străzi
Asfaltate Iluminat stradal Mijloace de transport în comun
Comision
0%

Certificat energetic:

Clasa energetică: A

Puncte de interes

Școală
kindergarten
Kindergarden
Gradinițe aprox. 667 m
school
Happy Children Academy
Școli aprox. 806 m
university
School American Bucharest-Voluntari
Universități aprox. 1591 m
kindergarten
Echilibria 1
Gradinițe aprox. 1739 m
Recreere
park
residential kids park
Parcuri aprox. 660 m
supermarket
Mega Image Pipera Liziera
Supermarket aprox. 897 m
sports-ground
Teren sportiv
Terenuri sport aprox. 1367 m
cafe
Doncafe Brasserie
Cafenea aprox. 1381 m

Detalii despre preț și costuri

Costuri cu achiziția

Fără credit
Credit ipotecar
Noua casă

i

Costuri adiționale mai puțin știute la achiziție: taxe notariale, comisioane etc.

Insight premium disponibil după login

Proprietăți similare

Casă cu 4 camere în Pipera
390.000 € + TVA
București, Pipera
4 camere
117 mp
160 mp teren
Casă cu 5 camere în Pipera
325.000 €
București, Pipera
5 camere
186 mp
190 mp teren
Casă cu 5 camere în Pipera
340.000 €
București, Pipera
5 camere
135 mp
150 mp teren

Detalii de contact

Homing In Properties

Alexandru Iulian Broker/Owner

Homing In Properties
PRO

Abonează-te la newsletter să fii primul care primește cele mai noi recomandări de proprietăți și sfaturi de la experți.

CONTACT

Creează alertă

Salvează căutarea ca să primești pe email ultimele anunțuri publicate

Case și vile cu 4+ camere de vânzare în zona Pipera, Sector 1