2

Vilă Tip Triplex P+1E+M - Parcul Teilor - Comision 0%

315.000 €

Ozana, București

Nr. cam.:
4
Sup. utilă:
124 mp
Sup. teren:
250 mp
Tip prop.:
data_properties.housing_type.house-villa
  • • Comision 0%
  • • Locație aproximativă

Descriere casă

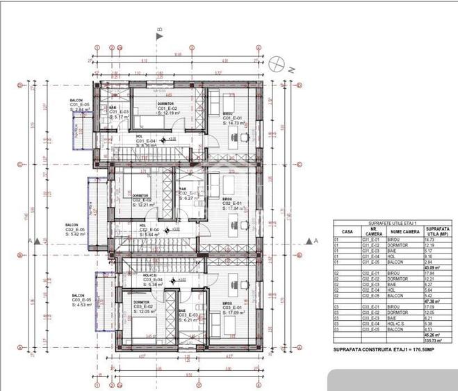
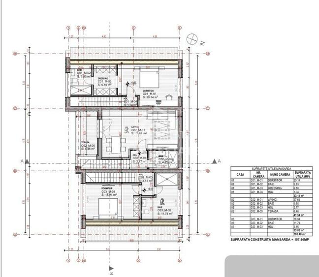
Vilă înșiruită P+1E+M | 3 camere | Zona Ozana/Parcul Teilor | 250 mp teren Smart Estates vă propune spre vânzare o vilă modernă tip triplex, amplasată într-o zonă liniștită și accesibilă din Ozana. Detalii proprietate: Regim de înălțime: Parter + Etaj + Mansardă Suprafață teren: 250 mp Curte liberă: 80 mp Compartimentare: Parter: living generos, bucătărie, baie, cămară Etaj: două dormitoare, baie, balcon Mansardă: dormitor și baie Preț proprietate: 315.000 EURO (TVA inclus) COMISION: 0% Avantaje: Locuință luminată și bine compartimentată Proiect restrâns, cu intimitate sporită Curte liberă perfectă pentru relaxare sau amenajări exterioare Pentru mai multe detalii și pentru a programa o vizionare contactați echipa Smart Estates!
Citește mai mult Citește mai puțin
Centrală proprie Bine întreținut (Bună)

Detalii casă

ID anunț: XD0M1121A Copiat! 275002054 Copiat!
Actualizat în: 02 Aprilie 2026
Tip tranzacție: De vânzare prin agent
Suprafață construită: 149 mp
Nr. bucătării: 1
Nr. băi: 3
Nr. balcoane / Terase / Logii: 1
An construcție: 2025 (În construcție)
Structură rezistență: Beton
Regim înălțime: P+2E
Modalitate de plată: Cash sau Credit

Utilități

Pereți
Vopsea lavabilă Faianță
Podele
Parchet Gresie
Ușă intrare
Metal
Uși interior
Celulare
Ferestre cu geam termopan
PVC
Contorizare
Apometre Contor căldură Contor gaz
Utilități
Curent Apă Canalizare Gaze
Amenajare străzi
Asfaltate
Comision
0%

Certificat energetic:

Clasa energetică: A

Puncte de interes

Mijloace transport
bus-station
Statia Policolor, Linia N111, 23, 27, 40
Stații autobuz aprox. 1119 m
tram-station
Policolor
Stații tramvai aprox. 1121 m
metro-station
Metrorex.Stația Nicolae Teclu (M3)(2008)
Stații metrou aprox. 1154 m
train-station
Halta Titan Sud (23 August)
Stații tren aprox. 1998 m
Școală
kindergarten
Gradinita nr. 68
Gradinițe aprox. 706 m
kindergarten
Gradinita Nr. 160 - "soarelui"
Gradinițe aprox. 1258 m
school
Școala Nr. 82
Școli aprox. 1314 m
school
Scoala Generala nr. 82
Școli aprox. 1314 m
Recreere
park
Parc
Parcuri aprox. 720 m
hypermarket
Metro
Hipermarket aprox. 1125 m
supermarket
Metro Pallady
Supermarket aprox. 1125 m
sports-ground
Teren de fotbal
Terenuri sport aprox. 1197 m

Detalii despre preț și costuri

Costuri cu achiziția

Fără credit
Credit ipotecar
Noua casă

i

Costuri adiționale mai puțin știute la achiziție: taxe notariale, comisioane etc.

Acces la informații premium după autentificare
Login Gratuit

Proprietăți similare

Casă cu 4 camere în Titan
285.000 €
București, Titan
4 camere
102 mp
150 mp teren
Casă cu 4 camere în Industriilor
310.000 €
București, Industriilor
4 camere
142 mp
180 mp teren
Casă cu 4 camere în 1 Decembrie 1918
326.700 €
București, 1 Decembrie 1918
4 camere
120 mp
150 mp teren

Detalii de contact

SMART ESTATES

Ionut Chitibea BROKER OWNER

SMART ESTATES
PRO

Abonează-te la newsletter să fii primul care primește cele mai noi recomandări de proprietăți și sfaturi de la experți.

CONTACT

Creează alertă

Salvează căutarea ca să primești pe email ultimele anunțuri publicate

Case și vile cu 4+ camere de vânzare în zona Ozana, Sector 3