Imobil multifuncțional de vânzare în Sfântu Gheorghe!

499.000 €

Simeria, Sfântu Gheorghe

Nr. cam.:
11
Sup. utilă:
236,9 mp
Sup. teren:
300 mp
Tip prop.:
Altele
  • • Locație exactă

Descriere casă

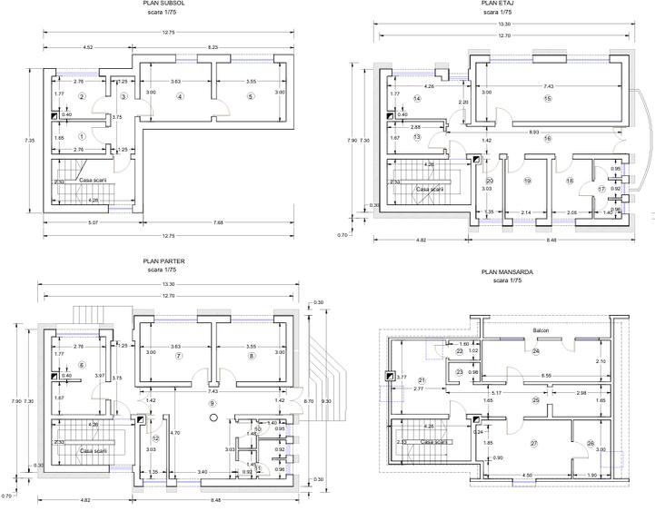
Se vinde imobil multifuncțional în Sfântu Gheorghe, ideal pentru activități medicale, comerciale și rezidențiale, cu o compartimentare excelentă pe patru subsol se află trei încăperi, camera centralei și o baie, spațiul fiind potrivit pentru laborator sau cabinete suplimentare. La parter sunt amenajate trei spații destinate activității stomatologice, dintre care unul funcționează în prezent, precum și o baie și o cameră de sterilizare. La etaj se găsesc bucătărie, dining, două camere și două băi. La mansardă sunt amenajate bucătărie, living, dormitor, birou, baie și terasă. Încălzirea se realizează cu centrală pe gaz sau pe peleți, imobilul dispune de rețea electrică trifazică și este completat de un sistem fotovoltaic cu acumulatori. Întregul imobil este dotat cu sistem de dedurizare a apei, iar apa caldă este susținută de panouri solare. Curtea dispune de carport, precum și de un loc de parcare neacoperit. Confortul este completat de robot de tuns gazonul, poartă automatizată, un puț forat și două accese separate în curte. Proprietatea se vinde complet mobilată. O oportunitate excelentă pentru clinică, cabinet medical, sediu de firmă sau investiție premium.
Citește mai mult Citește mai puțin
2 Parcări 1 Garaj Zonă de deal / munte

Detalii casă

ID anunț: XCJR010CI Copiat! 274148642 Copiat!
Actualizat în: 14 Ianuarie 2026
Nr. bucătării: 2
Nr. băi: 5
Nr. balcoane / Terase / Logii: 2
Învelitoare acoperiș: Țiglă
An construcție: 2000 (Finalizată)
Structură rezistență: Cărămidă
Regim înălțime: S+P+1E+M

Utilități

Amenajare străzi
Asfaltate

Puncte de interes

Mijloace transport
bus-station
Str. Vasile Goldis
Stații autobuz aprox. 165 m
bus-station
Str. Vasile Goldis
Stații autobuz aprox. 248 m
bus-station
Spitalul Judetean
Stații autobuz aprox. 421 m
bus-station
Sala sportului Szabo Kati
Stații autobuz aprox. 492 m
Școală
kindergarten
Alba ca Zapada
Gradinițe aprox. 567 m
kindergarten
Csipike
Gradinițe aprox. 1034 m
school
Grup Scolar Constantin Brancusi
Școli aprox. 1050 m
school
Scoala de Arta si de Meserii
Școli aprox. 1070 m
Recreere
park
Parc
Parcuri aprox. 231 m
sports-ground
Teren de sport in memoriam Dani Kinga
Terenuri sport aprox. 263 m
restaurant
Vigado
Restaurant aprox. 295 m
supermarket
Merkur
Supermarket aprox. 1038 m

Detalii despre preț și costuri

Costuri cu achiziția

Fără credit
20.025 RON
Credit ipotecar
23.255 RON
Noua casă
2.682 RON+ taxe notariale

i

Costuri adiționale mai puțin știute la achiziție: taxe notariale, comisioane etc.

Proprietăți recomandate

Detalii de contact

WELL IMOBILIARE

Pulugor Izabella Agent

WELL IMOBILIARE

Abonează-te la newsletter să fii primul care primește cele mai noi recomandări de proprietăți și sfaturi de la experți.

CONTACT

Creează alertă

Salvează căutarea ca să primești pe email ultimele anunțuri publicate

Case și vile cu 4+ camere de vânzare în zona Simeria, Sfântu Gheorghe