3

Casa 110 mpu cu 4 camere 2 bai 2 balcoane si curte in Sibiu

182.000 €

Aeroport, Sibiu

Nr. cam.:
4
Sup. utilă:
110 mp
Sup. teren:
116 mp
Tip prop.:
Înșiruită
  • • Comision 0%
  • • Locație aproximativă
  • • Vizionare prin apel video

Descriere casă

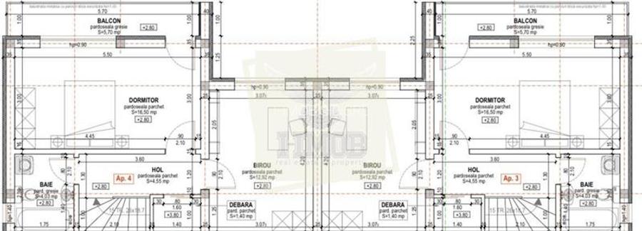
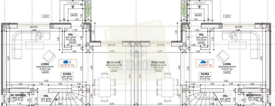
Comision 0% pentru cumparator! Agentia Imobiliara I-Imob va prepune spre vanzare o casa de tip qvadruplex 110 mp utili cu 4 camere 2 bai 2 balcoane curte libera 50 mp si parcare in Cartierul Arhitectilor din Sibiu Locuinta are un regim de inaltime P+1E, fiind compartimentata astfel: *Parter: -living 29 mp -bucatarie inchisa 11.07 -hol acces 3 mp -casa scarii cu spatiu pentru depozitare 5.15 -baie cu geam de aerisire 4.03 *Etaj: -3 dormitoare -baie cu geam de aerisire 4 mp -hol 8.33 -2 balcoane -curte libera 50 mp. Aceasta se vinde la stadiul de gri la interior si la cheie la exterior la pretul de este de 182.000 euro cu tva de 21% inclus si beneficiaza de urmatoarele imbunatiri: - centrala termica in condensatie si incalzire in pardoseala atat la parter cat si la etaj - ferestre cu geam termopan cu 3 foi - usa la intrare cu geam termopan si tamplarie PVC. Qvadruplexuerile de pe spate au 3 camere cu 2 bai, beneficiaza de 82 mp utili si curte de 170 mp iar pretul este de 172.000 euro cu tva de 21% inclus.
Citește mai mult Citește mai puțin
Nemobilat Centrală proprie 1 Parcare

Detalii casă

ID anunț: XC3N110JI Copiat! 252457096 Copiat!
Actualizat în: 05 Februarie 2026
Tip tranzacție: De vânzare prin agent
Suprafață construită: 132 mp
Suprafață desfășurată: 132 mp
Nr. bucătării: 1
Nr. băi: 2
Nr. balcoane / Terase / Logii: 2
Nr. fronturi stradale: 1
Front stradal: 6 m
Învelitoare acoperiș: Țiglă
An construcție: 2024 (Finalizată)
Structură rezistență: Altele
Regim înălțime: P+1E+M
Modalitate de plată: Cash sau Credit

Utilități

Destinație
Rezidențial
Ușă intrare
PVC
Izolații termice
Exterior
Ferestre cu geam termopan
PVC
Contorizare
Apometre Contor gaz
Utilități
Apă Curent Gaze
Internet
Fibră optică
Amenajare străzi
Pietruite
Comision
0%

Certificat energetic:

Clasa energetică: A

Vecinătăți:

Terenuri, Restaurant/pub, Supermarket, Zona comerciala, Autobuz

Puncte de interes

Mijloace transport
bus-station
Cimitirul Eroilor 2
Stații autobuz aprox. 907 m
bus-station
Cimitirul Eroilor 1
Stații autobuz aprox. 911 m
bus-station
Cimitir 1
Stații autobuz aprox. 1013 m
bus-station
Cimitir 2
Stații autobuz aprox. 1065 m
Școală
kindergarten
Gradinita Nr. 5
Gradinițe aprox. 1183 m
school
Gradinita cu program prelungit nr. 43
Școli aprox. 1411 m
school
Scoala Genenerala Nr. 25
Școli aprox. 1438 m
kindergarten
FasTracKids
Gradinițe aprox. 1661 m
Recreere
park
Georgescu Parc
Parcuri aprox. 936 m
bar
Bar Cesar
Bar aprox. 1065 m
sports-ground
Teren sportiv
Terenuri sport aprox. 1185 m
supermarket
Profi
Supermarket aprox. 1301 m

Istoricul prețurilor

Acces la informații premium după autentificare
Login Gratuit

Detalii despre preț și costuri

Costuri cu achiziția

Fără credit
Credit ipotecar
Noua casă

i

Costuri adiționale mai puțin știute la achiziție: taxe notariale, comisioane etc.

Acces la informații premium după autentificare
Login Gratuit

Proprietăți similare

Casă cu 4 camere în Arhitecților - Calea Cisnădiei
194.990 €
Sibiu, Arhitecților - Calea Cisnădiei
4 camere
105 mp
119 mp teren
Casă cu 4 camere în Arhitecților - Calea Cisnădiei
180.000 €
Sibiu, Arhitecților - Calea Cisnădiei
4 camere
116 mp
136 mp teren
Casă cu 4 camere în Aeroport
177.000 €
Sibiu, Aeroport
4 camere
81 mp
150 mp teren

Detalii de contact

Abonează-te la newsletter să fii primul care primește cele mai noi recomandări de proprietăți și sfaturi de la experți.

CONTACT

Creează alertă

Salvează căutarea ca să primești pe email ultimele anunțuri publicate

Case și vile cu 4+ camere de vânzare în zona Aeroport, Sibiu