Casa cu 3 camere si 200 mp de curte, in Cartierul Arhitectilor

145.000 € + TVA

Arhitecților - Calea Cisnădiei, Sibiu

Nr. cam.:
3
Sup. utilă:
82 mp
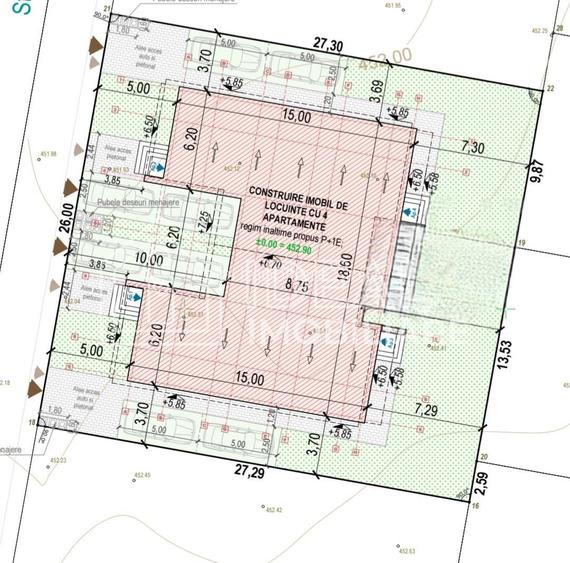
Sup. teren:
250 mp
Tip prop.:
Individuală
  • • Comision 0%
  • • Locație aproximativă

Descriere casă

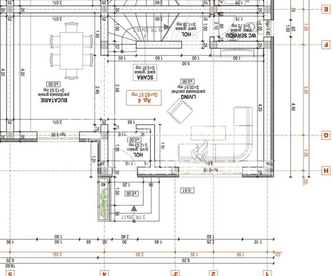
Casa tip quadruplex cu 3 camere, in Calea Cisnadiei, zona Lidl, cu un regim de inaltime P+E, suprafata terenului este de 200 mp, iar suprafata utila de 82 mp si sunt compartimentate astfel: -Parter: hol, living spatios de 20 de mp utili, bucatarie decomandata de 14 mp, baie de servici, spatiu de depozitare/debara; -Etaj: dormitor matrimonial de 16 mp cu iesire pe balcon, dormitor de 12 mp, baie de 6 mp, hol de acces si un spatiu de depozitare. -Casele Se predau la stadiul 'ALB' la interior astfel: peretii complet finisati inclusiv lavabila alba, sape elicopterizate, instalatie de incalzire prin pardoseala la etaj si parter,centrala termica in condensare, instalatie electrica, instalatie sanitara pe pozitie, toate utilitatiile cu contoare montate. -La exterior acestea se predau 'LA CHEIE' astfel: alei pietonale si loc de parcare in curte amenajate cu dale de beton,zona verde amenajata ,gard de imprejmuire, poarta acces auto si portita de intrare. Pret: 145.000 Euro +TVA Telefon: Mariana
Citește mai mult Citește mai puțin
Centrală proprie Încălzire prin pardoseală 4 Parcări

Detalii casă

ID anunț: XBM4110D6 Copiat! 275229200 Copiat!
Actualizat în: 09 Martie 2026
Suprafață construită: 50 mp
Suprafață desfășurată: 90 mp
Nr. bucătării: 1
Nr. băi: 2
Nr. balcoane / Terase / Logii: 1
Nr. terase: 1
Front stradal: 14.0 m
Învelitoare acoperiș: Țiglă
An construcție: 2024 (Finalizată)
Structură rezistență: Cărămidă
Regim înălțime: S+P

Utilități

Pereți
Vopsea lavabilă
Ușă intrare
Metal
Izolații termice
Exterior Interior
Contorizare
Apometre Contor căldură Contor gaz
Utilități
Curent Apă Canalizare CATV Gaze Telefon
Internet
Cablu
Amenajare străzi
Iluminat stradal Mijloace de transport în comun Asfaltate
Comision
0%

Disponibilitate proprietate:

Imediat

Puncte de interes

Mijloace transport
bus-station
Cimitirul Eroilor 2
Stații autobuz aprox. 580 m
bus-station
Cimitirul Eroilor 1
Stații autobuz aprox. 587 m
bus-station
Cimitir 1
Stații autobuz aprox. 710 m
bus-station
Cimitir 2
Stații autobuz aprox. 765 m
Școală
kindergarten
Gradinita Nr. 5
Gradinițe aprox. 940 m
school
Scoala Genenerala Nr. 25
Școli aprox. 1099 m
kindergarten
FasTracKids
Gradinițe aprox. 1330 m
school
Gradinita cu program prelungit nr. 43
Școli aprox. 1333 m
Recreere
bar
Bar Cesar
Bar aprox. 754 m
sports-ground
Teren sportiv
Terenuri sport aprox. 866 m
park
Piata Crisan
Parcuri aprox. 897 m
supermarket
Alcomsib
Supermarket aprox. 1158 m

Detalii despre preț și costuri

Costuri cu achiziția

Fără credit
8.929 RON
Credit ipotecar
10.787 RON
Noua casă
1.034 RON+ taxe notariale

i

Costuri adiționale mai puțin știute la achiziție: taxe notariale, comisioane etc.

Proprietăți similare

Casă cu 4 camere în Arhitecților - Calea Cisnădiei
150.500 € + TVA
Sibiu, Arhitecților - Calea Cisnădiei
4 camere
110 mp
120 mp teren
Casă cu 4 camere în Arhitecților - Calea Cisnădiei
159.000 €
Sibiu, Arhitecților - Calea Cisnădiei
4 camere
80 mp
30 mp teren
Casă cu 3 camere în Arhitecților - Calea Cisnădiei
158.000 €
Sibiu, Arhitecților - Calea Cisnădiei
3 camere
84 mp
30 mp teren

Detalii de contact

Ideal Imobiliare Sibiu

Mariana Bozesan Broker imobiliar

Ideal Imobiliare Sibiu
PRO

Abonează-te la newsletter să fii primul care primește cele mai noi recomandări de proprietăți și sfaturi de la experți.

CONTACT

Creează alertă

Salvează căutarea ca să primești pe email ultimele anunțuri publicate

Case și vile cu 3 camere de vânzare în zona Arhitecților - Calea Cisnădiei, Sibiu