Această proprietate este construită pe fundație și pereți de rezistență din beton și metal, ceea ce garantează stabilitate și siguranță structurală. Compartimentările și finisajele sunt realizate în stil american, cu pereți tip sandwich care oferă izolație termică și fonică eficientă și libertatea de a reconfigura spațiile în funcție de nevoi.
Proprietatea se bucură de o amplasare privilegiată, cu priveliste directa deschisa la lac utilizat exclusiv pentru pescuit. Această caracteristică adaugă liniște și intimitate, transformând casa într-un refugiu ideal pentru iubitorii de natură, fără dezavantajele zonelor aglomerate de agrement.
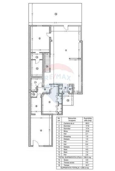
Zona de bucatarie si dining de la etajul inferior este concepută pentru a oferi atât confort, cât și versatilitate. Diningul are geamuri imense glisante care se deschid către curtea din spate, creând pe timpul verii o continuitate naturală între interior și exterior. Acest detaliu permite transformarea rapidă a casei într-un spațiu luminos, aerisit și prietenos, perfect pentru mese în familie sau evenimente sociale.
La etaj, spațiul de zi atinge o dimensiune impresionantă de peste 70 mp, rezultat al includerii terasei originale în zona de living. Această suprafață generoasă oferă libertatea de a organiza locul în funcție de preferințe – fie ca un living amplu și elegant, fie ca zonă multifuncțională pentru relaxare și activități variate. În continuarea livingului, a fost adaugată o terasă suplimentară de 30 mp, un alt spațiu deschis pentru momente de relaxare în aer liber. Terasa beneficiază de o scară exterioară care permite accesul direct către curtea din spate, creând o legătură armonioasă între etaj și spațiul exterior.
Compartimentările interioare, realizate din lemn, aduc beneficii semnificative: izolație termică și fonică ridicată, încălzire rapidă iarna și confort sporit vara, toate cu costuri reduse de întreținere. În plus, pentru cei care doresc să personalizeze locuința, pereții pot fi modificați cu ușurință, oferind o flexibilitate pe care construcțiile tradiționale din zidărie nu o permit.
Structura mixtă oferă siguranță suplimentară: betonul și metalul garantează durabilitate și protecție seismică, în timp ce compartimentările ușoare reduc masa generală a construcției, crescând rezistența în caz de cutremur. Astfel, locuința combină stabilitatea clasică cu soluții moderne pentru siguranță și confort.
Designul de inspirație americană, pus în valoare de suprafețele vitrate generoase și de terasele ample, creează o estetică luminoasă și prietenoasă. Această abordare arhitecturală diferențiază proprietatea pe piață și o transformă într-o alegere ideală pentru cei care caută o casă cu personalitate, care oferă un stil de viață relaxat și modern.
În curtea din față se află și o căsuță în copac, un detaliu special pentru familiile cu copii. Cu doar câteva retușuri, acest spațiu se poate transforma într-un loc de joacă de poveste, aducând un plus de farmec și amintiri de neuitat celor mici.
Această casă oferă combinația perfectă dintre siguranță structurală, confort modern și o locație privilegiată. Accesul direct la lac, diningul extins cu deschidere spre grădină, livingul spectaculos de peste 70 mp și terasa de 30 mp cu acces exterior si priveliște spectaculoasă către lac, transformă această proprietate într-o reședință unică, potrivită pentru locuire permanentă sau ca refugiu de vacanță cu valoare deosebită.
Pentru mai multe informații și pentru a programa o vizionare, vă stau la dispoziție.
Indici de performanta energetica: Nota Energetica 100, clasa energetică A, consumul total specific de energie primară: 108.1, indicele de emisii echivalent CO2: 9.73
Sediul central - Timișoara
Bulevardul Victor Babeș nr. 2, 300230, Timișoara, România
Tel: +40.374.40.44.98 / Fax: +40.256.401.179
Email: suport@imobiliare.ro
Luni - Vineri 08:00 - 20:00
Punct de lucru - București: Iride Business Park, Bld. Dimitrie
Pompeiu 9-9A, Clădirea B2B,
020335, Sector 2, București, România
CONTACT
Sediul central - Timișoara
Bulevardul Victor Babeș nr. 2, 300230, Timișoara, România
Tel: +40.374.40.44.98 / Fax: +40.256.401.179
Email: suport@imobiliare.ro
Luni - Vineri 08:00 - 20:00
Punct de lucru - București: Iride Business Park, Bld. Dimitrie
Pompeiu 9-9A, Clădirea B2B,
020335, Sector 2, București, România
Sună acum și cere detalii sau programează o vizionare.
Cere detalii prin email
*
*
*
*
Parcări
Parcare
aprox.
291 m
Parcare
aprox.
363 m
Înainte să pleci...
Ești sigur că ai văzut și aceste proprietăți?
345.000 €
Județul Ilfov, Tâncăbești
5 camere
201,7 mp
500 mp teren
349.000 €
Județul Ilfov, Tâncăbești
5 camere
250 mp
990 mp teren
300.000 €
Județul Ilfov, Tâncăbești
5 camere
230,67 mp
1.196 mp teren
270.000 €
Județul Ilfov, Tâncăbești
3 camere
54 mp
450 mp teren
420.000 €
Județul Ilfov, Dumbrăveni
6 camere
260 mp
1.150 mp teren
334.280 €
Județul Ilfov, Vlădiceasca
4 camere
315 mp
500 mp teren
Creează alertă
Salvează căutarea ca să primești pe email ultimele anunțuri publicate
Case și vile cu 4+ camere de vânzare în Tâncăbești, Județul Ilfov
Cere detalii prin email
*
*
*
*
Detaliile tale de contact vor fi partajate cu Re/max Properties
Preț total1.720.922 RON (337.826 €)
Costuri cu achiziția14.399 RON
Preț de achiziție1.706.523 RON
Costuri cu achiziția14.399 RON
Comision agenție Întreabă agenţia
Onorariu notarial11.839 RON
Taxă înscriere OCPI2.560 RON
Preț de achiziție1.706.523 RON
Preț locuință1.706.523 RON
TVA 0%Inclus în prețul cerut
Cost total276.401 RON (54.259 €)
Avans (15%)255.979 RON
Cost achitat în prima lună3.489 RON
Costuri cu achiziția16.933 RON
Cost achitat în prima lună3.489 RON
Comision analiză dosar
400 RON - 900 RON
Taxă evaluare imobil(până la)
900 RON
Rata lunară (variabilă)7.602 RON
Asigurare anuală imobil1.707 RON
Arhivă electronică102 RON
Poliță PAD130 RON
Asigurare de viață/lună Costul este variabil. În funcție de banca aleasă, procentul variază între 0.0259% și 0.035% din soldul creditului.
Costuri cu achiziția16.933 RON
Comision agenție Întreabă agenţia
Onorariu notarial11.839 RON
Taxă întabulare OCPI2.560 RON
Autentificare contract credit2.534 RON
Preț de achiziție1.706.523 RON
Preț locuință1.706.523 RON
TVA 0%Inclus în prețul cerut
Preț de achiziție1.706.523 RON
Preț locuință1.706.523 RON
TVA 0%
Inclus în prețul cerut
Avans minim1.100.326 RON
Credit pe 30 de ani606.198 RON
Cost achitat în prima lună
Taxa evaluare imobil(până la)
900 RON
Rata lunară (variabilă)4.259 RON
Depozit colateral12.777 RON
Comision de garantare FNGCIMM142 RON
Asigurare anuală imobil1.707 RON
Poliță PAD130 RON
Tarif arhivă electronică102 RON
Costuri adiționale1.847 RON + taxe notariale
Asigurare viață și complexă (opțională)Costul este variabil. În funcție de banca aleasă, procentul variază între 0.0259% și 0.035% din soldul creditului
Onorariu notarialconform tarif notarial
Taxă întabulare OCPI1.847 RON
i
Toate valorile de mai sus sunt estimative și nu reprezintă în mod obligatoriu costurile exacte pe care le veți primi de la companiile/instituțiile prin care veți încheia tranzacția.