1

COMISION 0% CASA INDIVIDUALA CU CARPORT DUMBRAVITA LAC - PADURE

299.000 €

Aeroport, Timișoara

Nr. cam.:
4
Sup. utilă:
159 mp
Sup. teren:
477 mp
Tip prop.:
Individuală
  • • Comision 0%
  • • Locație aproximativă
  • • Vizionare prin apel video

Descriere casă

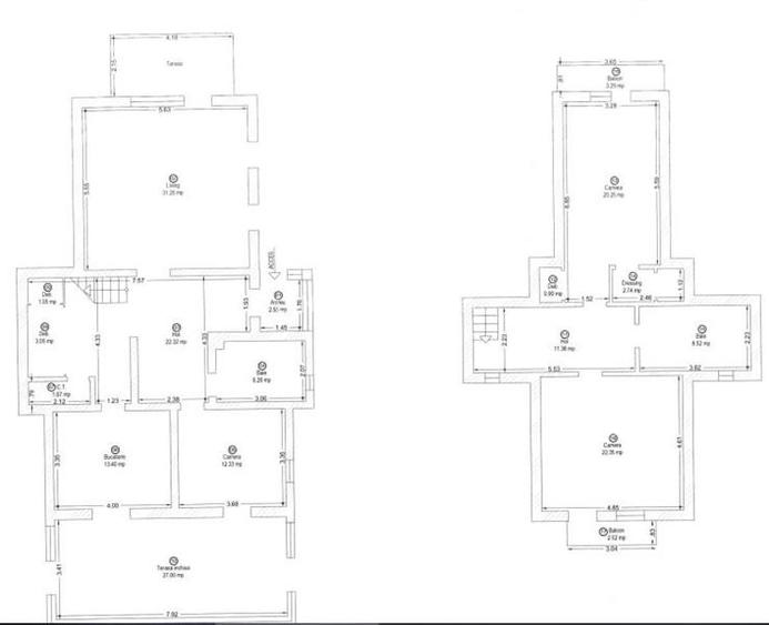
LANDMARK ofera spre vanzare, COMISION 0% , casa individuala partial mobilata si utilata, cu carport, in Dumbravita, zona Socar, strada linistita, foarte aproape de padure si lac. Este compartimentata in felul urmator: parter: hol acces cu spatii pentru depozitare, dormitor, baie cu dus, camera de zi luminoasa si incapatoare camera tehnica,pranzitor si o bucatarie inchisa cu iesire pe o terasa inchisa. etaj: hol acces, dormitor cu dressing si balcon, baie cu vana, si cel de al doilea dormitor cu balcon. Suprafata utila a casei este de 159 mp iar terenul are o suprafata totala de 477 mp cu un front stradal de 14 ml. Incalzarea se realizeaza prin centrala proprie si calorifere, casa este izolata cu polistiren de 10 cm, tamplarie termopan PVC podelele decorate cu parchet laminat si gresie iar casa se vinde partial mobilata si utilata. Curtea este frumos amenajata cu gazon, plante ornamentale si carport. Zona este foarte frumoasa, strada lata, pista de bicicleta, foarte aproape de lac si padure, beneficiind de asfalt si toate utilitatile. Deasemenea se afla in apropiere de autobuz, supermarket, benzinarie, piata, scoala gradinita. Pretul este de 299.000 euro intern: 2210665.
Citește mai mult Citește mai puțin
Parțial mobilat Centrală proprie 2 Parcări Bine întreținut (Bună)

Detalii casă

ID anunț: X6CI110QO Copiat! 274267238 Copiat!
Actualizat în: 09 Februarie 2026
Suprafață construită: 185 mp
Suprafață desfășurată: 185 mp
Nr. bucătării: 1
Nr. băi: 2
Nr. balcoane / Terase / Logii: 2
Nr. terase: 1
Nr. fronturi stradale: 1
Front stradal: 14 m
Învelitoare acoperiș: Țiglă
An construcție: 2007 (Finalizată)
Structură rezistență: Altele
Etaj: Parter / 1
Regim înălțime: P+1E+M

Utilități

Destinație
Rezidențial
Pereți
Faianță Vopsea lavabilă
Podele
Parchet Gresie
Izolații termice
Exterior
Ferestre cu geam termopan
PVC
Electrocasnice
Aragaz
Diverse
Scară interioară
Alte spații utile
WC Serviciu Dressing
Utilități
Apă Curent Gaze Canalizare
Internet
Fibră optică
Amenajare străzi
Asfaltate
Comision
0%

Vecinătăți:

Restaurant/pub, Parc, Piata, Benzinarie, Supermarket, Autobuz

Puncte de interes

Școală
school
Scoala Gimnaziala Dumbravita
Școli aprox. 988 m
Recreere
sports-ground
Teren sportiv
Terenuri sport aprox. 996 m
park
Dumbrăvița Park (en)
Parcuri aprox. 1052 m
park
Parcul Dumbravita
Parcuri aprox. 1052 m
sports-ground
Teren Fotbal
Terenuri sport aprox. 1140 m

Detalii despre preț și costuri

Costuri cu achiziția

Fără credit
13.174 RON
Credit ipotecar
15.557 RON
Noua casă
1.665 RON+ taxe notariale

i

Costuri adiționale mai puțin știute la achiziție: taxe notariale, comisioane etc.

Proprietăți recomandate

Detalii de contact

LANDMARK imobiliare

Johanna Foldvary Consultant Imobiliar

4.83(4 review-uri)

LANDMARK imobiliare
PRO

Abonează-te la newsletter să fii primul care primește cele mai noi recomandări de proprietăți și sfaturi de la experți.

Feedback apel

CONTACT

Creează alertă

Salvează căutarea ca să primești pe email ultimele anunțuri publicate

Case și vile cu 4+ camere de vânzare în zona Aeroport, Timișoara