CASA individuala cu garaj, 5 camere, 3 bai Dumbravita zona lac Macilor

330.000 €

Aeroport, Timișoara

Nr. cam.:
5
Sup. utilă:
167 mp
Sup. teren:
740 mp
Tip prop.:
Individuală
  • • Locație aproximativă
  • • Vizionare prin apel video

Descriere casă

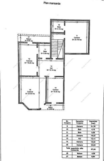
LANDMARK ofera spre vanzare casa individuala cu garaj si teren generos in Dumbravita, zona Lac in apropierea strazii Ghioceilor, fiind compartimentat in felul urmator: parter: hol acces, garaj 22 mp, camera tehnica, bucatarie inchisa cu iesire pe terasa acoperita de 32 mp, baie, living de 37 mp; mansarda inalta: hol acces la pod cu trapa, dormitor matrimonial cu baie proprie, 3 dormitoare, 2 balcoane, baie cu vana. . Suprafata utila a casei este de 167 mp + garaj de 22 mp iar terenul are o suprafata totala de 740 mp. Casa se vinde cu bucatarie mobilata si utilata cumparata in acest an, intreaga casa a fost renovata in anul 2025 , beneficiaza de panouri foto voltaice si baterie de stocare. Utilitati: curent trifazic, gaz, incalzire pe centrala proprie si boiler, apa si fosa septica (in viitorul apropiat va fi canalizare) internet prin fibra optica. Amenajari: izolatie cu polistiren de 15 cm, tamplarie termopan, parchet laminat si gresie, 2 aparate de aer conditionat, curte mare si livada pe rod. Imobilul este finisat si se afla in apropiere de supermarket. Pretul este de 330.000 euro intern: 210331.
Citește mai mult Citește mai puțin
Parțial mobilat Centrală proprie Panouri infraroșu 4 Parcări 1 Garaj Renovat

Detalii casă

ID anunț: X6CI110PL Copiat! 269934932 Copiat!
Actualizat în: 09 Februarie 2026
Suprafață construită: 250 mp
Suprafață desfășurată: 250 mp
Nr. bucătării: 1
Nr. băi: 3
Nr. balcoane / Terase / Logii: 1
Nr. terase: 1
Nr. fronturi stradale: 1
Front stradal: 18 m
Învelitoare acoperiș: Țiglă
An construcție: 2011 (Finalizată)
Structură rezistență: Altele
Etaj: Etaj 1 / 1
Regim înălțime: P+1E

Utilități

Destinație
Rezidențial
Pereți
Faianță Vopsea lavabilă
Podele
Parchet Gresie
Izolații termice
Exterior
Ferestre cu geam termopan
PVC
Electrocasnice
Aragaz Frigider Mașină de spălat
Diverse
Scară interioară Telecomandă poartă garaj
Alte spații utile
WC Serviciu
Utilități
Apă Curent Gaze Fosa septică
Internet
Fibră optică
Amenajare străzi
Pietruite
Comision
2%

Vecinătăți:

Supermarket

Puncte de interes

Mijloace transport
bus-station
Statie Giarmata Vii M35
Stații autobuz aprox. 579 m
bus-station
Statie Giarmata Vii Complex M35
Stații autobuz aprox. 796 m
bus-station
Macilor
Stații autobuz aprox. 1162 m
bus-station
Statie Giarmata Vii Biserica M35
Stații autobuz aprox. 1311 m

Detalii despre preț și costuri

Costuri cu achiziția

Fără credit
47.892 RON
Credit ipotecar
50.406 RON
Noua casă
1.823 RON+ taxe notariale

i

Costuri adiționale mai puțin știute la achiziție: taxe notariale, comisioane etc.

Proprietăți recomandate

Detalii de contact

LANDMARK imobiliare

Johanna Foldvary Consultant Imobiliar

4.83(4 review-uri)

LANDMARK imobiliare
PRO

Abonează-te la newsletter să fii primul care primește cele mai noi recomandări de proprietăți și sfaturi de la experți.

Feedback apel

CONTACT

Creează alertă

Salvează căutarea ca să primești pe email ultimele anunțuri publicate

Case și vile cu 4+ camere de vânzare în zona Aeroport, Timișoara