Casa individuala Locuibila cu utilitati si 1464 mp teren.

299.000 €

Buziașului, Timișoara

Nr. cam.:
5
Sup. utilă:
148 mp
Sup. teren:
1.464 mp
Tip prop.:
Altele
  • • Locație exactă

Descriere casă

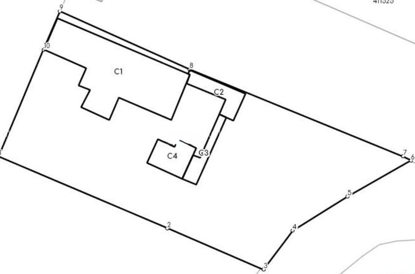
Va propunem spre vanzare o casa INDIVIDUALA locuibila ,asezata pe un teren generos de 1464 mp imprejmuit de jur imprejur,avand geometria actualizata si un front de 26,7 ml. Casa detine 5 camere decomandate, 3 holuri,1 baie ,magazie cu acces in pod,1 bucatarie si un garaj in interiorul curtii. Camerele sunt inalte,nu prezinta fisuri sau infiltratii,desi nu a fost renovata niciodata,doar igienizata anual. Anul in care casa a fost construita este 1965,fiind ridicata din caramida cu fundatie ,partial vaiuga. Fatada casei a fost pastrata integral,iar diferitele anexe din curte au fost folosite ca spatii de depozitare,sau pentru adapostirea animalelor. Tocaria este pastrata si intretinuta bine,pe alocuri au fost schimbate in termopan cu rulou. Casa are toate utilitatile,detine centrala termica proprie pe gaz,dar are si sobe ,care pot fi folosite daca se doreste. imobilul are certificat energetic la zi,impreuna cu releveu,din care reiese suprafata utila 149 mp,iar suprafata construita 230 mp, precum si compartimentarea camerelor decomandate. Ulterior vor fi prezentate imagini din interior,momentan proprietarul elibereaza spatiul. Curtea si gradina sunt ingrijite,pline de pomi fructiferi,vita de vie, flori,alei betonate,spatiu pentru luat masa ,afara in aer liber,bucurand pe fiecare in parte de linistea din apropierea orasului, la doar 2 min distanta de sensul giratoriu din calea Buziasului. Proprietatea este inconjurata de gradini pe toate cele 3 parti,iar frontul este situat la strada asfaltata. Casa este perfecta pentru o familie numeroasa,cine nu doreste lux,poate avea confortul de a locui in ea asa cum se prezinta in momentul de fata,iar ulterior poate alege sa renoveze o casa care este intr-o stare exceptionala,fara infiltratii,crapaturi,sau mucegai. Pretul solicitat este in valoare de 299.000 eur negociabil. Comision agentie standard.
Citește mai mult Citește mai puțin
Mobilat Parțial mobilat Grădină Curte Calorifere Centrală proprie Sobă/teracotă 3 Parcări 1 Garaj Bine întreținut (Bună)

Detalii casă

ID anunț: XA7S0102F Copiat! 275191728 Copiat!
Actualizat în: 04 Martie 2026
Suprafață desfășurată: 230 mp
Nr. bucătării: 1
Nr. băi: 1
Nr. terase: 2
Nr. fronturi stradale: 1
Front stradal: 27 m
Învelitoare acoperiș: Țiglă
An construcție: 1965 (Finalizată)
Structură rezistență: Cărămidă
Regim înălțime: P+1E

Utilități

Destinație
Rezidențial
Jaluzele
Verticale
Pereți
Faianță Vopsea lavabilă
Podele
Dușumea Gresie Parchet
Rulouri/Obloane
PVC Aluminiu
Ușă intrare
Lemn Parchet
Uși interior
Lemn
Ferestre cu geam termopan
Lemn PVC
Contorizare
Contor gaz Apometre
Bucătărie
Mobilată
Alte spații utile
Spațiu depozitare Dependințe Anexe
Facilități imobil
Acoperiș
Utilități
Gaze Curent Canalizare Fosa septică Curent trifazic Apă
Internet
Cablu Fibră optică Wireless
Amenajare străzi
Asfaltate Betonate Iluminat stradal Mijloace de transport în comun

Certificat energetic:

Clasa energetică: B

Puncte de interes

Mijloace transport
tram-station
Statie Ciarda Rosie Tv4
Stații tramvai aprox. 514 m
tram-station
Statie I.O.T. Tv4
Stații tramvai aprox. 747 m
bus-station
Continental
Stații autobuz aprox. 1123 m
bus-station
Electrotimis
Stații autobuz aprox. 1146 m
Școală
school
Scoala Generala 20
Școli aprox. 238 m
kindergarten
Gradinita Program Normal Nr. 6
Gradinițe aprox. 243 m
school
Scoala Gimnaziala nr. 20
Școli aprox. 243 m
kindergarten
Gradinita Program Prelungit nr.38
Gradinițe aprox. 1065 m
Recreere
park
Parc
Parcuri aprox. 384 m
sports-ground
Teren sportiv
Terenuri sport aprox. 753 m
bar
Club As
Bar aprox. 1017 m
supermarket
Profi
Supermarket aprox. 1084 m

Detalii despre preț și costuri

Costuri cu achiziția

Fără credit
13.171 RON
Credit ipotecar
15.553 RON
Noua casă
1.664 RON+ taxe notariale

i

Costuri adiționale mai puțin știute la achiziție: taxe notariale, comisioane etc.

Proprietăți similare

Casă cu 4 camere în Torontalului
294.900 €
Timișoara, Torontalului
4 camere
180 mp
384 mp teren
Casă cu 3 camere în Elisabetin
295.000 €
Timișoara, Elisabetin
3 camere
120 mp
727 mp teren
Casă cu 9 camere în Steaua
310.000 €
Timișoara, Steaua
9 camere
250 mp
540 mp teren

Detalii de contact

Sc Idea Real Estate Investment Srl

Alina VASII Development Manager

Sc Idea Real Estate Investment Srl
PRO

Abonează-te la newsletter să fii primul care primește cele mai noi recomandări de proprietăți și sfaturi de la experți.

CONTACT

Creează alertă

Salvează căutarea ca să primești pe email ultimele anunțuri publicate

Case și vile cu 4+ camere de vânzare în zona Buziașului, Timișoara