Casa de vanzare, P+M-zona Girocului Timisoara-comision 0

245.000 €

Girocului, Timișoara

Nr. cam.:
7
Sup. utilă:
217 mp
Sup. teren:
624 mp
Tip prop.:
Altele
  • • Locație aproximativă

Descriere casă

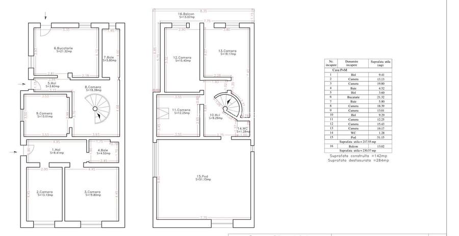
De vanzare casa de tipologia P+M, situata in Timisoara, zona Girocului, cu suprafata utila de 217 mp si un teren de 624 mp, structurata astfel: - 7 camere - 3 holuri - 2 bai - wc serviciu - acces pod Imobilul dispune de toate utilitatile, are acces auto, iar incalzirea se realizeaza cu ajutorul centralei proprii. Casa a fost recent renovata si poate fi folosita pentru doua familii, avand 2 accese separate din curte. Mai multe detalii la cerere.
Citește mai mult Citește mai puțin
Grădină Curte Calorifere Centrală proprie

Detalii casă

ID anunț: X1BR110PJ Copiat! 252260613 Copiat!
Actualizat în: 22 Decembrie 2025
Suprafață construită: 142 mp
Suprafață desfășurată: 284 mp
Nr. bucătării: 1
Nr. băi: 2
Nr. balcoane / Terase / Logii: 1
An construcție: 1999 (Finalizată)
Structură rezistență: Cărămidă
Regim înălțime: P+M

Utilități

Destinație
Rezidențial
Pereți
Faianță Vopsea lavabilă
Podele
Gresie Parchet
Izolații termice
Exterior
Ferestre cu geam termopan
PVC
Contorizare
Apometre Contor gaz
Diverse
Scară interioară
Facilități imobil
Acoperiș
Utilități
Curent Apă Canalizare CATV Gaze Telefon
Internet
Cablu
Amenajare străzi
Iluminat stradal Mijloace de transport în comun Asfaltate
Comision
standard

Vecinătăți:

Benzinaria Mol, Hotel DelPack, Gradinita Montessori, Liceul Teologic Ortodox „Sfântul Antim Ivireanul” Timișoara, Observator Seismologic Timișoara, Parcul Arcidava

Disponibilitate proprietate:

Imediat

Puncte de interes

Mijloace transport
tram-station
Statie Progresul Tv7
Stații tramvai aprox. 95 m
bus-station
Statie E. Zola A32, Tv7
Stații autobuz aprox. 345 m
trolleybus-station
Statie Maresal C-tin Prezan T15, T19
Stații troleibuz aprox. 1477 m
train-station
Gara Timisoara Sud
Stații tren aprox. 1742 m
Școală
kindergarten
Gradinita Program Normal Nr. 11
Gradinițe aprox. 409 m
school
Școala generală nr. 14
Școli aprox. 435 m
kindergarten
Gradinita Program Prelungit Nr. 1
Gradinițe aprox. 496 m
university
Institutul de Cercetari pentru Energii Regenerabile
Universități aprox. 939 m
Recreere
park
Parc pentru copii
Parcuri aprox. 195 m
sports-ground
Teren sportiv
Terenuri sport aprox. 314 m
supermarket
Billa
Supermarket aprox. 1145 m
public-square
Piata Aron Cotrus
Piețe publice aprox. 1273 m

Detalii despre preț și costuri

Costuri cu achiziția

Fără credit
Credit ipotecar
Noua casă

i

Costuri adiționale mai puțin știute la achiziție: taxe notariale, comisioane etc.

Insight premium disponibil după login

Proprietăți recomandate

Detalii de contact

Abonează-te la newsletter să fii primul care primește cele mai noi recomandări de proprietăți și sfaturi de la experți.

Feedback apel

CONTACT

Creează alertă

Salvează căutarea ca să primești pe email ultimele anunțuri publicate

Case și vile cu 4+ camere de vânzare în zona Girocului, Timișoara