For Rent I 5 rooms TownhouseI Pipera I Gated Community

298.000 € + TVA

Voluntari, Județul Ilfov

Nr. cam.:
5
Sup. utilă:
138 mp
Sup. teren:
200 mp
Tip prop.:
Individuală
  • • Exclusivitate
  • • Locație exactă

Descriere casă

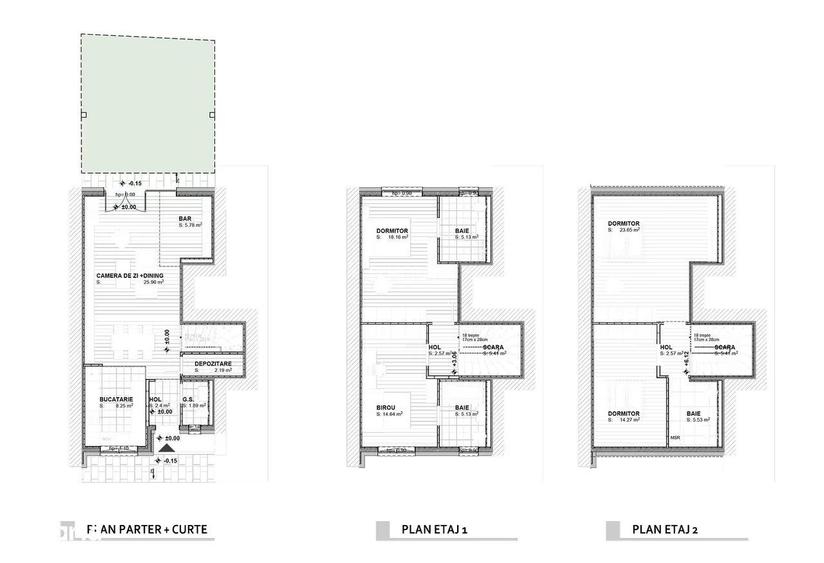
We offer for rent a Townhouse type villa with 5 rooms within a luxury Pipera Residential Project, built in a G+2M height regime, benefits from 2 parking spaces included, a terrace and a private garden intended for outdoor relaxation. Efficiently partitioned, the unit has 5 rooms that were designed to provide comfort. With a useful area of 138 sqm, they are arranged as follows: the ground floor is composed of a group vestibule area, a 2 sqm bathroom, a special space intended for storage of 2.20 sqm, an 8.25 sqm open space kitchen and a spacious and bright 32 sqm living room with direct access to the terrace and garden area. On the 1st floor, the partitioning is intended to provide privacy and utility, each of the two bedrooms benefiting from its own bathroom. The master bedroom has an area of 18 sqm and the secondary bedroom an area of 14.64 sqm. The 2nd floor has a 2.57 sq m hallway area, a 5.53 sq m bathroom and 2 rooms with double skylights: a 14.27 sq m bedroom that can be arranged as an office and a 23.65 sq m room that you can arrange according to your needs: bedroom, children's playground, dressing area. The project meets the qualities of a place called home, where comfort becomes a lifestyle. Located in the northern area of the capital, on Str. Vasile Alecsandri in Pipera, the project benefits from the proximity of the best schools and kindergartens, both private and public: American School, British School, Olga Gudynn. Also nearby you can find shopping centers and supermarkets, such as Mega Image, Jolie Ville, Băneasa Shopping City, Pipera Plaza and LIDL. The area also offers multiple recreational and fitness options, such as Atlantis Club/World Class and the Zoo, Baneasa Forest, Regina Ana Park, as well as restaurants and cafes, including Strip Mall – Iancu Nicolae, as well as medical centers. Away from the hustle and bustle and heavy traffic of the main areas, our complex provides quick and easy access to the exit from Bucharest via DN1, to Henri Coandă Airport and to the office poles in the area of Dimitrie Pompeiu Boulevard and Calea Floreasca. You will also have quick access to the A0 and A3 highways, the Bucharest ring road and neighboring cities. We are happy to inform you that the residents are forming a vibrant community, contributing to the creation of a harmonious and pleasant living environment. For a video of the house, more details orb a visit feel free to contact us!
Citește mai mult Citește mai puțin
Mobilat Lux Grădină Curte comună Aer condiționat Centrală proprie Încălzire prin pardoseală 2 Parcări

Detalii casă

ID anunț: XE621100S Copiat! 275434579 Copiat!
Actualizat în: 21 Aprilie 2026
Nr. bucătării: 1
Nr. băi: 4
Nr. terase: 1
Suprafață terase: 35 mp
An construcție: 2024

Utilități

Podele
Parchet
Izolații termice
Interior
Bucătărie
Mobilată Utilată
Electrocasnice
Aragaz Frigider Hotă Mașină de spălat Mașină spălat vase TV
Alte spații utile
Dressing
Utilități
Curent Apă Canalizare CATV Gaze Telefon
Internet
Cablu
Amenajare străzi
Iluminat stradal Mijloace de transport în comun Asfaltate
Comision
standard

Disponibilitate proprietate:

din 15 Mai

Puncte de interes

Școală
kindergarten
Kindergarden
Gradinițe aprox. 988 m
school
Happy Children Academy
Școli aprox. 1091 m
university
School American Bucharest-Voluntari
Universități aprox. 1762 m
kindergarten
Echilibria 1
Gradinițe aprox. 1940 m
Recreere
park
residential kids park
Parcuri aprox. 444 m
supermarket
Mega Image Pipera Liziera
Supermarket aprox. 1148 m
sports-ground
Teren sportiv
Terenuri sport aprox. 1536 m
cafe
Doncafe Brasserie
Cafenea aprox. 1688 m

Detalii despre preț și costuri

Costuri cu achiziția

Fără credit
Credit ipotecar
Noua casă

i

Costuri adiționale mai puțin știute la achiziție: taxe notariale, comisioane etc.

Insight premium disponibil după login

Proprietăți similare

Casă cu 5 camere în Central
280.000 €
Județul Ilfov, Voluntari
5 camere
130 mp
147,9 mp teren
Casă cu 4 camere în Central
280.000 €
Județul Ilfov, Voluntari
4 camere
120 mp
210 mp teren
Casă cu 4 camere în Central
315.000 €
Județul Ilfov, Voluntari
4 camere
130 mp
225 mp teren

Detalii de contact

D'HOMES

Vera Romanu Fondator I CEO I Consultant Imobiliar

D'HOMES

Abonează-te la newsletter să fii primul care primește cele mai noi recomandări de proprietăți și sfaturi de la experți.

CONTACT

Creează alertă

Salvează căutarea ca să primești pe email ultimele anunțuri publicate

Case și vile cu 4+ camere de vânzare în Voluntari, Județul Ilfov