Ati accesat un imobil situat in centrul Brasovului.
LOCALIZARE:
Acest imobil este amplasat in centrul istoric la doar 100 m de Primaria Brasov si principalele obiective istorice si culturale din Brasov.
DATE TEHNICE:
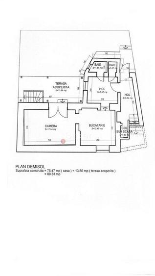
Proprietatea este dispusa pe subsol, demisol si parter, desfasurata pe 160 mp, fiind impartita pe 2 apartamente separate dupa cum urmeaza:
- Parterul este compus din zona de living, 1 dormitor,, 1 baie , bucatarie cu acces pe un micut balcon si hol.
- Demisolul este format din holul de acces, baie, bucatarie si dormitorul, de aici exista acces spre o terasa acoperita si spre o curte de aproximativ 250 mp
- Subsolul care este reconditionat si poate fi amenajat ca si zona de depozitare sau o crama.
FINISAJE:
Imobilul a fost renovat complet, instalatie electrica si sanitara noua, usi de interior din lemn.
DOTARI:
Proprietatea detine: centrala termica individuala pe fiecare nivel, tamplarie PVC, usi din lemn realizate pe comanda.
AVANTAJE:
- pretabil pentru locuit sau activitate comerciala.
- poate fi utilizata ca 2 spatii separate, existand acces din hol in fiecare dintre apartamente cat si in curte.
- contorizare separata
- zona centrala,
- curte
- aproape de Piata Sfatului, si principalele atractii turistice si nu numai.
IMPREJURIMI:
Proprietatea este situata intr-o zona de vile accesul fiind unul facil .
OBSERVATII:
Zona rezidentiala de interes major;
Perioada minima acceptata este de 12 luni.
Se accepta animale de companie de talie mica.
Sediul central - Timișoara
Bulevardul Victor Babeș nr. 2, 300230, Timișoara, România
Tel: +40.374.40.44.98 / Fax: +40.256.401.179
Email: suport@imobiliare.ro
Luni - Vineri 08:00 - 20:00
Punct de lucru - București: Iride Business Park, Bld. Dimitrie
Pompeiu 9-9A, Clădirea B2B,
020335, Sector 2, București, România
CONTACT
Sediul central - Timișoara
Bulevardul Victor Babeș nr. 2, 300230, Timișoara, România
Tel: +40.374.40.44.98 / Fax: +40.256.401.179
Email: suport@imobiliare.ro
Luni - Vineri 08:00 - 20:00
Punct de lucru - București: Iride Business Park, Bld. Dimitrie
Pompeiu 9-9A, Clădirea B2B,
020335, Sector 2, București, România
Sună acum și cere detalii sau programează o vizionare.
Cere detalii prin email
*
*
*
*
Stații autobuz
Școli
Universități
Gradinițe
Supermarket
Mall
Parcări
Piețe publice
Parcuri
Terenuri sport
Farmacie
Spital
Restaurant
Cafenea
Pub
Bar
Bancă
Statia N.Balcescu , linia 50, 50barat, 51,52
aprox.
298 m
Nicolae Balcescu
aprox.
298 m
Biserica Neagra
aprox.
435 m
Statia "Primarie", linia 1,4,34,37,2,31,17,36,6,52,50,50barat,16,51
aprox.
440 m
Astra
aprox.
444 m
Statia "Biserica Neagra", linia 50,50barat,51,52
aprox.
454 m
Statia Astra, liniile 14,28,5,41
aprox.
513 m
Astra
aprox.
513 m
Liceul Saguna
aprox.
642 m
Primarie
aprox.
646 m
Statia Liceul Saguna, linia 50, 50barat, 51,52
aprox.
656 m
Statia "Brancoveanu", linia 50,50barat,51,52
aprox.
673 m
Brancoveanu
aprox.
684 m
Teatrul Dramatic
aprox.
715 m
Statia Star , linia 50, 50barat, 51,52
aprox.
728 m
Liceul Aprily Lajos
aprox.
178 m
Colegiul National Aprily Lajos
aprox.
193 m
Universitatea Transilvania Rectorat
aprox.
212 m
Scola generala nr. 6
aprox.
233 m
liceul teoretic Johannes Honterus
aprox.
273 m
Liceul Teoretic J. Honterus
aprox.
335 m
Universitatea Transilvania Brașov - Corpul N
aprox.
471 m
Colegiul National Unirea
aprox.
519 m
Liceului cu Program Sportiv Brasov
aprox.
535 m
Liceul Sportiv
aprox.
573 m
Liceul de Muzica "Tudor Ciortea"
aprox.
622 m
Grupul Scolar de Industrie Usoara
aprox.
626 m
Inspectoratul Scolar Judetean
aprox.
633 m
Colegiul National "Andrei Saguna"
aprox.
709 m
Grupul Scolar Silvic "N. Rucareanu"
aprox.
883 m
Corpul T al Universitatii Transilvania (en)
aprox.
303 m
Universitatea Transilvania Corp T
aprox.
311 m
Facultatea de Silvicultură. Corp "S"
aprox.
469 m
Universitatea Transilvania Corp N
aprox.
471 m
Facultatea de Silvicultura
aprox.
473 m
Facultatea de Psihologie si Stiintele Educatiei
aprox.
492 m
Universitatea Transilvania. Corp "K"
aprox.
502 m
Facultatea de Alimentatie si Turism
aprox.
614 m
Universitatea Transilvania. Corp "R"
aprox.
619 m
Facultatea de Muzica Brasov
aprox.
693 m
Facultatea de Muzica
aprox.
701 m
Universitatea Transilvania Corp "M"
aprox.
823 m
American Hotel Academy
aprox.
825 m
Facultatea de Matematica si Informatica. Corp "P"
aprox.
1150 m
Corp P
aprox.
1150 m
Gradinita cu program normal nr. 1A (fosta nr.21)
aprox.
501 m
Gradinita cu program normal nr. 3 (fosta nr. 1)
aprox.
606 m
Gradinita cu program normal nr. 4A (fosta nr. 22)
aprox.
788 m
Gradinita cu program prelungit nr. 1 (fosta nr. 32)
aprox.
870 m
Gradinita nr. 2
aprox.
953 m
Gradinita 13
aprox.
978 m
Gradinita cu program prelungit Nr. 8
aprox.
995 m
Gradinita 12A
aprox.
1046 m
Gradinita cu program normal nr. 3A (fosta nr. 7)
aprox.
1157 m
Fastrackids
aprox.
1175 m
Gradinita 12
aprox.
1198 m
Gradinita cu program normal nr. 4 (fosta nr. 15)
aprox.
1611 m
Gradinita cu program prelungit nr. 14 (fosta nr. 36)
aprox.
1628 m
Gradinita Nr.14 PP
aprox.
1647 m
Gradinita Nr.14 cu program prelungit
aprox.
1652 m
Supermarket Dodo
aprox.
166 m
Sergiana
aprox.
177 m
STAR
aprox.
658 m
LeFruMarin
aprox.
672 m
API Biomania
aprox.
1271 m
Kaufland
aprox.
1601 m
Carrefour Market
aprox.
1604 m
Profi
aprox.
1612 m
Sergiana
aprox.
1612 m
Profi
aprox.
1703 m
Profi
aprox.
1732 m
Penny
aprox.
1736 m
Profi
aprox.
1793 m
Sergiana
aprox.
1899 m
Magazinul Star
aprox.
642 m
Parcare cu plata
aprox.
194 m
Parcare cu plata
aprox.
196 m
Parcare
aprox.
196 m
Parcare
aprox.
213 m
Parcare
aprox.
246 m
Parcare cu plata
aprox.
255 m
Parcare
aprox.
258 m
Parcare cu plata
aprox.
269 m
Parcare cu plata
aprox.
278 m
Parcare cu plata
aprox.
280 m
Parcare cu plata
aprox.
285 m
Parcare cu plata
aprox.
316 m
Parcare cu plata
aprox.
326 m
Parcare cu plata
aprox.
352 m
Parcare cu plata
aprox.
391 m
Piața George Enescu
aprox.
60 m
Piata Sfatului
aprox.
126 m
Honterus Courtyard(Square)
aprox.
280 m
Piața Unirii
aprox.
1104 m
Parcul Aro
aprox.
255 m
Parc Turnuri
aprox.
276 m
Padure
aprox.
323 m
Parc Rudolf
aprox.
324 m
Parcul Nicolae Titulescu
aprox.
355 m
Loc de joaca pentru copii
aprox.
387 m
Lumea Copiilor
aprox.
394 m
Parc
aprox.
397 m
Parcul Nicolae Titulescu
aprox.
410 m
Parc
aprox.
482 m
Parcul Livada Poștei
aprox.
488 m
Parc Ecaterina
aprox.
496 m
Parcul primariei
aprox.
514 m
Parc
aprox.
514 m
Parcul Eroilor
aprox.
544 m
Teren sportiv
aprox.
328 m
Teren sportiv
aprox.
382 m
Teren sportiv
aprox.
449 m
Teren sportiv
aprox.
456 m
Teren baschet
aprox.
486 m
2 Terenuri Basket
aprox.
533 m
Teren Tenis/Volei
aprox.
539 m
Teren sportiv
aprox.
540 m
Loc de joaca
aprox.
551 m
Teren sportiv
aprox.
570 m
Teren sportiv
aprox.
587 m
Teren sportiv
aprox.
603 m
Teren fotbal
aprox.
613 m
Teren sportiv
aprox.
650 m
Teren sportiv
aprox.
665 m
HelpNet
aprox.
88 m
Toro Optic Ophtalmologie
aprox.
166 m
HelpNet
aprox.
166 m
Sic Volo
aprox.
310 m
SensiBlu
aprox.
663 m
Catena
aprox.
701 m
Siderea Farm
aprox.
706 m
Farmacie
aprox.
1554 m
Farmacom
aprox.
1616 m
Sensiblu
aprox.
1675 m
Farmacom
aprox.
1713 m
Drogherie
aprox.
1742 m
HelpNet
aprox.
1745 m
Farmacie
aprox.
1750 m
Farmacia Santa
aprox.
1804 m
Spitalul clinic de ginecologie Dr. Ioan Aurel Sbarcea - Brasov
aprox.
457 m
Brasov Maternity (en)
aprox.
470 m
Spitalul de Neuro-Psihiatrie
aprox.
524 m
Spitalul Judetean Dermato-Venerice
aprox.
529 m
Spitalul de Neuropsihiatrie
aprox.
576 m
Bioclinica
aprox.
588 m
Spital Judetean Oncologie
aprox.
668 m
Spitalul de Psihiatrie si Neurologie
aprox.
688 m
Spitalul Militar
aprox.
829 m
Spitalul militar
aprox.
883 m
Spitalul Clinic de Pneumoftiziologie
aprox.
999 m
Pavilioanele Marzescu
aprox.
1030 m
Pavilionul V
aprox.
1057 m
Pavilionul VI
aprox.
1060 m
Spitalul Marzescu
aprox.
1098 m
Altstadt - German restaurant (en)
aprox.
44 m
Am Rosenanger
aprox.
67 m
KFC
aprox.
68 m
KFC
aprox.
68 m
Taj Mahal
aprox.
107 m
Prato
aprox.
112 m
Pilvax
aprox.
115 m
Pizza Stega
aprox.
127 m
Brasserie
aprox.
152 m
La Ceaun
aprox.
152 m
La Ceaun
aprox.
152 m
Restaurant Cinezesc "Marele Zid"
aprox.
154 m
Restaurant La Ceaun
aprox.
168 m
Bella Muzica
aprox.
188 m
Restaurantul Piața Sfatului
aprox.
192 m
Come Back
aprox.
66 m
Bistro de l'Arte
aprox.
98 m
Internet Cafe
aprox.
105 m
Open Heart
aprox.
155 m
Tipografia
aprox.
193 m
Colaj
aprox.
213 m
Cafeteca Express
aprox.
224 m
Cafeteca
aprox.
291 m
Kasho Lounge
aprox.
359 m
Galleria Art & Coffe
aprox.
565 m
Lumea Copiilor
aprox.
675 m
Ceai et caetera
aprox.
1419 m
La Strada
aprox.
1457 m
Niagara
aprox.
1706 m
Publick
aprox.
117 m
Michele Pub
aprox.
131 m
Deane's Irish Pub & Grill
aprox.
192 m
Formula Pub
aprox.
227 m
The Hockey Pub
aprox.
288 m
The Vintage Pub
aprox.
339 m
Britannia arms
aprox.
404 m
Times
aprox.
447 m
Simone
aprox.
525 m
For Sale Pub
aprox.
940 m
Social Pub
aprox.
1858 m
Temple Pub & Grill
aprox.
1908 m
Rasta Bar Jamaica
aprox.
206 m
Die Stube
aprox.
274 m
L'Etage
aprox.
309 m
Festival '39
aprox.
375 m
Beraria Ciucas
aprox.
426 m
Croitoria de cafea
aprox.
857 m
Rockstadt
aprox.
1204 m
Propaganda
aprox.
1461 m
Bogado
aprox.
1484 m
Rockstadt
aprox.
1508 m
BRD
aprox.
58 m
MKB Romexterra Bank
aprox.
77 m
CEC Bank
aprox.
130 m
OTP bank
aprox.
367 m
Citybank
aprox.
401 m
Banca Transilvania
aprox.
458 m
Bancpost
aprox.
643 m
OTP Bank
aprox.
653 m
ING BANK, ING ASIGURARI DE VIATA
aprox.
658 m
Raiffeisen Bank
aprox.
683 m
Bank of Cyprus
aprox.
695 m
Libra Bank
aprox.
701 m
Piraeus Bank
aprox.
917 m
Marfin Bank
aprox.
1279 m
Banca Feroviara Brasov
aprox.
1424 m
Dacă decizi să te muți în cartierul Brașovul Vechi, vei avea la dispoziție mai multe mijloace de transport public în comun cu care te poți deplasa foarte ușor în alte zone ale orașului. Concret, cartierul este traversat de trei linii de autobuz. Este vorba de autobuzul 5, care leagă Stadionul Municipal de Roman, autobuzul 14, care circulă pe traseul Livada Poștei - Fabrica de Var, și autobuzul 28, care pornește din Livada Poștei și are capăt de linie la Fundăturii. Totodată, la marginea cartierului mai circulă două linii de autobuz. Și anume, linia 22, care pornește de la Stadionul Tineretului și are capăt la Saturn, și linia 41, care circulă pe traseul Lujerului - Livada Poștei. De asemenea, la limita cu cartierul Blumăna, Brașovul Vechi mai este străbătut de trei linii de autobuz. Autobuzul 1 leagă Livada Poștei de Triaj, autobuzul 2 circulă pe traseul Livada Poștei - Rulmentul, iar linia 4 leagă Liva Poștei de Gara Brașov.
Între granițele acestui cartier nu ai foarte multe alternative din punct de vedere educațional. Concret, găsești o singură unitate de învățământ de stat. Astfel, pe str. Colonel Ion Buzoianu funcționează Liceul Vocațional de Muzică "Tudor Ciortea". De asemenea, în zonă își desfășoară activitatea un centru educațional care oferă cursuri IT, situat pe str. Doctor Ion Rațiu, un altul artistic, pe str. Doctor Ion Rațiu, și o școală teologică destinată persoanelor de etnie romă, pe str. Alexandru Ioan Cuza. Însă mai multe oportunități sunt în cartierul vecin Blumăna. Aici își desfășoară activitatea Universitatea Transilvania, cea mai mare instituție de învățământ superior din centrul României, care numără 18 facultăți. Totodată, în Blumăna găsești și cinci licee și colegii la care poți să-ți înscrii copilul.
Pentru cumpărături, în cartierul Brașovul Vechi găsești, pe lângă micile magazine, și un supermarket Lidl, pe str. Alexandru Ioan Cuza. În zonă nu își desfășoară activitatea niciun mall, însă un centru comercial găsești în apropiere, în cartierul vecin. Este vorba de Star, în care sunt deschise diferite magazine de unde poți să cumperi ce ai nevoie. Aici găsești și un supermarket Carrefour. Totodată, în cartierul vecin Blumăna poți să faci cumpărături de la un alt supermarket Carrefour, plus unul Mega Image și altul Profi.
Pentru că vorbim de un cartier aflat în centrul orașului Brașov, cea mai aglomerată zonă, există o problemă privind găsirea cu ușurință a unui loc de parcare în Brașov Vechi.
La capitolul recreere, cartierul Brașovul Vechi stă foarte bine. Parcul Central "Nicolae Titulescu", cel mai mare din Brașov, se află în zonă. Acesta datează din jurul anului 1885 și este unul modern și bine întreținut. Nu foarte departe găsești și Parcul "Livada Poștei", ideal pentru plimbări relaxante în natură. De asemenea, în apropiere de Casa Armatei se află o frumoasă fântână arteziană, cea mai veche din Brașov, fiind realizată în jurul anului 1900. Un alt obiectiv turistic important este reprezentat de Cetățuia de pe Strajă, una dintre cele mai importante fortificații medievale din România. Totodată, foarte aproape de acest cartier se află Biserica Neagră, simbolul orașului Brașov.
Din punct de vedere medical, în cartierul Brașov Vechi își desfășoară activitatea Spitalul de Psihiatrie și Neurologie, pe str. Mihai Eminescu. De asemenea, în apropiere, pe str. Nicolae Iorga, funcționează trei clinici medicale private: prima tratează varicele, a doua psoriazisul, iar a treia diferite răni. Între granițele acestui cartier funcționează și un spital privat de recuperare medicală, pe str. Lungă, iar lângă el, pe aceeași stradă, găsești și un laborator medical particular, precum și o clinică de stomatologie. De asemenea, un alt centru medical modern se află și pe str. Alexandru Ioan Cuza.
Dacă intenționezi să iei masa în oraș, la capitolul gastronomie găsești în cartierul Brașovul Vechi mai multe alternative. De menționat ar fi o cafenea selectă situată pe str. Colonel Ion Buzoianu, și un restaurant cu bar, pe str. Alexandru Ioan Cuza. De asemenea, un restaurant cu specific italian găsești pe str. Doctor Ion Cantacuzino, unul cu preparate la grătar pe str. Crișan, iar alte două cu specific internațional pe str. Șirul Livezii și pe str. Lungă. Pentru o ofertă și mai diversificată, poți merge în cartierul vecin Blumăna, unde se află și Biserica Neagră, simbolul orașului Brașov, în jurul căreia găsești numeroase cafenele și restaurante pentru toate gusturile.
Din punct de vedere bancar, în cartierul Brașovul Vechi nu ai alternative. Însă acest lucru nu ar trebui să reprezinte o mare problemă, în condițiile în care în cartierul Blumăna, aflat în apropiere, găsești numerose sucursale bancare și bancomate alte unor bănci precum Banca Transilvania, BRD, Raiffeisen Bank sau UniCredit Bank.
Înainte să pleci...
Ești sigur că ai văzut și aceste proprietăți?
1.500 €
/ lună
Județul Brașov, Cristian
3 camere
100 mp
850 mp teren
1.500 €
/ lună
Brașov, Central
3 camere
84 mp
420 mp teren
1.500 €
/ lună
Brașov, Exterior Est
6 camere
152 mp
500 mp teren
Creează alertă
Salvează căutarea ca să primești pe email ultimele anunțuri publicate
Case individuale cu 3 camere de închiriat în zona Central, Brașov
Cere detalii prin email
*
*
*
*
Detaliile tale de contact vor fi partajate cu The Seller & Partners