Proprietar ofer spre închiriere casa individuala în Cartierul Militar din Gheorgheni, langa baza sportivă și Iulius Mall, aproape de Transilvania College și Facultatea de Științe Economice.
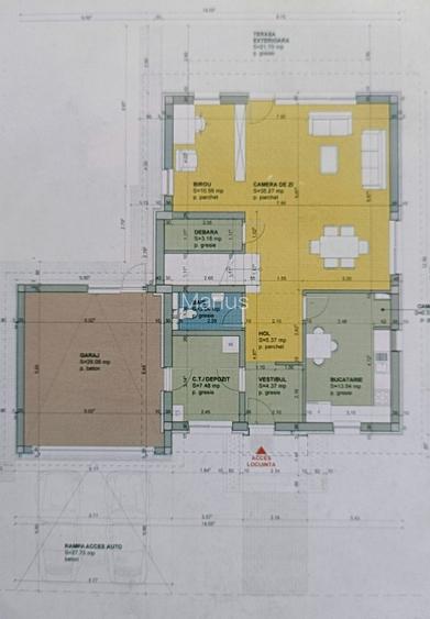
Suprafața utilă 200 mp, P+E, garaj dublu, teren total 530 mp, parțial mobilata, nemobilata sau se poate mobila ulterior în funcție de client și perioada contract.
Parter - hol, living 45 mp, bucătărie separată, camera tehnica, camera depozitare, 1 baie, terasa curte.
Etaj - 4 dormitoare, 2 băi, terasa deasupra garajului 30 mp, balcon. AC în fiecare dormitor.
Posibilitate de parcare 4-6 mașini.
Curte cu gazon și sistem de irigații.
Sistem de securitate.
Încălzire cu centrală pe gaz.
Se poate închiria atât pt locuit cât și pt activități de birou.
În prezent este închiriată și va fi disponibilă după 1 Iunie.
NU se acceptă animale de companie.
Sediul central - Timișoara
Bulevardul Victor Babeș nr. 2, 300230, Timișoara, România
Tel: +40.374.40.44.98 / Fax: +40.256.401.179
Email: suport@imobiliare.ro
Luni - Vineri 08:00 - 20:00
Punct de lucru - București: Iride Business Park, Bld. Dimitrie
Pompeiu 9-9A, Clădirea B2B,
020335, Sector 2, București, România
CONTACT
Sediul central - Timișoara
Bulevardul Victor Babeș nr. 2, 300230, Timișoara, România
Tel: +40.374.40.44.98 / Fax: +40.256.401.179
Email: suport@imobiliare.ro
Luni - Vineri 08:00 - 20:00
Punct de lucru - București: Iride Business Park, Bld. Dimitrie
Pompeiu 9-9A, Clădirea B2B,
020335, Sector 2, București, România
Facultatea de Stiinte Economice si Gestiunea Afacerilor (en)
aprox.
1050 m
FSEGA
aprox.
1050 m
Universitatea Crestina Dimitrie Cantemir
aprox.
1076 m
Universitatea Crestina "Dimitrie Cantemir"
aprox.
1083 m
Facultatea de Psihologie si Stiinte ale Educatiei
aprox.
1979 m
Facultatea de Sociologie (UBB)
aprox.
1986 m
Facultatea de Sociologie si Asistenta Sociala
aprox.
1988 m
Auchan
aprox.
406 m
Iulius Mall
aprox.
481 m
Profi
aprox.
666 m
Profi
aprox.
886 m
puiul de gaesti
aprox.
902 m
Lidl
aprox.
973 m
Profi
aprox.
1258 m
Selgros
aprox.
1270 m
Profi
aprox.
1419 m
Profi Marasti
aprox.
1525 m
Profi
aprox.
1525 m
Carrefour
aprox.
1758 m
Carrefour
aprox.
1761 m
Carrefour Market
aprox.
1789 m
Complex Comercial Hermes
aprox.
1821 m
Parcare
aprox.
139 m
Parcare
aprox.
297 m
Parcare privata
aprox.
403 m
Parcare privata
aprox.
411 m
Parcare privata
aprox.
417 m
Parcare privata
aprox.
427 m
Parcare privata
aprox.
448 m
Parcare
aprox.
516 m
Parcare
aprox.
546 m
Parcare
aprox.
555 m
Parcare
aprox.
567 m
Parcare
aprox.
593 m
Parcare
aprox.
599 m
Parcare
aprox.
602 m
Parcare pentru clienti
aprox.
621 m
Teren sportiv
aprox.
180 m
Teren sportiv
aprox.
183 m
Teren sportiv
aprox.
190 m
Teren sportiv
aprox.
198 m
Teren sportiv
aprox.
199 m
Teren sportiv
aprox.
211 m
Terenuri volei de plaja
aprox.
225 m
Terenuri volei de plaja
aprox.
238 m
Teren sportiv
aprox.
252 m
Teren sportiv
aprox.
256 m
Teren sportiv
aprox.
263 m
Enjoy Tennis Club
aprox.
280 m
Teren sportiv
aprox.
310 m
Teren sportiv
aprox.
404 m
Teren sportiv
aprox.
504 m
Parc
aprox.
273 m
Parc
aprox.
281 m
Loc de joaca pentru copii
aprox.
346 m
Parc
aprox.
491 m
Parc de copii
aprox.
491 m
Parc
aprox.
537 m
Parc
aprox.
630 m
Iulius Park
aprox.
689 m
Parc
aprox.
761 m
Parc
aprox.
762 m
Parc
aprox.
799 m
Parc
aprox.
823 m
Parc
aprox.
843 m
Parc
aprox.
869 m
Parc
aprox.
888 m
Piata Ira
aprox.
1277 m
Farmacia Remedium
aprox.
611 m
Farmacia Mihon
aprox.
682 m
Farmacia Catena
aprox.
892 m
Farmacia Mercur
aprox.
896 m
Richter
aprox.
1229 m
Clinica Interservisan
aprox.
1235 m
Farmacia Myriad
aprox.
1254 m
Farmacia Catena
aprox.
1261 m
Catena
aprox.
1292 m
Farmacia Quercia
aprox.
1377 m
Omnia
aprox.
1404 m
Helpnet
aprox.
1537 m
Catena
aprox.
1728 m
Remedium
aprox.
1772 m
Farmacia Rodafarm
aprox.
1795 m
Dispensar Gheorghieni
aprox.
980 m
Novia Cosmetic Harmony Clinic
aprox.
1245 m
Clinica Interservisan (en)
aprox.
1257 m
Pr. Theodora
aprox.
1520 m
Med Center
aprox.
1600 m
SmartDental (en)
aprox.
1681 m
Optilens
aprox.
1740 m
Centrul de Ingrijiri Paliative
aprox.
1742 m
Policlinica Radusan
aprox.
1960 m
Alimentatie publica
aprox.
291 m
Subway
aprox.
345 m
Cantinna
aprox.
370 m
Darius Pizza
aprox.
563 m
Cantina si Restaurantul studentesc FSEGA
aprox.
1042 m
PocoLoco
aprox.
1092 m
Placintarie
aprox.
1114 m
Siret Bistro
aprox.
1126 m
Pizzeria "La Luca"
aprox.
1146 m
Lunexim
aprox.
1151 m
Pizzeria Piccola
aprox.
1180 m
"Sapca lui Ceausescu"
aprox.
1186 m
Rebreanu
aprox.
1219 m
Impact Restaurant & Events
aprox.
1231 m
Imperial Ballroom
aprox.
1373 m
Starbucks
aprox.
660 m
Charlie Bar
aprox.
1066 m
Graffiti
aprox.
1211 m
Conapt Prodcom SRL
aprox.
1362 m
Terasa Miraj
aprox.
663 m
Infinity Games
aprox.
910 m
Bar
aprox.
1237 m
Sc Rampera SRL
aprox.
1254 m
Pisti Bar
aprox.
1263 m
Blue Galaxy
aprox.
1311 m
Ares
aprox.
1900 m
Cafe La Roca
aprox.
1941 m
Cafe Bar
aprox.
1954 m
Bar
aprox.
1967 m
Banca Transilvania
aprox.
577 m
BRD
aprox.
612 m
Banca Transilvania
aprox.
620 m
BRD
aprox.
864 m
Raiffeisen Bank
aprox.
1116 m
Banca Transilvania
aprox.
1261 m
Bancpost
aprox.
1266 m
BRD
aprox.
1274 m
Raiffeisen Bank
aprox.
1319 m
BRD
aprox.
1322 m
Bancpost
aprox.
1354 m
Banca Romaneasca
aprox.
1369 m
Banca Transilvania
aprox.
1399 m
Banca Comerciala Carpatica
aprox.
1521 m
BCR
aprox.
1545 m
Dată fiind apropierea de centru, cartierul este deservit de mai multe linii de transport în comun, în special autobuze, printre se numără: liniile 3 și 33 care circulă pe Bulevardul Nicolae Titulescu, autobuzele 34 și 48 care merg pe Strada Unirii și ajung la Iulius Mall (alături de liniile 24 și 24B), dar și liniile 20, 32, 32B și M13 care circulă pe Strada Constantin Brâncuși, la limita cu Andrei Mureșanu.
Dacă vei decide să te muți în Gheorgheni, probabil că nu vei avea de ce să-ți faci griji în ceea ce privește oportunitățile de educație. Aici vei găsi atât grădinițe ("Lumea Copiilor", "Paradisul Prichindeilor"), cât și școli (Școala Primară și Grădinița "Kinderland", Școala Gimnazială "Constantin Brâncuși") și licee (Liceul Teoretic "Lucian Blaga", Colegiul Național Pedagogic "Gheorghe Lazăr"). Aici se află și o importantă de învățământ superior, anume Facultatea de Științe Economice și Gestiunea Afacerilor (amplasată în apropiere de Iulius Mall). Aproape de granița cu Mărăștiul, se află și una dintre cele două clădiri ale Facultății de Științe Politice, Administrative și ale Comunicării, parte a Universității "Babeș-Bolyai".
Și în materie de shoppping locuitorii acestui cartier sunt avantajați, aceștia având acces la unul dintre cel mai bine reputate malluri din capitala Transilvaniei "“ este vorba despre Iulius Mall Cluj-Napoca, amplasat în imediata apropiere a lacului Gheorgheni. Având o vechime de peste zece ani, complexul comercial a devenit, în acest răstimp, una dintre destinațiile predilecte de cumpărături pentru clujenii din cartier (și nu numai). Pe lângă magazinele de îmbrăcăminte, încălțăminte, electrocasnice etc., în Iulius Mall se găsește și un hipermarket Auchan, ce completează oferta magazinelor de mai mici dimensiuni din cartier. Deloc de neglijat sunt, desigur, și facilitățile de petrecere a timpului liber oferite de centrul comercial, prin componenta de restaurante și cafenele, dar și prin cinema și locurile de joacă pentru copii (inclusiv în parcul exterior).
În ceea ce privește locurile de parcare, locuitorii Gheorgheniului beneficiază de un avantaj important, anume parcarea supraetajată, cu o capacitate pentru circa 350 de mașini, deschisă de către autorități pe Aleea Băișoara. Cei interesați de închirierea unui astfel de spațiu (aici, dar nu numai) se pot adresa funcționarilor de la Primăria de cartier.
La capitolul recreere, acest cartier al capitalei Transilvaniei beneficiază de multiple oportunități. Una dintre acestea este dată, bineînțeles, de accesul la Lacul Gheorgheni, unde clujenii pot ieși la plimbare, iar pasionații pot pescui. Potrivit pentru un timp de relaxare în aer liber este și parcul Mercur "“ amplasat la sud, în continuarea zonei de blocuri din centru, acesta este unul dintre cele mai liniștite și bine întreținute parcuri din Cluj-Napoca. Gheorgheniul oferă beneficii și pasionaților de sport: pe lângă sălile de fitness ce pot fi găsite în cartier, aceștia au acces și la două baze sportive. Cea dintâi este Baza Sportivă Napoca , dotată cu terenuri de fotbal cu teren sintetic și nocturnă, dar și teren multifuncțional. Cea de-a doua este Baza Sportivă Gheorgheni, ce se întinde pe o suprafață de peste nouă hectare și dispune, printre altele, de terenuri de minifotbal, badminton, tenis, beach-volei și baschet.
La capitolul sănătate, locuitorii acestui cartier al Clujului beneficiază de accesul rapid către centru, unde se găsesc cele mai multe instituții medicale de stat (precum Spitalul Clinic Județean de Urgență Cluj-Napoca, Spitalul Universitar CF Cluj, Institutul Oncologic "Prof. Dr. Ion Chiricuță" etc.). De asemenea, la marginea vestică a Gheorgheniului, aproape de granița cu Centrul, se găsește Spitalul Militar de Urgență "Doctor Constantin Papilian". Paleta de servicii medicale de stat din zonă este completată, desigur, de o serie de cabinete medicale particulare cu diverse specializări. De menționat la acest capitol ar fi Clinica Gynia, de pe Strada General Traian Moșoiu, nr. 60, ce oferă servicii în domeniul obstetrică și ginecologie.
Dacă ești un pasionat al ieșirilor în oraș, te vei bucura să afli că zona Gheorgheni oferă destule oportunități locuitorilor săi. La acest capitol, de menționat ar fi restaurantele "International Ballroom", "Rebreanu 3", dar și "Uzina de Mici". Alte variante interesante pentru o ieșire în oraș cu prietenii sunt disponibile, desigur, în zona Centrală a orașului de pe Someș, populară atât printre localnici, cât și printre turiști.
Dacă ai nevoie să efectuezi o operațiune bancară, în zona Gheorgheni poate fi găsit un sediu Banca Transilvania, dar și două sucursale BCR "“ una pe Strada Nicolae Titulescu, nr. 163, iar cealaltă, pe Bulevardul Nicolae Titulescu, nr. 4 (aproape de granița cu zona Andrei Mureșanu). Consultă harta și află unde sunt localizate și alte bănci sau ATM-uri în zona Gheorgheni:
Înainte să pleci...
Ești sigur că ai văzut și aceste proprietăți?
2.200 € / lună
Cluj-Napoca, Gheorgheni
5 camere
200 mp
530 mp teren
2.200 € / lună
Cluj-Napoca, Gheorgheni
5 camere
200 mp
530 mp teren
2.300 € / lună
Cluj-Napoca, Zorilor
4 camere
170 mp
400 mp teren
Creează alertă
Salvează căutarea ca să primești pe email ultimele anunțuri publicate
Case individuale cu 4+ camere de închiriat în zona Gheorgheni, Cluj-Napoca
Cere detalii prin email
*
*
*
*
Detaliile tale de contact vor fi partajate cu Marius Farcas