REV2005185 Vila Moderna Corbeanca

2.200 € / lună

Corbeanca, Județul Ilfov

Nr. cam.:
4
Sup. utilă:
119 mp
Sup. teren:
1.026 mp
Tip prop.:
Individuală
  • • Locație aproximativă
  • • Vizionare prin apel video

Descriere casă

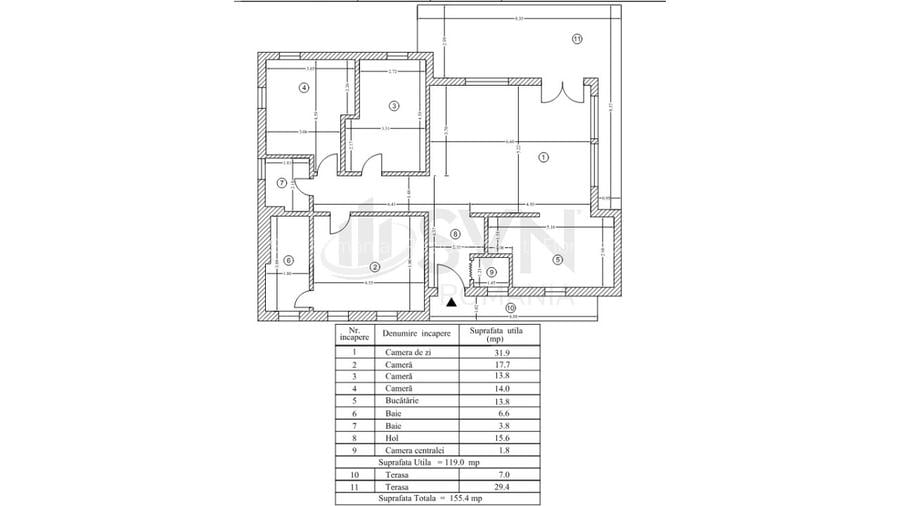
SVN Residentialist Floreasca va ofera spre inchiriere o vila moderna, situata in localitatea Tamasi, comuna Corbeanca. Proprietatea, construita in perioada 2024-2025, este ridicata pe un teren generos de 1082 mp si are o suprafata construita desfasurata de 182 mp, respectiv 156 mp utili. Casa este de tip parter si a fost gandita pentru a oferi confort si functionalitate. Livingul spatios, de 25 mp, se imbina armonios cu zona de dining si cu bucataria open space de 14 mp, care poate fi inchisa la nevoie. Zona de noapte este formata din trei dormitoare, dintre care unul matrimonial cu baie proprie de 7 mp, un birou ce poate fi utilizat si ca dormitor, precum si o a doua baie moderna. Spatiul este completat de o camera tehnica si o terasa generoasa ce se deschide catre gradina. In curte se afla un foisor de 16 mp, o magazie utilata si locuri de parcare atat in interiorul curtii, cat si in exterior. Proprietatea este eficienta energetic, avand certificat A+ si fiind incadrata in standardul NZEB. Amenajarea interioara a fost realizata cu sprijinul unui designer, care a conturat un spatiu unitar, cald si primitor. Mobilierul este facut la comanda, iar electrocasnicele sunt noi, in garantie, apartinand unor marci de top precum Electrolux si Samsung. Incalzirea in pardoseala, pompa de caldura Daikin, cele patru aparate de aer conditionat, tamplaria PVC Gealan cu geam low-E, precum si finisajele premium – ceramica Florim si obiectele sanitare Hansgrohe – confirma nivelul inalt de calitate al casei. Curtea este amenajata cu sistem automatizat de irigatii, are put propriu cu statie de dedurizare si fosa septica, iar accesul se face printr-o poarta automata. Magazia este dotata cu echipamente pentru intretinerea gazonului si scule necesare gospodariei. Aceasta vila reprezinta alegerea ideala pentru cei care isi doresc intimitate si liniste, fiind amplasata intr-o zona retrasa, fara vecini apropiati, dar cu acces facil catre oras. Casa este complet mobilata si utilata, astfel incat viitorii proprietari se pot bucura de o mutare imediata, intr-un camin modern, elegant si confortabil. Pentru mai multe detalii va rugam sa ne contactati, si va asteptam la vizionari si in weekend!
Citește mai mult Citește mai puțin
Grădină Aer condiționat Centrală proprie Sobă/teracotă 1 Parcare

Detalii casă

ID anunț: XENT01033 Copiat! 275142216 Copiat!
Actualizat în: 17 Aprilie 2026
Suprafață construită: 155 mp
Suprafață desfășurată: 119 mp
Nr. bucătării: 1
Nr. băi: 1
Nr. terase: 1
An construcție: 2024 (Finalizată)
Structură rezistență: Altele
Tip imobil: Casă/Vilă
Regim înălțime: P
Perioadă închiriere: Termen lung

Utilități

Destinație
Rezidențial Birouri Birouri
Pereți
Faianță
Podele
Gresie
Ferestre cu geam termopan
PVC
Diverse
Sistem de alarmă Senzor de fum
Facilități imobil
Spații agrement
Utilități
Gaze Apă CATV Curent
Internet
Fibră optică
Servicii imobil
Supraveghere video
Comision
Standard

Vicii:

Fără vicii.

Disponibilitate proprietate:

Disponibil din 20/11/2025.

Puncte de interes

Recreere
sports-ground
Teren sportiv
Terenuri sport aprox. 370 m
park
Pădurea Tămași
Parcuri aprox. 1285 m
park
Pădurea Corbeanca
Parcuri aprox. 1880 m

Proprietăți similare

Casă individuală cu 7 camere în Corbeanca
2.000 € / lună
Județul Ilfov, Corbeanca
7 camere
527 mp
527 mp teren
Casă individuală cu 5 camere în Corbeanca
2.000 € / lună
Județul Ilfov, Corbeanca
5 camere
180 mp
500 mp teren
Casă individuală cu 5 camere în Corbeanca
2.000 € / lună
Județul Ilfov, Corbeanca
5 camere
150 mp
500 mp teren

Detalii de contact

SVN Romania | Residentialist | Floreasca

Anamaria Halasanu Associated Advisor

SVN Romania | Residentialist | Floreasca
PRO

Abonează-te la newsletter să fii primul care primește cele mai noi recomandări de proprietăți și sfaturi de la experți.

CONTACT

Creează alertă

Salvează căutarea ca să primești pe email ultimele anunțuri publicate

Case individuale cu 4+ camere de închiriat în Corbeanca, Județul Ilfov