Vila individuala P+1 ***4 camere***curte proprie 380 mp//CORBEANCA

1.300 € / lună

Corbeanca, Județul Ilfov

Nr. cam.:
4
Sup. utilă:
94 mp
Sup. teren:
388 mp
Tip prop.:
Individuală
  • • Locație aproximativă

Descriere casă

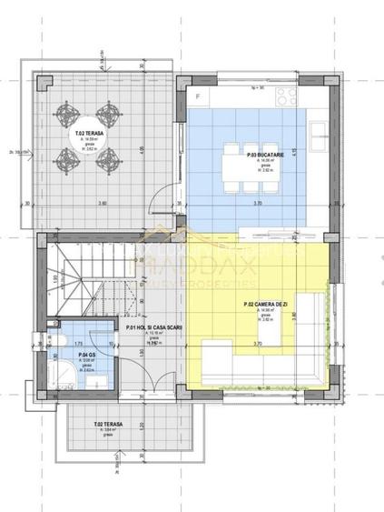
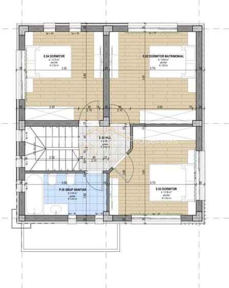
Maddax Luxury Properties va propune spre inchiriere o vila contemporana, de tip mediteranean, aflata intr-un cartier exclusivist din localitatea Tamasi, comuna Corbeanca. Locatia ofera acces rapid la DN1, Otopeni si zona de Nord a Capitalei. Vila are o compartimentare moderna si functionala: 3 dormitoare luminoase la etaj, 2 bai (una cu cada la etaj si a 2-a cu dus, la parter, living generos + zona de dining, bucatarie complet mobilata si utilata, terasa prevazuta cu incalzire in pardoseala. Locuinta dispune de 2 locuri de parcare in curte, avand posibilitatea suplimentarii locurilor de parcare pe aleea complexului pentru musafiri. Gradina casei, cu suprafata de 380 mp, ofera intimitate, natura si libertatea de a va bucura de aer curat si relaxare. Arhitectura moderna, accentele de lumina de pe fațadă, suprafețele interioare vitrate, finisajele de înaltă calitate și tehnologia de varf utilizată, creaza o atmosfera caldă și primitoare. Complexul din care face parte aceasta vila pastreaza rigorile si standardele înalte de calitate in constructii, fiind racordat la toate utilitatile: apa, canalizare, gaz, electricitate, strada asfaltata si iluminata, intreaga zona fiind monitorizata video. Ce face cu adevarat deosebit acest complex este siguranta, linistea, calitatea vecinilor, fiecare casa avand un farmec aparte prin aranjamentele deosebite ale curtilor, cu flori si arbusti ornamentali. Pentru mai multe detalii suntem aici pentru dumneavoastra, Echipa MADDAX Luxury Properties
Citește mai mult Citește mai puțin
Grădină Curte Aer condiționat Încălzire prin pardoseală 2 Parcări

Detalii casă

ID anunț: XDJC1124U Copiat! 275403806 Copiat!
Actualizat în: 04 Aprilie 2026
Suprafață desfășurată: 140 mp
Nr. bucătării: 1
Nr. băi: 2
Nr. terase: 1
Regim înălțime: P+1E
Perioadă închiriere: Termen lung

Utilități

Pereți
Var Vopsea lavabilă
Podele
Parchet
Ușă intrare
Metal
Uși interior
Celulare
Izolații termice
Exterior Interior
Ferestre cu geam termopan
PVC
Contorizare
Apometre Contor căldură Contor gaz
Diverse
Scară interioară Sistem de alarmă
Alte spații utile
Dressing
Facilități imobil
Acoperiș Interfon
Utilități
Curent Apă Canalizare CATV Gaze Telefon
Internet
Cablu
Amenajare străzi
Iluminat stradal Mijloace de transport în comun Asfaltate
Comision
standard

Disponibilitate proprietate:

Imediat

Puncte de interes

Recreere
sports-ground
Teren sportiv
Terenuri sport aprox. 1083 m
park
Pădurea Tămași
Parcuri aprox. 1988 m

Proprietăți similare

Casă individuală cu 4 camere în Corbeanca
1.300 € / lună
Județul Ilfov, Corbeanca
4 camere
136 mp
265 mp teren
Casă individuală cu 5 camere în Corbeanca
1.399 € / lună
Județul Ilfov, Corbeanca
5 camere
145 mp
550 mp teren
Casă individuală cu 5 camere în Corbeanca
1.350 € / lună
Județul Ilfov, Corbeanca
5 camere
160 mp
600 mp teren

Detalii de contact

Abonează-te la newsletter să fii primul care primește cele mai noi recomandări de proprietăți și sfaturi de la experți.

CONTACT

Creează alertă

Salvează căutarea ca să primești pe email ultimele anunțuri publicate

Case individuale cu 4+ camere de închiriat în Corbeanca, Județul Ilfov