8

Vilă modernă cu 5 camere Curtici

1.000 € / lună

Curtici, Județul Arad

Nr. cam.:
5
Sup. utilă:
170 mp
Sup. teren:
700 mp
Tip prop.:
Individuală
  • • Exclusivitate
  • • Locație aproximativă

Descriere casă

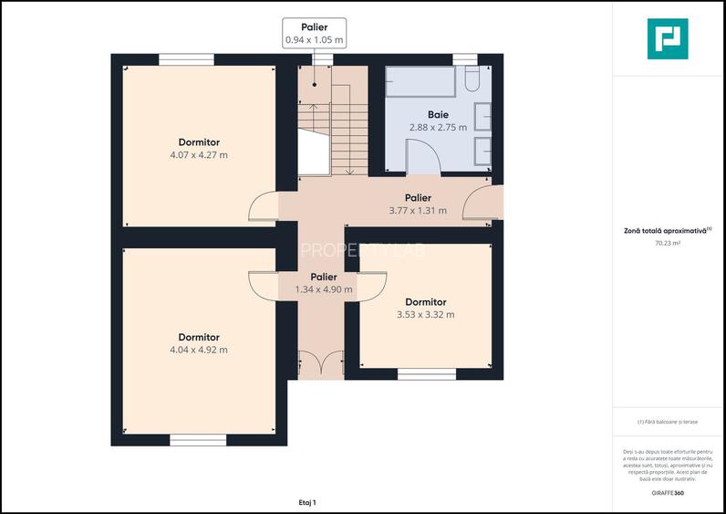
Vilă modernă cu 5 camere Curtici Această vilă modernă cu 5 camere de închiriat este poziționată în apropiere de intrarea în localitatea Curtici. Veți fi surprinși de liniștea și peisajul frumos ce împrejmuiește vila. Aceasta se întinde pe două niveluri: parter și mansardă. Are o suprafață utilă de 150mp. Parterul este compus din hol, living, bucătărie, dressing, baie și o cameră pentru utilități. Livingul foarte luminos, este amenajat în stil minimalist modern, cu mobilier de calitate superioară, simplu și funcțional. Separată printr-un perete de sticlă, se află bucătăria. Este complet mobilată cu mobilier făcut la comandă, cu sisteme de închidere push. Este complet utilată, cu aparatură electrocasnică de ultimă generație. Încălzirea ambelor încăperi se face prin pardoseală. Dressingul este spațios, amenajat cu multe spații pentru depozitare. Este de asemenea foarte luminos, cu ferestre generoase, fiind poziționat pe direcția soarelui. Baia de serviciu este elegantă, curată, ușor de întreținut și are cabină de duș. Mansarda se compune din hol, trei dormitoare, o baie și două balcoane deschise. Dormitorul principal este decorat în culori armonioase, mobilierul și patul dublu foarte confortabil sunt îmbrăcate în piele, iar atmosfera încăperii este călduroasă. Celelalte două dormitoare secundare sunt amenajate pentru copii, personalizate pentru băiat respectiv fată, complet mobilate. Fiecare are loc pentru studiu, pat de o persoană îmbrăcat în piele. Sunt multe spații pentru depozitare foarte luminoase. Baia este spațioasă, veselă și are o cadă clasică, frumoasă. Cele două balcoane deschise sunt accesibile din hol. Utilități: apă, canalizare, gaz, curent și cablu Digi. Întreaga construcție este de calitate superioară, cu finisaje moderne, luminoasă și împrejurimi deosebite. Vă invităm la vizionare! Raluca Marinescu consultant imobiliar PropertyLab Telefon Cod proprietate CP1728172
Citește mai mult Citește mai puțin
Mobilat Lux Curte Aer condiționat Centrală proprie Încălzire prin pardoseală 2 Parcări

Detalii casă

ID anunț: X5I1110NI Copiat! 49275734 Copiat!
Actualizat în: 29 Aprilie 2026
Tip tranzacție: De închiriat prin agent
Suprafață desfășurată: 200 mp
Nr. bucătării: 1
Nr. băi: 2
Nr. balcoane / Terase / Logii: 2
Front stradal: 20.0 m
Învelitoare acoperiș: Țiglă
An construcție: 2008 (Finalizată)
Regim înălțime: P+1E
Perioadă închiriere: Termen lung

Utilități

Destinație
Rezidențial
Pereți
Faianță Vopsea lavabilă
Podele
Gresie Parchet
Ușă intrare
Lemn
Uși interior
Lemn
Izolații termice
Exterior
Contorizare
Apometre Contor gaz
Bucătărie
Mobilată Utilată
Electrocasnice
Aragaz Frigider Hotă Mașină de spălat Mașină spălat vase TV
Diverse
Scară interioară Telecomandă poartă acces auto
Alte spații utile
Dressing
Facilități imobil
Acoperiș
Utilități
Curent Apă Canalizare CATV Gaze Telefon
Internet
Cablu Wireless
Amenajare străzi
Iluminat stradal Mijloace de transport în comun Asfaltate
Comision
standard

Disponibilitate proprietate:

Imediat

Puncte de interes

Recreere
park
Parc
Parcuri aprox. 1804 m

Proprietăți similare

Casă individuală cu 4 camere în Aradul Nou
900 € / lună
Arad, Aradul Nou
4 camere
120 mp
600 mp teren
Casă individuală cu 5 camere în Podgoria
910 € / lună
Arad, Podgoria
5 camere
140 mp
400 mp teren

Detalii de contact

PROPERTY LAB

Raluca Marinescu Real Estate Consultant Arad

PROPERTY LAB

Abonează-te la newsletter să fii primul care primește cele mai noi recomandări de proprietăți și sfaturi de la experți.

CONTACT

Creează alertă

Salvează căutarea ca să primești pe email ultimele anunțuri publicate

Case individuale cu 4+ camere de închiriat în Curtici, Județul Arad