2

Vila Capo | Luxury offices 1800 mp, Dorobanti Capitale, TOP

40.000 € / lună

Aviatorilor, București

Nr. cam.:
15
Sup. utilă:
1.800 mp
Sup. teren:
600 mp
Tip prop.:
Individuală
  • • Locație aproximativă

Descriere casă

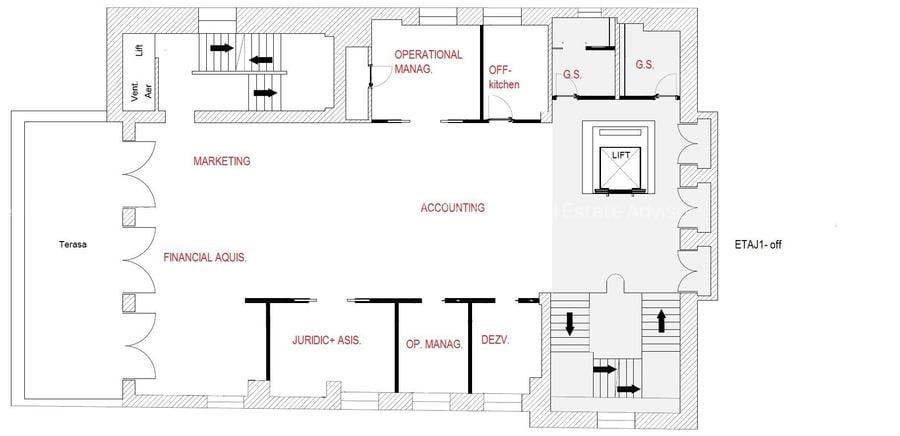
We propose for today one of the architectural jewels of "Little Paris", an art-deco villa, located in Dorobanti area, a building project awarded in the Socio-Cultural Architecture Annual, which has a total usable area of ​​over 1800 square meters on 4 levels, composed from 15 rooms, 10 bathrooms and a garage (with 15 parking spaces). The building is an old villa with art-deco elements and neoclassical accents brought into contemporary thru an intelligent thinking of repartitioning spaces. With an entire floor from glass, transparent, fluid that let his gaze fly freely over the city and with a courtyard of 400 sqm. with green area and fountain, it is obviously the perfect space for your business headquarters. Subdivision of property: Basement: professional kitchen and dining room, office with natural light; Ground floor: reception, offices, toilets; 1st and 2nd floor: open space, offices, toilets; 3rd floor: panoramic view, with glass walls, toilets; 4th floor: apartment with terrace and a beautiful view over the city. All finishes are made specifically for this project unique; stairs stone windows wood joinery aluminum - Vitrocsa / Internorm Austria, air conditioning with fresh air - Samsung DVM, floors of marble and travertine, generator, UPS system, BMS, system access control system / floor, 3 lifts (one full glass), terraces, equipped professional kitchen at semi-basement, 15 parking spaces in the basement, panoramic elevator. Located at a distance of only a few minutes walk to parks Kiseleff and Herastrau, on a street with little traffic and greenery, the property is placed in an exclusive neighborhood, surrounded by embassies and private villas, monuments, access easy by means of public transportation, schools and kindergartens top premium restaurants and cafes, markets and supermarkets. Energy Certificate - Class A.
Citește mai mult Citește mai puțin
Nemobilat Aer condiționat Centrală proprie 15 Parcări 1 Garaj

Detalii casă

ID anunț: X2F7111T6 Copiat! 275281510 Copiat!
Actualizat în: 05 Mai 2026
Tip tranzacție: De închiriat prin agent
Suprafață desfășurată: 2300 mp
Nr. băi: 10
Front stradal: 20.0 m
Învelitoare acoperiș: Tabla
An construcție: 2015 (Finalizată)
Regim înălțime: S+P+4E
Perioadă închiriere: Termen lung

Utilități

Ușă intrare
Lemn
Uși interior
Sticlă
Izolații termice
Exterior Interior
Ferestre cu geam termopan
Aluminiu Lemn
Contorizare
Apometre Contor gaz
Facilități imobil
Interfon
Utilități
Curent Apă Canalizare CATV Gaze Telefon
Internet
Cablu
Servicii imobil
Pază
Amenajare străzi
Iluminat stradal Mijloace de transport în comun Asfaltate
Comision
standard

Disponibilitate proprietate:

Imediat

Puncte de interes

Mijloace transport
tram-station
Pasaj Victoria
Stații tramvai aprox. 144 m
bus-station
Statia RATB linia 300,381,783
Stații autobuz aprox. 426 m
metro-station
Metrorex. Piata Victoriei 1/2 (M1) , (M2)
Stații metrou aprox. 430 m
trolleybus-station
Statia Piata Romana linii : 79,86
Stații troleibuz aprox. 810 m
Școală
school
Liceul Nicolae Tonitza
Școli aprox. 58 m
school
Liceu - Scoala Europeana Bucuresti
Școli aprox. 372 m
university
SNSPA
Universități aprox. 388 m
kindergarten
Gradinita de copii nr.251
Gradinițe aprox. 576 m
Recreere
park
Parc
Parcuri aprox. 105 m
sports-ground
Teren sportiv
Terenuri sport aprox. 162 m
mall
"METROPLIS CENTER"
Mall aprox. 401 m
supermarket
Mega Image - IANCU DE HUNEDOARA
Supermarket aprox. 428 m

Proprietăți similare

Casă individuală cu 15 camere în Aviatorilor
40.000 € / lună
București, Aviatorilor
15 camere
1.800 mp
600 mp teren
Casă individuală cu 13 camere în Nordului
39.000 € / lună
București, Nordului
13 camere
811 mp
646 mp teren

Detalii de contact

IMOBILIARE HERASTRAU - Trusted Real Estate Advisor

Lucian Dan Realtor | Broker Owner

4.22(6 review-uri)

IMOBILIARE HERASTRAU - Trusted Real Estate Advisor
PRO

Abonează-te la newsletter să fii primul care primește cele mai noi recomandări de proprietăți și sfaturi de la experți.

CONTACT

Creează alertă

Salvează căutarea ca să primești pe email ultimele anunțuri publicate

Case individuale cu 4+ camere de închiriat în zona Aviatorilor, Sector 1