R.E.A. Imobiliare vă oferă spre inchiriere o casă tip vilă cu 9 camere în zona Eminescu amplasata într-una dintre cele mai apreciate și liniștite zone ale Bucureștiului.
Teren - 212 mp.
Proprietatea beneficiaza de acces facil catre zona Vasile Lascar, o locatie apreciata pentru pozitionarea centrala si conexiunile rapide catre punctele de interes din oras.
Construita intre anii 1940-1945, a fost renovata, reabilitata si consolidata in anul 2017.
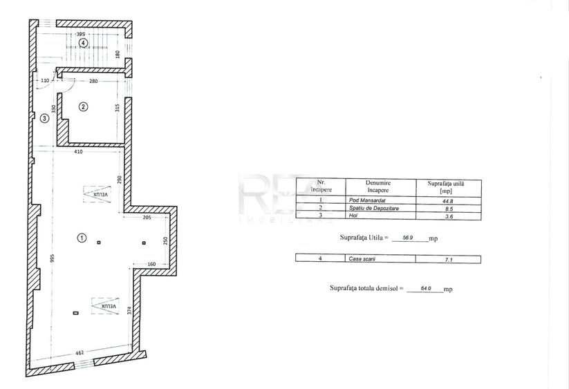
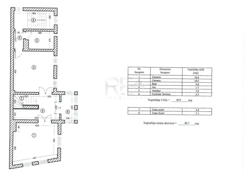
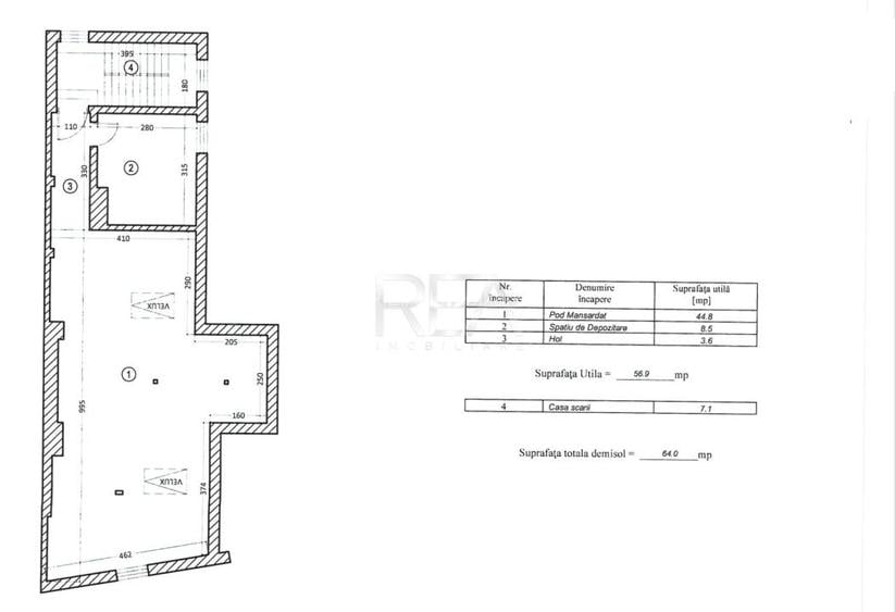
Vila are o suprafață utilă totală de 354 mp și o compartimentare echilibrată: demisol (44 mp.), parter (185 mp), etaj 1 (61 mp) si mansarda (64 mp).
3 bai.
Proprietatea a fost renovată, reabilitata și consolidată complet, oferind un nivel ridicat de confort și siguranță.
Confortul termic este asigurat prin 2 centrale pe gaz.
Zonă pet-friendly, ideală pentru familii sau pentru cei care doresc o locuință spațioasă și elegantă în Bucuresti.
Acces facil la mijloacele de transport în comun: 10-12 minute până la stația de metrou.
Informațiile tehnice au caracter orientativ, acestea fiind preluate de la proprietar.
👉 Dacă sunteți în căutarea unei vile complet renovată și spațioasă în zona Eminescu pentru inchiriere, această proprietate reprezintă o alegere excelentă!
Comision 50% din prima chirie.
Pentru mai multe detalii și vizionări, nu ezitați să ne contactați, specificând codul P10407.
Citește mai mult
Citește mai puțin
Acceptă animale de companie
Nemobilat
Calorifere
Centrală proprie
Renovat
Sediul central - Timișoara
Bulevardul Victor Babeș nr. 2, 300230, Timișoara, România
Tel: +40.374.40.44.98 / Fax: +40.256.401.179
Email: suport@imobiliare.ro
Luni - Vineri 08:00 - 20:00
Punct de lucru - București: Iride Business Park, Bld. Dimitrie
Pompeiu 9-9A, Clădirea B2B,
020335, Sector 2, București, România
CONTACT
Sediul central - Timișoara
Bulevardul Victor Babeș nr. 2, 300230, Timișoara, România
Tel: +40.374.40.44.98 / Fax: +40.256.401.179
Email: suport@imobiliare.ro
Luni - Vineri 08:00 - 20:00
Punct de lucru - București: Iride Business Park, Bld. Dimitrie
Pompeiu 9-9A, Clădirea B2B,
020335, Sector 2, București, România
Sună acum și cere detalii sau programează o vizionare.
Cere detalii prin email
*
*
*
*
Stații tramvai
Stații autobuz
Stații metrou
Stații troleibuz
Școli
Gradinițe
Universități
Supermarket
Mall
Parcări
Parcuri
Terenuri sport
Piețe publice
Farmacie
Spital
Restaurant
Cafenea
Bar
Pub
Bancă
Mihai Eminescu
aprox.
172 m
Statia Mihai Eminescu; Linia:16
aprox.
195 m
Statia Piata Gemeni; Linia:5, 16
aprox.
344 m
Statia Toamnei; Linia:16
aprox.
351 m
Teatrul Metropolis
aprox.
352 m
Toamnei
aprox.
362 m
Teatrul Metropolis
aprox.
389 m
Vasile Lascar
aprox.
519 m
Vasile Lascar
aprox.
529 m
Dr. Grozovici
aprox.
530 m
Dr. Grozovici
aprox.
556 m
Maria Rosetti
aprox.
654 m
Lizeanu
aprox.
697 m
Soseaua Stefan cel Mare
aprox.
697 m
Statia Maria Rosetti;Liniile:5, 16
aprox.
701 m
Mihai Eminescu
aprox.
195 m
Statia Vasile Lascar, linia 330, 335, 1, 46
aprox.
542 m
Statia Dr. Grozovici, linia 330, 335, 1, 46
aprox.
551 m
Statia Lizeanu / Soseaua Stefan cel Mare, linia 330, 335, 1, 16, 46
aprox.
691 m
Statia Soseaua Stefan cel Mare / Stadion Dinamo, linia N123,1, 5, 46
aprox.
704 m
Maria Rosetti
aprox.
714 m
Stefan cel Mare
aprox.
760 m
Statia Fainari; Liniile:N101, 66
aprox.
814 m
Statia Soseaua Stefan cel Mare / Stadion Dinamo, linia 1, 5, 46, N123
aprox.
865 m
Stefan cel Mare
aprox.
876 m
Batistei
aprox.
906 m
Statia Batistei; Linia:N123
aprox.
916 m
Statia Bucur Obor; Liniile:143, 254, N101, 101
aprox.
924 m
Obor
aprox.
966 m
Batistei
aprox.
969 m
Metrorex. Stația Ștefan cel Mare (M1)(1989)
aprox.
815 m
Statia Metrou Piata Obor(M1)Metrorex
aprox.
958 m
Metrorex. Stația Obor (M1)(1989)(Fosta statie de tramvai subterana)
aprox.
993 m
Statia Metrou Piata Romana(M2)Metrorex
aprox.
1187 m
Statia Metrou Piata Romana(M2)Metrorex
aprox.
1195 m
Metrorex. Stația Piața Romană (M2)(1988)
aprox.
1200 m
Piata Romana (M2)
aprox.
1200 m
Statia Soseaua Mihai Bravu, linia 14
aprox.
1486 m
Metrorex. Stația Universitate (M2)(1987)
aprox.
1529 m
Universitate (M2)
aprox.
1615 m
Statia Metrou Piata Universitatii(M2)Metrorex
aprox.
1615 m
Statia Metrou Piata Universitatii(M2)Metrorex
aprox.
1662 m
Metrorex. Piata Victoriei 1/2 (M1) , (M2)
aprox.
2000 m
Statia Calea Dorobantilor; Liniile:79, 86,
aprox.
1019 m
Statia Foisorul de Foc linii : 79,86
aprox.
1098 m
Statia Piata Romana linii : 79,86
aprox.
1212 m
Statia Mihai Bravu; Liniile:69, 85,
aprox.
1482 m
Statia Soseaua Mihai Bravu, linia 68,85
aprox.
1486 m
Statia Teiul Doamnei, linia 66
aprox.
1546 m
Statia Soseaua Pantelimon 85, 69
aprox.
1755 m
Statia Piata Iancului, linia 55
aprox.
1780 m
Scoala Pentru Hipoacuzici
aprox.
165 m
Liceul Tehnologic Special nr. 3
aprox.
177 m
Colegiul National "Cantemir-Voda"
aprox.
300 m
Scoala Postliceala Carol Davila (en)
aprox.
422 m
Gradinita Magnolia
aprox.
484 m
Scoala nr. 24
aprox.
553 m
Scoala generala nr. 24
aprox.
553 m
ȘCOALA DE ARTE ȘI MESERII NR. 3
aprox.
636 m
Scoala de Arte si Meserii Nr. 3
aprox.
662 m
Grădinița (en)
aprox.
673 m
Scoala de teatru
aprox.
682 m
Scoala Generala nr.28
aprox.
688 m
Scoala Generala nr. 28
aprox.
688 m
Scoala nr. 23
aprox.
703 m
Școala Nr. 23 Sf. Silvestru (en)
aprox.
706 m
Gradinita numarul 133
aprox.
519 m
Gradinita numarul 8
aprox.
559 m
Gradinita nr. 138 cu program prelungit
aprox.
592 m
Gradinita numarul 257
aprox.
604 m
Gradinita Ioanid
aprox.
728 m
Ioanid
aprox.
738 m
Gradinita nr. 85
aprox.
1002 m
Gradinita nr. 203 program prelungit
aprox.
1083 m
Gradinita nr. 252 cu program prelungit
aprox.
1084 m
Gradinita nr.203 (fosta Clementa)
aprox.
1088 m
Gradinita
aprox.
1097 m
Gradinita nr.4 "Lizuca"
aprox.
1256 m
Gradinita nr. 116
aprox.
1318 m
Gradinita Magica
aprox.
1418 m
Gradinita numarul 135
aprox.
1433 m
CROS - Universitatea Alternativa
aprox.
669 m
ASE - Cibernetica
aprox.
1048 m
Rectoratul UMF "Carol Davila"
aprox.
1076 m
ASE Cibernetica (en)
aprox.
1088 m
ASE - Facultatea de Comert
aprox.
1099 m
University of Bucharest - Faculty of Foreign Languages and Literatures (en)
aprox.
1172 m
Centrul de Limbi Straine Ariel
aprox.
1178 m
ASE - Cladirea Cihoschi
aprox.
1183 m
Amfiteatrele ASE
aprox.
1184 m
ASE - Sala de sport
aprox.
1190 m
Academia de Studii Economice
aprox.
1209 m
ASE Cladirea Veche 1916 - 1926 (en)
aprox.
1223 m
Universitatea Spiru Haret - Facultatea de Medicina veterinara
aprox.
1227 m
Universitatea din Bucuresti - Facultatea de Stiinte Politice
aprox.
1298 m
Facultatea de Stiinte Politice
aprox.
1308 m
Mega Image Concept Store
aprox.
399 m
Mega Image
aprox.
653 m
Mega Image - Icoanei
aprox.
683 m
Stock Market
aprox.
696 m
Mega Image Supermarket
aprox.
720 m
Mega Image Lizeanu Non-Stop
aprox.
731 m
Mega Image Fainari
aprox.
811 m
OK Non-stop Supermarket (en)
aprox.
831 m
OK Non-Stop
aprox.
831 m
Mega Image
aprox.
841 m
Mega Image
aprox.
919 m
Mega Image
aprox.
977 m
Bacania Coco
aprox.
992 m
BILLA - Dorobanti
aprox.
1071 m
Bila Supermarket
aprox.
1103 m
"METROPLIS CENTER"
aprox.
1285 m
Parcare
aprox.
348 m
Parcare
aprox.
397 m
Parcare
aprox.
707 m
Parcare
aprox.
707 m
Parcare
aprox.
817 m
Parcare
aprox.
931 m
Parcare
aprox.
958 m
Parcare privata
aprox.
977 m
Parcare
aprox.
1022 m
Parcare
aprox.
1040 m
Parcare cu plata
aprox.
1047 m
Parcare
aprox.
1069 m
Parcare
aprox.
1072 m
Parcare
aprox.
1075 m
Parcare
aprox.
1084 m
Parc
aprox.
339 m
Parc
aprox.
345 m
Parc
aprox.
483 m
Parcul Ion Voicu
aprox.
670 m
Parcul "Ioanid"
aprox.
677 m
Parc
aprox.
751 m
Gradina Icoanei
aprox.
855 m
Parcul "Grădina Icoanei"
aprox.
861 m
60 Minutes
aprox.
878 m
Parc
aprox.
887 m
Parc
aprox.
911 m
Parcul Circului(1961)
aprox.
921 m
Parcul Circului
aprox.
1006 m
Small park (en)
aprox.
1019 m
Parc
aprox.
1019 m
Respawn B
aprox.
956 m
Etaj 1 - Hala CQB
aprox.
1040 m
Gradinita
aprox.
1045 m
Parter - Hala mare
aprox.
1046 m
Respawn A
aprox.
1071 m
Stadionul Dinamo
aprox.
1088 m
Teren sportiv
aprox.
1197 m
Teren sportiv
aprox.
1204 m
Teren sportiv
aprox.
1247 m
Teren sportiv
aprox.
1287 m
Teren sportiv
aprox.
1320 m
Teren sportiv
aprox.
1566 m
Teren sportiv
aprox.
1802 m
Teren sportiv
aprox.
1838 m
ICSIM
aprox.
1935 m
Piata Bucur Obor
aprox.
1072 m
Piata Latina
aprox.
1161 m
Piața Romană
aprox.
1245 m
Piata Rosetti
aprox.
1415 m
Piata Revolutiei
aprox.
1546 m
Piata Universitatii
aprox.
1563 m
Piata Iancului
aprox.
1854 m
Piața Drapelului (Tricolorului)
aprox.
1868 m
Piata Roma
aprox.
1975 m
Farmacia Artafarm
aprox.
349 m
Farmacie
aprox.
434 m
Farmaciamerk 2 Pharma
aprox.
451 m
Sensiblu
aprox.
455 m
Colvimed
aprox.
467 m
Farmaciile Reteta
aprox.
486 m
Pharma Life
aprox.
491 m
Help Net Farma
aprox.
498 m
Catena
aprox.
501 m
Belladonna 43
aprox.
521 m
Flavona
aprox.
562 m
Sensiblu Spitalul Colentina
aprox.
586 m
Unitatea 141
aprox.
627 m
Farmacia Humanitas
aprox.
645 m
Farmacia Ana Maria
aprox.
661 m
Dacia Medical Center
aprox.
389 m
Spitalul Cantacuzino
aprox.
390 m
Centrul medical Sanatatea TA
aprox.
428 m
SERVICIUL DE AMBULANTA BUCURESTI-ILFOV
aprox.
431 m
Institutul de Diabet NCPaulescu (en)
aprox.
436 m
Cabinet Gineco
aprox.
448 m
Optim Sano
aprox.
460 m
Clinica de oftalmologie Ama Optimex
aprox.
496 m
Puls
aprox.
515 m
Laurus Medical
aprox.
532 m
PAVILIONUL A
aprox.
567 m
PAVILIONUL F
aprox.
580 m
Centrul Medical Hiperdia
aprox.
586 m
Clinica Gral Medical
aprox.
589 m
PAVILIONUL H
aprox.
597 m
Zexe Zahana
aprox.
133 m
Saphir
aprox.
139 m
Amore Trattoria
aprox.
268 m
Templul Soarelui
aprox.
269 m
Marele Zid
aprox.
291 m
El Vino Tapas & Wine
aprox.
317 m
La Taverna Bar & Grill
aprox.
319 m
Newton Restaurant (en)
aprox.
329 m
Torega
aprox.
350 m
Templul Soarelui
aprox.
390 m
Restaurant chinezesc "Templul soarelui"
aprox.
392 m
La Puicute
aprox.
396 m
Casa Select
aprox.
408 m
Gyros Sotos
aprox.
421 m
Rotiseria Dacia 131
aprox.
442 m
Shiva
aprox.
484 m
Smart Change
aprox.
544 m
Hathor Cafe
aprox.
886 m
5 To Go Lahovari
aprox.
962 m
Slot Cafe
aprox.
970 m
Hobby Caffe & Shop
aprox.
988 m
Newton Caffe
aprox.
1001 m
Music Rooms Cafe
aprox.
1006 m
Tucano Coffee
aprox.
1008 m
Vesuvio Cafe
aprox.
1014 m
Mon Amour
aprox.
1015 m
Tucano Coffee - Dorobanti
aprox.
1016 m
Cappucini
aprox.
1078 m
Ganesha Cafe
aprox.
1097 m
Lente Praporgescu
aprox.
1099 m
Alan Dala
aprox.
495 m
MIM Bistro
aprox.
511 m
E... Varza
aprox.
619 m
Lokal
aprox.
651 m
Trei Betivi
aprox.
759 m
ACAB Pub
aprox.
894 m
La Baraca
aprox.
918 m
Piua Book Bar
aprox.
985 m
Zappa Rock & More
aprox.
1039 m
Cup & Cake
aprox.
1075 m
Geo Bar
aprox.
1160 m
Frame
aprox.
1161 m
Que Pasa
aprox.
1168 m
Antic Bar
aprox.
1197 m
Voltage Bar
aprox.
1206 m
Waldo's
aprox.
570 m
Open Pub
aprox.
637 m
Smart's Pub & Bistro
aprox.
651 m
Panik & Pub
aprox.
877 m
OLD NICK PUB
aprox.
976 m
Bluzz
aprox.
1071 m
Terasa Rustica Foisor
aprox.
1149 m
Restaurant-pizzerie BONA DA ELENA
aprox.
1221 m
Have a Cigar
aprox.
1239 m
Studio Martin
aprox.
1262 m
Le Boutique Food Concept Store
aprox.
1392 m
Club Surubelnita
aprox.
1541 m
Coloseum
aprox.
1668 m
Question Mark Social Club
aprox.
1708 m
La Scena
aprox.
1716 m
BRD Vasile Lascar
aprox.
341 m
ProCredit Bank
aprox.
532 m
Raiffeisen Bank - Agentia Lizeanu
aprox.
537 m
UniCredit Bank - Ag. Lizeanu
aprox.
594 m
BRD Stefan Cel Mare
aprox.
607 m
Sucursala ING Bank (en)
aprox.
629 m
ING Stefan cel Mare - Lizeanu
aprox.
644 m
Banca Comerciala Carpatica
aprox.
648 m
BRD Lizeanu
aprox.
671 m
BCR
aprox.
671 m
Raiffeisen Bank
aprox.
705 m
Raiffeisen Bank - Agentia Mosilor
aprox.
724 m
Raiffaisen bank
aprox.
726 m
BRD
aprox.
728 m
Banca Carpatica
aprox.
734 m
Zona Ștefan cel Mare - Dacia - Eminescu - Armenească este destul de bine conectată cu alte cartiere din București prin intermediul mijloacelor de transport în comun. Printre acestea amintim autobuzul 605 pe care îl poți lua pentru a ajunge la mall-ul Băneasa Shopping City, tramvaiul 16 care te poate ajuta să ajungi la Piața Sf. Vineri și troleibuzul 86 care oferă o legătură directă cu Gara de Nord. Mai multe stații de metrou sunt și ele disponibile în apropiere. Este vorba despre Ștefan cel Mare și Obor, aflate pe magistrala 1 Dristor - Pantelimon, și despre Piața Romană și Universitate situate pe traseul magistralei 2 Berceni-Pipera. Consultă harta pentru a afla poziționarea exactă a stațiilor mijloacelor de transport în comun.
În zona Ștefan cel Mare - Dacia - Eminescu - Armenească vei găsi mai multe unități de învățământ, de stat și private. Amintim astfel Colegiul Național Școala Centrală de lângă Parcul Grădina Icoanei, Colegiul Național "Spiru Haret" de pe Strada Italiană, Colegiul Național "Cantemir Vodă" și Liceul Economic "Virgil Madgearu", ambele situate pe Bulevardul Dacia. Școala Sanitară Postliceală "Carol Davila" se află și ea în această zonă, iar Academia de Studii Economice din București poate fi găsită în apropiere, la Piața Romană. Consultă harta pentru a vedea care vor fi cele mai apropiate grădinițe, școli și licee de viitoarea ta locuință.
În această zonă vei găsi, în principal, magazine mici și câteva supermarketuri. La intersecția dintre Bulevardul Dacia și Strada Vasile Lascăr vei avea la dispoziție Piața Gemeni și un concept store Mega Image. Cel mai apropiat mall este situat în zona Obor. Este vorba despre Veranda Mall, unul dintre cele mai noi astfel de centre comerciale din București. Tot aici găsești magazinul Bucur Obor și o piață. Cu mașina poți ajunge destul de rapid și la mall-ul Promenada sau la complexul comercial cu magazin Kaufland și Carrefour Market de pe Strada Barbu Văcărescu. Consultă harta și află ce alte opțiuni mai ai aproape de viitoarea ta casă, dar și în împrejurimi.
Îți recomandăm să verifici dacă există posibilitatea închirierii unui loc de parcare în apropierea locuinței de care ești interesat. Poți face acest lucru apelând la Serviciul Parcări din cadrul ADP Sector 2. Atunci îți aducem în atenție faptul că Bulevardul Dacia, Strada Mihai Eminescu și Strada Polonă sunt unele dintre cele mai circulate din această zonă. Trafic intens vei întâlni, totodată, la intersecția dintre Calea Dorobanți, Bulevardul Dacia și Strada Mihai Eminescu. Aglomerație vei găsi și pe Bulevardul Ștefan cel Mare, mai ales la orele de vârf și în zilele în care se organizează evenimente sportive în cadrul stadionului Dinamo. Consultă harta și vezi unde se găsesc principalele parcări din această zonă.
În zona Ștefan cel Mare - Dacia - Eminescu - Armenească se organizează periodic diferite evenimente, de la ateliere, la festivaluri și demonstrații de artă stradală. Dacă te vei muta în această parte a orașului, vei avea la doi pași de casă mai multe ceainării, restaurante, spații unde se organizează jocuri de tip escape room și trei teatre - Țăndărică, Metropolis și Bulandra. Pentru evenimente culturale și seri de film vei putea merge pe Bulevardul Dacia, la Institutul Francez din București. Ajungi repede și în centru, unde poți fi spectatorul unei piese puse în scenă de actorii Teatrului Național București. Parcurile Grădina Icoanei și Ioanid, deși sunt destul de restrânse ca suprafață, sunt unele dintre cele mai frumoase din această parte a orașului. Totodată, în nordul acestei zone, în imediata apropiere a Șoselei Ștefan cel Mare, vei găsi Circul Metropolitan București și parcul acestuia, iar în vecinătatea lor Stadionul Dinamo și complexul său sportiv. Nu uita, totodată, că din această zonă vei ajunge destul de rapid în Centrul Vechi, unde pe lângă terase și restaurante găsești și câteva obiective turistice care merită vizitate măcar o dată. Află ce alte puncte de interes găsești în zona Ștefan cel Mare - Dacia - Eminescu - Armenească și din vecinătatea acesteia. Consultă harta.
Dacă te vei muta în această zonă, vei avea la dispoziție mai multe spitale și clinici private. Printre acestea se numără Spitalul Clinic Dr. Ion Cantacuzino din zona Pieței Gemeni și Spitalul Ion Stroia . Alte unități sanitare din vecinătate sunt Spitalul Clinic Colentina, Spitalul Sf. Ștefan, Spitalul Clinic de Urgență București (cunoscut și ca Floreasca) și Spitalul Euroclinic din rețeaua privată de sănătate Regina Maria. Toate acestea sunt concentrate în nordul zonei Ștefan cel Mare - Dacia - Eminescu - Armenească, în vecinătatea Stadionului Dinamo și a Parcului Circului. Vezi pe hartă localizarea exactă a unităților medicale de mai sus.
Presărate pe străzile din această zonă găsești mai multe terase și restaurante mici. Câteva dintre cele mai cochete se află în vechiul cartier Armenesc. De aici ajungi extrem de repede și în Centrul Vechi al orașului, pentru mai multă diversitate. Fiind atât de aproape de centrul orașului, vei avea la dispoziție extrem de multe opțiuni. Restaurantele și cafenelele din Dorobanți sau de pe Calea Floreasca pot fi cu siguranță pe gustul tău. Dacă vrei să faci și o plimbare, să admiri arhitectura frumoasă a vechilor clădiri din București și să te oprești la o cafea sau la o prăjitură, atunci Calea Victoriei poate fi ideală. Pentru o mică gustare sau un meniu fast food ai mai multe variante în zona Obor, iar dacă te grăbești atunci poți încerca drive through-ul McDonald"™s de pe Strada Barbu Văcărescu. Aruncă o privire pe hartă și vezi ce alte restaurante, terase sau cafenele ai în zonă.
Găsești mai multe sucursale bancare și ATM-uri în special pe Șoseaua Ștefan cel Mare. Aruncă o privire pe hartă și vezi ce alte opțiuni găsești în apropierea viitoarei tale locuințe.
Înainte să pleci...
Ești sigur că ai văzut și aceste proprietăți?
3.500 € / lună
București, Dacia
6 camere
353 mp
212 mp teren
3.300 € / lună
București, Ștefan cel Mare
9 camere
510 mp
250 mp teren
2.500 € / lună
București, Dacia
6 camere
355 mp
20 mp teren
Creează alertă
Salvează căutarea ca să primești pe email ultimele anunțuri publicate
Case individuale cu 4+ camere de închiriat în zona Eminescu, Sector 2
Cere detalii prin email
*
*
*
*
Detaliile tale de contact vor fi partajate cu R.e.a. Imobiliare