Nu stau prea mult pe mesaje si s-ar putea sa raspund greu. Cel mai bine este sa ma sunati direct!
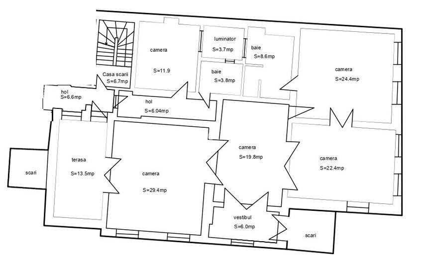
În spiritul eficienței și al respectului pentru timpul dumneavoastră și al nostru, vă recomandăm o pre-evaluare a configurației interioare (schita o regasiti in foto). Această etapă vă va permite să confirmați dacă arhitectura locației este în deplină concordanță cu standardele și exigențele activității dumneavoastră specifice.
Nu se preteaza pentru activitati de tip HORECA, AFTERSCHOOL/GRADINITA, TATOO sau LOCUINTA !
Nu ne adresam persoanelor visatoare si turistilor imobiliari !
Spatiul necesita investitie de catre viitorul chirias sau de catre proprietar pentru un contract mai mare de 2 ani !
In zona Serban Voda - Unirii, se inchiriaza un corp de casa interbelica. Cu 2 bai (o baie en-suite + o baie separata), 5 camere semidecomandate, fiecare cu o inaltime de peste 4 metri si o mica terasa cu vedere catre curte, acest spatiu ofera o senzatie perfecta pentru a inspira cele mai indraznete idei.
Accesul se face prin 2 cai separate iar elementele originale, precum usile cu cristal, ornamentele din salonul de receptie, sobele originale cu farmecul lor vintage, parchetul din lemn masiv, aduc un strop de nostalgie si amintesc de vremurile de aur ale micului Paris .
Spatiul poate deveni centrul atentiei si un loc de intalnire pentru idei stralucitoare.
Cu o suprafata utila de 140 mp si 155 mp cu terasa, acest spatiu devine astfel cadrul ideal pentru exercitarea viziunii dumneavoastră estetice, facilitând crearea unui ambient personalizat, ce va reflecta identitatea și standardele viitorului locatar.
Centrala proprie asigura confortul necesar pe timp de iarna.
Locurile de parcare in curte sunt un bonus, iar subsolul si podul, disponibile contra cost, pot deveni spatii de depozitare ingenioase.
Ideal pentru un cabinet de avocatura, notariat, anticariat, magazin vintage, birouri sau organizarea de evenimente socio-culturale, acest spatiu promite sa devina un loc vibrant in inima capitalei.
Citește mai mult
Citește mai puțin
Nemobilat
Curte comună
Aer condiționat
Calorifere
Centrală proprie
Bine întreținut (Bună)
Sediul central - Timișoara
Bulevardul Victor Babeș nr. 2, 300230, Timișoara, România
Tel: +40.374.40.44.98 / Fax: +40.256.401.179
Email: suport@imobiliare.ro
Luni - Vineri 08:00 - 20:00
Punct de lucru - București: Iride Business Park, Bld. Dimitrie
Pompeiu 9-9A, Clădirea B2B,
020335, Sector 2, București, România
CONTACT
Sediul central - Timișoara
Bulevardul Victor Babeș nr. 2, 300230, Timișoara, România
Tel: +40.374.40.44.98 / Fax: +40.256.401.179
Email: suport@imobiliare.ro
Luni - Vineri 08:00 - 20:00
Punct de lucru - București: Iride Business Park, Bld. Dimitrie
Pompeiu 9-9A, Clădirea B2B,
020335, Sector 2, București, România
Statia Piata Regina Maria, linia N114, 117, 23, 32
aprox.
983 m
Statia Calea 13 Septembrie, linia 136, N121
aprox.
997 m
Statie RATB 385, 104
aprox.
1086 m
Statia Universitatea Crestina Dimitrie Cantemir linii:133.
aprox.
1088 m
Metrorex. Stația Piața Unirii 1 (M1),(M3)(1979)
aprox.
517 m
Piata Unirii 1
aprox.
599 m
Piata Unirii 2
aprox.
619 m
Metrorex. Stația Piața Unirii 2 (M2)(1986)
aprox.
622 m
Metrorex. Stația Piața Unirii 1 (M1) (en)
aprox.
653 m
Metrorex. Stația Piața Unirii 2 (M2) (en)
aprox.
752 m
Metrorex. Stația Tineretului (M2)(1986)
aprox.
763 m
Statia Metrou Tineretului(M2)Metrorex
aprox.
855 m
Tineretului (M2)
aprox.
921 m
Timpuri Noi
aprox.
1035 m
Metrorex. StațiaTimpuri Noi (M1),(M3)(1979)
aprox.
1061 m
Statia Metrou Piata Universitatii(M2)Metrorex
aprox.
1418 m
Universitate (M2)
aprox.
1463 m
Statia Metrou Piata Universitatii(M2)Metrorex
aprox.
1486 m
Metrorex. Statia Izvor (M1) , (M3).
aprox.
1544 m
Scoala nr.74, "Enachita Vacarescu"
aprox.
107 m
Scoala nr 94
aprox.
107 m
Elohim Academi
aprox.
300 m
Scoala Nr. 79 (en)
aprox.
303 m
Scoala nr. 79
aprox.
303 m
Liceul Teoretic "Ion Creanga" (en)
aprox.
311 m
Gradinita Aniela
aprox.
397 m
Liceul de Arte "Dinu Lipatti"
aprox.
457 m
Scoala de Arta
aprox.
468 m
Colegiul National "Ion Creanga"
aprox.
472 m
scoala populara de arta
aprox.
477 m
Liceu de Coregrafie Floria Capsali
aprox.
481 m
Scoala nr.79 "Academician Nicolae Teodorescu"
aprox.
508 m
Liceul Teologic Penticostal "Emanuel"
aprox.
588 m
institutul Irecson
aprox.
796 m
Cresa Micii Poznasi
aprox.
195 m
Gradinita Barba Cot
aprox.
243 m
Gradinita de Copii nr.30 "Copiii soarelui
aprox.
298 m
Gradinita Prikindel
aprox.
541 m
Gradinita nr.192, "Pisicile Aristocrate"
aprox.
549 m
Gradinita nr. 192 (Pisicile aristocrate)
aprox.
549 m
Gradinita "Scufita Rosie"
aprox.
563 m
Gradinita nr.224, "Vestitorii Primaverii"
aprox.
710 m
Gradinita nr. 224
aprox.
711 m
Gradinita cu program prelungit Copiii Soarelui
aprox.
789 m
Gradinita (progr. prelungit) Aleea Borcea - Str. Ruginoasa
aprox.
1007 m
Gradinita nr. 269
aprox.
1411 m
Gradinita Plusica
aprox.
1668 m
Gradinita nr. 268
aprox.
1691 m
Gradinita Pisicel
aprox.
1702 m
Academia de Studii Economice
aprox.
217 m
Academia de Studii Economice: Facultatea de Management - Administratie Publica
aprox.
217 m
Facultatea de Teologie Ortodoxa
aprox.
302 m
Institutul Bancar Român
aprox.
737 m
Casa Academiei
aprox.
1250 m
Universitatea Nicolae Titulescu
aprox.
1259 m
Universitatea "Nicolae Titulescu" - Bucuresti
aprox.
1296 m
Universitatea Crestina "Dimitrie Cantemir"
aprox.
1312 m
Universitatea "Titu Maiorescu"
aprox.
1341 m
Universitatea Titu Maiorescu
aprox.
1341 m
Universitatea Titu Maiorescu - Corp M
aprox.
1343 m
Academia Tehnica Militara
aprox.
1369 m
Facultatea de Stiinte
aprox.
1446 m
Universitatea Titu Maiorescu - Rectorat
aprox.
1447 m
Facultatea de Istorie
aprox.
1451 m
Mega Image (en)
aprox.
221 m
ClicMarket
aprox.
514 m
Mega Image
aprox.
537 m
Shop & Go
aprox.
653 m
Succes
aprox.
666 m
Giulio Pantofi la comanda
aprox.
669 m
Mega Image
aprox.
695 m
MGV Supermarket Zeno
aprox.
697 m
Carrefour Express
aprox.
713 m
Carrefour Unirii Non-Stop
aprox.
760 m
Carrefour Unirii
aprox.
768 m
dm
aprox.
789 m
Km 0
aprox.
801 m
Mega Image
aprox.
871 m
BILLA - Cocor
aprox.
887 m
Bucharest, Calea Vitan nr. 8, Bl V51, near VITAN Mall
aprox.
1649 m
Parcare
aprox.
193 m
Parcare
aprox.
317 m
Parcare
aprox.
330 m
Parcare
aprox.
359 m
Parcare privata
aprox.
366 m
Parcare
aprox.
411 m
Parcare
aprox.
524 m
Parcare
aprox.
607 m
Parcare
aprox.
625 m
Parcare
aprox.
639 m
Parcare
aprox.
651 m
Parcare
aprox.
655 m
Parcare
aprox.
691 m
Parcare
aprox.
713 m
Parcare
aprox.
722 m
Parc
aprox.
159 m
Parc
aprox.
267 m
Piata Bibescu
aprox.
384 m
Parc
aprox.
396 m
Parc
aprox.
417 m
Parcul Unirii
aprox.
429 m
Parc
aprox.
429 m
Dealul Mitropoliei
aprox.
446 m
Parc
aprox.
463 m
Parc
aprox.
478 m
Parc
aprox.
492 m
Parc
aprox.
550 m
Piata Unirii
aprox.
553 m
Parc
aprox.
580 m
Parcul Unirii
aprox.
618 m
Piata Bibescu
aprox.
384 m
Piata Bucur
aprox.
416 m
Piața Sfântul Anton
aprox.
840 m
Piata Timpului
aprox.
936 m
Piata Natiunilor Unite
aprox.
974 m
Piața Regina Maria
aprox.
984 m
Piața Constituției
aprox.
1035 m
Piata Roma
aprox.
1041 m
Piața Drapelului (Tricolorului)
aprox.
1458 m
Piata Universitatii
aprox.
1518 m
Piata Rosetti
aprox.
1571 m
P-ta Chirigiu
aprox.
1708 m
Piata Revolutiei
aprox.
1905 m
Piata Latina
aprox.
1966 m
Teren sportiv
aprox.
1054 m
Teren sportiv
aprox.
1065 m
Teren sportiv
aprox.
1071 m
Teren sportiv
aprox.
1095 m
Teren sportiv
aprox.
1153 m
Teren sportiv
aprox.
1227 m
Teren sportiv
aprox.
1280 m
Teren sportiv
aprox.
1329 m
Teren sportiv
aprox.
1340 m
Teren sportiv
aprox.
1396 m
Teren sportiv
aprox.
1432 m
Teren sportiv
aprox.
1464 m
Teren sportiv
aprox.
1624 m
Skate Park Tineretului
aprox.
1640 m
Teren sportiv
aprox.
1704 m
Farmacia 20
aprox.
86 m
Alma Farm Com 95
aprox.
164 m
Tinos-Farm
aprox.
474 m
Homeofarm
aprox.
557 m
Farmacia Belladonna 54
aprox.
656 m
Farmacia Farmadex
aprox.
712 m
Farmacia 48
aprox.
714 m
Pharma Vic
aprox.
763 m
Farmacia Dona 19
aprox.
815 m
Farmacia Dona
aprox.
881 m
Farmacia Belladonna 17
aprox.
901 m
Help Net Farma
aprox.
914 m
Sensiblu
aprox.
935 m
Catena
aprox.
965 m
Farmacia Eliana
aprox.
1058 m
Clinica Audionova
aprox.
177 m
Medlife Unirii
aprox.
233 m
Medicover (en)
aprox.
258 m
Clinica Polisano
aprox.
291 m
Europe EYE Hospital (en)
aprox.
352 m
Europe Eye
aprox.
352 m
Maternitatea Bucur
aprox.
448 m
Oftapro
aprox.
588 m
Biostom Bucuresti
aprox.
872 m
Clinica de Stomatologie
aprox.
1002 m
Spectrum Clinique - Clinica de Oftalmologie
aprox.
1010 m
Centru medical MEDSANA
aprox.
1015 m
Spitalul de dermato-venerologie "Prof. Dr. Scarlat Longhin" (ABANDONAT)
aprox.
1017 m
Institutul National de Recuperare
aprox.
1025 m
Spitalul Clinic Prof. Dr. Doc Ovidiu Marina
aprox.
1033 m
The Temple
aprox.
185 m
The Harp
aprox.
365 m
Pizzeria Classic
aprox.
599 m
Club Fabrica
aprox.
656 m
Long Fong
aprox.
679 m
Carol Cafe
aprox.
687 m
The Bankers
aprox.
879 m
Goblin Club
aprox.
904 m
Atelierul Mecanic
aprox.
907 m
The Vintage Pub
aprox.
911 m
O`Hara Irish Pub
aprox.
913 m
Curtea Berarilor
aprox.
918 m
Oktoberfest
aprox.
920 m
Queen and Clown Pub
aprox.
926 m
100 de beri
aprox.
932 m
Cafe Torino
aprox.
224 m
Angel Cafe
aprox.
504 m
Dalidana
aprox.
542 m
Cofetaria Raisa
aprox.
576 m
Bistro 33 Cafe
aprox.
650 m
Starbucks
aprox.
786 m
The Urbanist
aprox.
809 m
Testa Rossa Caffebar
aprox.
840 m
Double Deuce's
aprox.
868 m
Cafe Boulevard
aprox.
886 m
Gelato Mio
aprox.
888 m
Buen Humor
aprox.
894 m
Unique
aprox.
900 m
La Folie
aprox.
900 m
Crepes & Gelato artigianale
aprox.
905 m
Restaurant
aprox.
238 m
Zen Sushi
aprox.
244 m
Il Giardino Segreto
aprox.
319 m
Hotel Horoscop ***
aprox.
329 m
Garibaldi Trattoria & Pub
aprox.
334 m
Restaurantul Horoscop
aprox.
341 m
Restaurant PPH
aprox.
375 m
Thang Long
aprox.
405 m
The Vine Club & Bistro
aprox.
541 m
La Fantani
aprox.
563 m
Fabrica De Mancare
aprox.
589 m
eggsmania
aprox.
596 m
Pizzerie si Restaurant Classic
aprox.
600 m
Restaurant Classic
aprox.
609 m
DRISTOR Doner Kebap (Budapesta)
aprox.
626 m
Nargila Grill&Bar
aprox.
362 m
Pe baricade
aprox.
473 m
Bar
aprox.
701 m
Network Lounge
aprox.
841 m
B Bar
aprox.
844 m
True Social Club
aprox.
854 m
Big Mamou
aprox.
861 m
Vecchio
aprox.
884 m
Pure
aprox.
890 m
City Grill Covaci
aprox.
896 m
The Glam Club
aprox.
912 m
Zapata Tequilla Bar
aprox.
913 m
Bound Club
aprox.
916 m
Up Club
aprox.
919 m
Himera
aprox.
921 m
Raiffeisen
aprox.
213 m
Banca Raiffeisen
aprox.
230 m
Raiffeisen Bank
aprox.
230 m
Banca Italo Romena
aprox.
374 m
BCR
aprox.
508 m
Intesa
aprox.
519 m
Raiffeisen Bank
aprox.
562 m
Piraeus Bank Romania - Agentia Unirea Splai
aprox.
570 m
Bank Leumi
aprox.
572 m
UniCredit Bank - Ag. Unirii
aprox.
575 m
Volksbank (en)
aprox.
585 m
Banca Transilvania - Ag. Centrul Civic
aprox.
602 m
BCR
aprox.
659 m
BCR
aprox.
675 m
Banca Romaneasca
aprox.
715 m
Dacă te vei muta în zona Parcul Carol-Eroii Revoluției, vei avea la dispoziție mai multe mijloace de transport în comun. Important este să știi că acestea circulă doar pe unele dintre cele mai mari străzi și bulevarde, motiv pentru care este posibil să fie necesar să te deplasezi pe jos mai mult până la stațiile lor. Amintim astfel tramvaiul 25 pe care îl poți lua pentru a ajunge în cartierul Militari, tramvaiul 7 care te va ajuta să ajungi la Piața Unirii și stația de metrou Eroii Revoluției, aflată vis-a-vis de Cimitirul Bellu. Aceasta din urmă se află pe Magistrala 2 și oferă o conexiune rapidă atât cu centrul orașului (vei ajunge în circa 5 minute la Piața Unirii), cât și cu un pol principal de business din Capitală - Pipera și cu zona Berceni. În vecinătate vei avea și stația de metrou Tineretului. Consultă harta pentru a afla unde găsești stațiile mijloacelor de transport în comun din zonă.
În această zonă se află una dintre cele mai prestigioase unități de învățământ din Capitală, respectiv Colegiul Național "Gheorghe Șincai". Pe Șoseaua Viilor se află și Colegiul Economic Viilor care oferă pregătire cu profil economic, de comerț sau pentru domeniul turism și alimentație. Găsești pe hartă și alte instituții de învățământ aflate în zona Parcul Carol - Eroii Revoluției și în vecinătatea sa.
În zona Parcul Carol - Eroii Revoluției nu se găsesc hipermarketuri, dar dacă te vei muta aici vei avea în apropiere centrul comercial Unirea Shopping Center. Pe Calea Șerban Vodă ai câteva magazine mai mici, iar în zona Colegiului Național Gheorghe Șincai găsești un Mega Image și un Carrefour Market. În proximitate se află și Piața Norilor. Altă variantă ar putea fi complexul comercial Vulcan Value Center, care este localizat pe Strada Progresului și include numeroși retaileri, de la Jysk și Animax, la Pepco, dm sau H&M. Tot aici găsești și un hipermarket Carrefour și un magazin Kaufland. La doi pași de acesta se află mall-ul Liberty Center, dar și un magazin Lidl. Cu mașina ajungi destul de repede și la mall-ul Sun Plaza din Berceni și la Piața Sudului, recent modernizată și inaugurată chiar în 2020. Consultă harta pentru a afla care va fi cel mai apropiat magazin de viitoarea ta locuință.
Dacă preferi să te deplasezi prin oraș cu propria mașină, atunci trebuie să știi că la orele de vârf în intersecția din zona stației de metrou Eroii Revoluției traficul este de multe ori îngreunat. Îți recomandăm, totodată, să nu treci cu vederea posibilitatea închirierii unui loc de parcare. Pentru a face acest lucru va trebui să te adresezi Direcției Mobilitate Urbană Sector 4 sau Serviciului Parcaje Scop Reședință Sector 5, în funcție de localizarea noii tale locuințe. Consultă harta pentru a vedea poziționarea principalelor parcări din zonă din din împrejurimi.
Dacă ai o viață activă, îți place să faci jogging dimineața înainte să pleci la birou, să mergi pe role sau să îți ocupi sfârșitul de săptămână cu plimbări lungi în natură, atunci această zonă ar putea fi ideală pentru tine, având în vedere faptul că cea mai mare parte a sa este ocupată de Parcul Carol, iar vis-a-vis se află Parcul Tineretului. Îți place să asculți muzică live? Dacă te muți aici, vei avea la doi pași de casă complexul Arenele Romane unde se organizează periodic concerte și diverse evenimente. Chiar în Parcul Carol găsești și Muzeul Tehnic "Profesor Inginer Dimitrie Leonida", ideal pentru o vizită educativă alături de cei mici. Apropierea de Piața Unirii și de Centrul Vechi al orașului oferă numeroase alte oportunități de recreere. Găsești pe hartă mai multe puncte de interes pentru petrecerea timpului liber.
În zonă se află câteva clinici private, dar și Institutul Național de Pneumoftiziologie "Marius Nasta", acesta din urmă fiind amplasat în imediata apropiere a Pieței Eroii Revoluției. Pe Calea Șerban Vodă se află Policlinica cu Plată nr. 3. Vezi pe hartă unde sunt localizate clinicile private și din zona Parcul Carol-Eroii Revoluției.
În jurul Parcului Carol găsești mai multe restaurante și cafenele. Printre ele se numără Expirat Halele Carol - care funcționează ca bar, club, sală de concerte și terasă și poate fi găsit vis-a-vis de Autogara Filaret, și restaurantul Dineș la care ajungi practic direct din parc. Alte localuri cu terase pot fi găsite în imediata apropiere a Fântânii Zodiac aflată în Piața Libertății, chiar la intrarea în parc. Fabrica Club, un pub care dispune și de terasă și funcționează și ca un club, poate fi găsit și el la doi pași de Parcul Carol. Amplasarea privilegiată a zonei te ajută să ajungi foarte repede în Centrul Vechi al orașului, unde găsești numeroase alte restaurante, potrivite pentru toate gusturile. Consultă harta și află care este cel mai apropiat restaurant unde vei putea să iei masa în oraș, dacă te muți în zona Parcul Carol-Eroii Revoluției.
Găsești sucursale BRD și ING Bank în apropiere de stația de metrou Tineretului, și o serie de bancomate în Piața Unirii. Consultă harta și află unde sunt localizate și alte bănci și ATM-uri.
Înainte să pleci...
Ești sigur că ai văzut și aceste proprietăți?
1.500 € / lună
București, P-ța Unirii
4 camere
182 mp
200 mp teren
1.950 € / lună
București, Central
9 camere
230 mp
300 mp teren
1.250 € + TVA / lună
București, Timpuri Noi
1 camere
153 mp
1.000 mp teren
1.500 € / lună
București, Timpuri Noi
2 camere
100 mp
120 mp teren
1.500 € / lună
București, Eroii Revoluției
5 camere
150 mp
114 mp teren
1.300 € / lună
București, Moșilor
7 camere
170 mp
300 mp teren
Creează alertă
Salvează căutarea ca să primești pe email ultimele anunțuri publicate
Case individuale cu 4+ camere de închiriat în zona Șerban Vodă, Sector 4
Cere detalii prin email
*
*
*
*
Detaliile tale de contact vor fi partajate cu A&a Imo Locatii