Casă cu etaj de inchiriat zona Lipovei – locuință sau spațiu pentru afaceri

2.000 € / lună

Lipovei, Timișoara

Nr. cam.:
7
Sup. utilă:
276 mp
Sup. teren:
575 mp
Tip prop.:
Individuală
  • • Locație exactă
  • • Vizionare prin apel video

Descriere casă

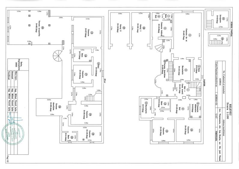
Casă de inchiriat – zonă Lipovei, Timișoara Se oferă spre vânzare o proprietate spațioasă și versatilă, situată într-o zonă excelentă din Lipovei, cu suprafața utilă de 276 mp și teren aferent de 575 mp. Imobilul este dispus pe parter + etaj, putând fi utilizat atât ca locuință, cât și în scop comercial sau mixt. Compartimentare: 7 camere luminoase și generoase 5 băi complet utilate 2 bucătării 3 terase ideale pentru relaxare 2 garaje închise cameră tehnică Proprietatea dispune de toate utilitățile și oferă multiple posibilități de amenajare, fiind potrivită pentru familie, birouri, clinici, sediu de firmă sau alte activități comerciale. Locația este foarte bună, aproape de mijloace de transport, centre comerciale și puncte de interes din zonă.
Citește mai mult Citește mai puțin
Nemobilat Curte Aer condiționat Calorifere Centrală proprie Beci 5 Parcări 2 Garaje

Detalii casă

ID anunț: X1BR110V0 Copiat! 274535544 Copiat!
Actualizat în: 12 Februarie 2026
Suprafață desfășurată: 437 mp
Nr. bucătării: 2
Nr. băi: 5
Nr. terase: 3
Învelitoare acoperiș: Țiglă
An construcție: 1995 (Finalizată)
Structură rezistență: Cărămidă
Regim înălțime: S+P+1E

Utilități

Pereți
Faianță Vopsea lavabilă
Podele
Gresie Parchet
Ușă intrare
Lemn
Uși interior
Lemn
Ferestre cu geam termopan
Lemn PVC
Contorizare
Apometre Contor gaz
Bucătărie
Parțial mobilată
Electrocasnice
Aragaz Hotă
Diverse
Scară interioară Telecomandă poartă acces auto
Alte spații utile
WC Serviciu
Facilități imobil
Acoperiș
Utilități
Curent Apă Canalizare CATV Gaze Telefon
Internet
Cablu
Amenajare străzi
Iluminat stradal Mijloace de transport în comun Asfaltate

Vecinătăți:

Open Ville, Iulius Mall, Pizzeria Thalia, Piata Noua, Gradinita Gimini, Centrul Comercial Kappa, Restaurant Caprice, Gradinita Buburuza Vesela

Disponibilitate proprietate:

Imediat

Puncte de interes

Mijloace transport
bus-station
Holdelor
Stații autobuz aprox. 260 m
train-station
Gara de Est
Stații tren aprox. 807 m
trolleybus-station
Statie Ion Ionescu de la Brad T14
Stații troleibuz aprox. 854 m
tram-station
Statie Arena Electrica retur Tv1, Tv2
Stații tramvai aprox. 950 m
Școală
kindergarten
Gradinita particulara Children Care Center
Gradinițe aprox. 423 m
kindergarten
Gradinita Program Normal Nr. 3
Gradinițe aprox. 427 m
school
Scoala Generala Nr. 7 "Sfanta Maria"
Școli aprox. 718 m
university
Facultatea de Arte Plastice
Universități aprox. 1768 m
Recreere
supermarket
Minimarket Noroc
Supermarket aprox. 119 m
park
Parc
Parcuri aprox. 383 m
sports-ground
Teren sportiv
Terenuri sport aprox. 684 m
mall
Kappa Centrul Comercial
Mall aprox. 841 m

Proprietăți similare

Casă individuală cu 5 camere în Elisabetin
1.900 € / lună
Timișoara, Elisabetin
5 camere
252 mp
382 mp teren
Casă individuală cu 6 camere în Dumbrăvița
1.800 € / lună
Județul Timiș, Dumbrăvița
6 camere
260 mp
930 mp teren
Casă individuală cu 9 camere în Blașcovici
1.900 € / lună
Timișoara, Blașcovici
9 camere
300 mp
300 mp teren

Detalii de contact

Abonează-te la newsletter să fii primul care primește cele mai noi recomandări de proprietăți și sfaturi de la experți.

Feedback apel

CONTACT

Creează alertă

Salvează căutarea ca să primești pe email ultimele anunțuri publicate

Case individuale cu 4+ camere de închiriat în zona Lipovei, Timișoara