Rosetti!,Imobilul este compus din doua corpuri separate, un subsol generos si doua curti libere (150mp si 30mp), oferind multiple posibilitati de configurare pentru a se potrivi exact nevoilor afacerii dumneavoastra:
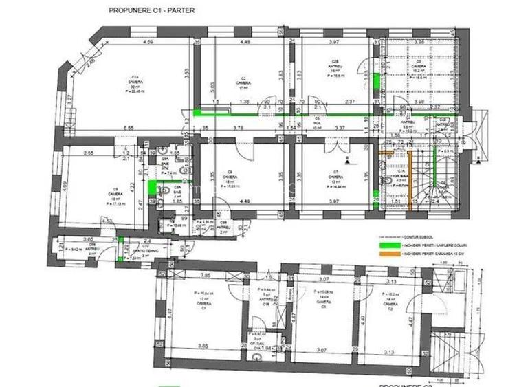
Plan parter:
Corp A – 215mp, cu 7 camere ideale pentru restaurant, cabinete medicale, camere sau birouri. Include un spatiu comercial cu acces la subsol si grup sanitar.
Corp B – 73mp, cu 3 camere pentru cabinete medicale, birouri sau bucataire..
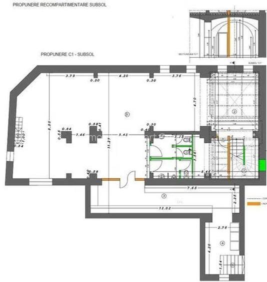
Plan subsol:
Corp A-197mp, un spatiu impresionant cu 4 cai de evacuare, pereti din caramida aparenta, arcade si bolte, perfect pentru evenimente, sali de sport sau alte activitati. In perioada interbelica, acest spatiu a fost utilizat ca crama, adaugand un plus de caracter si istorie.
Plan Pod Mansardabil:
215mp open space - se vor instala ferestre de mansarda tip velux si se pot amenaja birouri, spatii locative pentru muncitori extracomunitari, spatiu multifunctional
Chiria afisata se negociaza in functie de nivelul de amenajarea dorit si investitia pe care dumneavoastra o faceti in amenajare, asigurandu-ne ca obtineti cel mai bun aranjament pentru afacerea dumneavoastra.
Fatada va fi refacuta in cursul anului 2025.
Sediul central - Timișoara
Bulevardul Victor Babeș nr. 2, 300230, Timișoara, România
Tel: +40.374.40.44.98 / Fax: +40.256.401.179
Email: suport@imobiliare.ro
Luni - Vineri 08:00 - 20:00
Punct de lucru - București: Iride Business Park, Bld. Dimitrie
Pompeiu 9-9A, Clădirea B2B,
020335, Sector 2, București, România
CONTACT
Sediul central - Timișoara
Bulevardul Victor Babeș nr. 2, 300230, Timișoara, România
Tel: +40.374.40.44.98 / Fax: +40.256.401.179
Email: suport@imobiliare.ro
Luni - Vineri 08:00 - 20:00
Punct de lucru - București: Iride Business Park, Bld. Dimitrie
Pompeiu 9-9A, Clădirea B2B,
020335, Sector 2, București, România
Statia Piata Rosetti linii : 61,66,69,70,85,90,91,92,336,601.
aprox.
443 m
Piata Unirii
aprox.
567 m
Statia Piata Universitatii linii : 122,137,138,268,381,783.
aprox.
630 m
Statie RATB Piata Universitatii a
aprox.
650 m
Batistei
aprox.
723 m
Bulevardul Carol I
aprox.
727 m
Statie RATB
aprox.
770 m
Statia Batistei; Linia:N123
aprox.
778 m
Batistei
aprox.
789 m
Statia Nicolae Balcescu; Liniile:168, 300, 368, 226, 126
aprox.
934 m
Capat Piata Unirii 2 linii : 783 (express).
aprox.
964 m
Statia Metrou Piata Universitatii(M2)Metrorex
aprox.
523 m
Universitate (M2)
aprox.
526 m
Statia Metrou Piata Universitatii(M2)Metrorex
aprox.
572 m
Metrorex. Stația Piața Unirii 2 (M2) (en)
aprox.
639 m
Metrorex. Stația Universitate (M2)(1987)
aprox.
642 m
Piata Unirii 2
aprox.
708 m
Metrorex. Stația Piața Unirii 2 (M2)(1986)
aprox.
723 m
Piata Unirii 1
aprox.
825 m
Metrorex. Stația Piața Unirii 1 (M1) (en)
aprox.
835 m
Metrorex. Stația Piața Unirii 1 (M1),(M3)(1979)
aprox.
850 m
Izvor
aprox.
1465 m
Metrorex. Statia Izvor (M1) , (M3).
aprox.
1465 m
Metrorex. Stația Izvor (M1),(M3)(1979)
aprox.
1504 m
Metrorex. Statia Izvor (M1) , (M3).
aprox.
1529 m
Statia Metrou Piata Romana(M2)Metrorex
aprox.
1542 m
Statia Foisorul de Foc linii : 79,86
aprox.
1265 m
Statia Calea Dorobantilor; Liniile:79, 86,
aprox.
1721 m
Statia Piata Romana linii : 79,86
aprox.
1769 m
Statia Vasile Parvan 66,70,92
aprox.
1965 m
Scoala Superioara Comerciala Nicolae Kretzulescu
aprox.
69 m
Centrul Educational IBSEN
aprox.
163 m
Grupul Scolar Industrial Unirea (en)
aprox.
211 m
Grupul Scolar Industrial Unirea
aprox.
211 m
Lauder Reut School Complex (en)
aprox.
432 m
Liceul Lauder-Reut
aprox.
436 m
Scoala cu clasele I-VIII, Nr. 73 Barbu Stefanescu Delavrancea
aprox.
451 m
GRADINITA DE COPII NR. 8 "LICURICI"
aprox.
512 m
Scoala Generala "Iovan Ducici", Nr 71
aprox.
518 m
Goethe Institut (en)
aprox.
522 m
Grup Școlar "Dragomir Hurmuzescu"
aprox.
522 m
Colegiul National "Matei Basarab"
aprox.
552 m
Colegiul Economic Hermes
aprox.
553 m
Amfiteatrul Sahia
aprox.
582 m
institutul Irecson
aprox.
624 m
Facultatea de Chimie
aprox.
591 m
Institutul Bancar Român
aprox.
645 m
Facultatea de litere (en)
aprox.
651 m
Facultatea de Limbi si Literaturi Straine
aprox.
667 m
Facultatea de Istorie
aprox.
672 m
Facultatea de Stiinte
aprox.
707 m
UAUIM -Universitatea de Arhitectura si Urbanism Ion Mincu
aprox.
710 m
Facultatea de Matematica-Informatica
aprox.
736 m
Facultatea de Farmacie
aprox.
742 m
Facultatea de Farmacie/Pharmacy Faculty
aprox.
748 m
Facultatea de Stiinte Politice
aprox.
802 m
Universitatea din Bucuresti - Facultatea de Stiinte Politice
aprox.
808 m
Facultatea de Teologie Ortodoxa
aprox.
1073 m
Academia de Studii Economice
aprox.
1113 m
Rectoratul UMF "Carol Davila"
aprox.
1115 m
Gradinita nr.4 "Lizuca"
aprox.
638 m
Gradinita Magica
aprox.
928 m
Gradinita nr.203 (fosta Clementa)
aprox.
962 m
Gradinita nr. 203 program prelungit
aprox.
989 m
Gradinita numarul 257
aprox.
1102 m
Cresa Micii Poznasi
aprox.
1130 m
Gradinita Prikindel
aprox.
1144 m
Gradinita
aprox.
1149 m
Gradinita Barba Cot
aprox.
1190 m
Gradinita nr.192, "Pisicile Aristocrate"
aprox.
1287 m
Gradinita nr. 192 (Pisicile aristocrate)
aprox.
1301 m
Gradinita Waldorf
aprox.
1351 m
Gradinita numarul 8
aprox.
1360 m
Gradinita numarul 133
aprox.
1374 m
Gradinita Ioanid
aprox.
1403 m
Mega Image Paleologu
aprox.
396 m
Cocor
aprox.
466 m
BILLA - Cocor
aprox.
469 m
Km 0
aprox.
513 m
Carrefour Unirii
aprox.
545 m
Carrefour Unirii Non-Stop
aprox.
553 m
Mega Image
aprox.
641 m
dm
aprox.
702 m
Pravalia Maestrului
aprox.
765 m
Mag.Victoria
aprox.
901 m
Magazin Mixt
aprox.
930 m
Mega Image - Hala Traian
aprox.
966 m
OK Non-stop Supermarket (en)
aprox.
982 m
OK Non-Stop
aprox.
982 m
Supermarket
aprox.
1003 m
Bucharest, Calea Vitan nr. 8, Bl V51, near VITAN Mall
aprox.
1738 m
Parcare
aprox.
269 m
Parcare cu plata
aprox.
296 m
Parcare
aprox.
306 m
Parcare
aprox.
308 m
Parcare privata
aprox.
338 m
Parcare cu plata
aprox.
339 m
Parcare
aprox.
340 m
Parcare
aprox.
350 m
Parcare
aprox.
356 m
Parcare
aprox.
359 m
Parcare
aprox.
381 m
Parcare
aprox.
388 m
Parcare
aprox.
388 m
Parcare
aprox.
389 m
Parcare
aprox.
390 m
Parc
aprox.
220 m
Parc
aprox.
224 m
Parc
aprox.
231 m
Parc
aprox.
266 m
Sfantul Gheorghe
aprox.
307 m
Parcul Sf. Gheorghe
aprox.
310 m
Spatiu verde
aprox.
357 m
Parc
aprox.
379 m
Parc
aprox.
394 m
Parc
aprox.
408 m
Parc
aprox.
411 m
Parc
aprox.
426 m
Parc
aprox.
429 m
Parcul Colțea
aprox.
452 m
Parc
aprox.
498 m
Piata Rosetti
aprox.
347 m
Piata Roma
aprox.
457 m
Piata Timpului
aprox.
457 m
Piata Universitatii
aprox.
546 m
Piața Sfântul Anton
aprox.
606 m
Piata Latina
aprox.
688 m
Piața Drapelului (Tricolorului)
aprox.
863 m
Piata Bibescu
aprox.
1050 m
Piata Natiunilor Unite
aprox.
1051 m
Piata Revolutiei
aprox.
1069 m
Piata Bucur
aprox.
1336 m
Piața Constituției
aprox.
1500 m
Piața Romană
aprox.
1776 m
Piața Regina Maria
aprox.
1956 m
Teren sportiv
aprox.
409 m
Teren sportiv
aprox.
583 m
Teren sportiv
aprox.
1396 m
Teren sportiv
aprox.
1584 m
Teren sportiv
aprox.
1807 m
Teren sportiv
aprox.
1923 m
Teren sportiv
aprox.
1956 m
Teren sportiv
aprox.
1962 m
Teren sportiv
aprox.
1992 m
WORLD CLINIC - O viata fara alergii ! (en)
aprox.
115 m
Art Implant
aprox.
233 m
MediDent
aprox.
256 m
Medident Dental X-ray
aprox.
258 m
Cabinet stomatologic (en)
aprox.
349 m
Spitalul Colțea
aprox.
385 m
Clinica de Stomatologie
aprox.
550 m
ProctoMed
aprox.
588 m
Centru medical MEDSANA
aprox.
631 m
INGG Ana Aslan Spatarului nr. 15 (en)
aprox.
671 m
Spectrum Clinique - Clinica de Oftalmologie
aprox.
699 m
Spitalul Prof. Dr. C-Tin Angelescu
aprox.
709 m
Spitalul Prof. Dr. C. Angelescu
aprox.
710 m
Centrul Medical Batistei
aprox.
719 m
Policlinica (en)
aprox.
756 m
Farmacia 2NA
aprox.
159 m
Farmacon CO Impex
aprox.
272 m
Simidon
aprox.
275 m
General Smart Farm
aprox.
362 m
Sensiblu
aprox.
386 m
HelpNet
aprox.
392 m
Reteta
aprox.
412 m
Farmacia Dona
aprox.
435 m
Sensiblu
aprox.
457 m
Farmacia Coltea
aprox.
469 m
Farmacia Dona 19
aprox.
546 m
Farmacia Tarsis Impex
aprox.
673 m
Centro Farm
aprox.
696 m
Farmacia Artafarm
aprox.
697 m
Plafar
aprox.
698 m
Restaurant Golden Falcon
aprox.
67 m
Golden Falcon
aprox.
81 m
Crama Culmea Veche (nr.2)
aprox.
151 m
Rossetya
aprox.
257 m
Restaurant Dumbrava
aprox.
261 m
Rossetya
aprox.
262 m
Restaurant "Eden" (en)
aprox.
269 m
Mandala Club (en)
aprox.
270 m
Corner
aprox.
276 m
Restaurant Angelique - .arestaurant.ro
aprox.
299 m
Aria Burger
aprox.
310 m
Cantina Arhitecturii
aprox.
312 m
Taie Crapu' - Bar (en)
aprox.
315 m
Simbio
aprox.
327 m
fast food Non-Stop
aprox.
356 m
Club Surubelnita
aprox.
147 m
Manasia Hub
aprox.
234 m
La Scena
aprox.
306 m
Kulturhaus
aprox.
391 m
Pebeo
aprox.
506 m
Clock`s
aprox.
508 m
Hanul cu Tei
aprox.
508 m
Mojo
aprox.
525 m
Elephant Pub
aprox.
532 m
Argentin
aprox.
534 m
Club A
aprox.
535 m
Offside Pub
aprox.
539 m
Half Time
aprox.
541 m
Have a Cigar
aprox.
544 m
Dharma
aprox.
545 m
Macaz Bar Teatru Coop
aprox.
168 m
Epic
aprox.
211 m
Underworld
aprox.
223 m
Dianei Patru
aprox.
447 m
Galliano Club
aprox.
457 m
BarFly
aprox.
492 m
Harley
aprox.
508 m
Chat noir
aprox.
513 m
Sankt Petersburg Pub
aprox.
517 m
The Elbow Room
aprox.
520 m
Roter Heller
aprox.
530 m
City Grill Covaci
aprox.
565 m
Geo Bar
aprox.
577 m
Vecchio
aprox.
578 m
Expat
aprox.
584 m
Art Caffe
aprox.
235 m
The Living Room
aprox.
266 m
ART Cafe
aprox.
338 m
Hobby Cafe
aprox.
431 m
T-zero
aprox.
436 m
T-zone
aprox.
436 m
Tucano Cofee
aprox.
456 m
Iguana Cafe
aprox.
457 m
DDB caffe
aprox.
480 m
Lente Arcului
aprox.
518 m
Godot
aprox.
527 m
Bernschutz and Co
aprox.
528 m
Gio Cafe
aprox.
550 m
Carla Caffe
aprox.
583 m
La Muse
aprox.
599 m
Banca Transilvania - Ag. Lipscani
aprox.
311 m
Banca Transilvania
aprox.
315 m
Unicredit Èširiac Bank
aprox.
315 m
Alpha Bank
aprox.
317 m
Banca Romaneasca
aprox.
327 m
BRD Rosetti
aprox.
327 m
Raiffeisen Bank
aprox.
358 m
BCR
aprox.
358 m
Banca Romaneasca
aprox.
361 m
Volksbank Coltei
aprox.
361 m
Bancpost
aprox.
364 m
Piraeus Bank Romania - Sucursala Municipiului Bucuresti
aprox.
376 m
Garanti Bank
aprox.
378 m
ATM - Raiffeisen Bank - Asirom
aprox.
379 m
BCR
aprox.
384 m
Fiind o zonă ultracentrală, aceasta oferă numeroase opțiuni de călătorie cu mijloacele de transport în comun, și este bine conectată cu restul orașului. Ai, în primul rând, la dispoziție stațiile de metrou Piața Victoriei, Piața Romană și Universitate. Astfel, te vei putea deplasa rapid prin oraș, evitând aglomerația de la suprafață. Toate acestea sunt situate pe magistrala 2 care traversează Bucureștiul de la nord la sud. În plus, de la Piața Victoriei vei putea lua metroul și pe magistrala 1 pentru a ajunge, de exemplu, în cartierul Pantelimon sau în zona Eroilor. Prin Piața Universității urmează să treacă și magistrala 5 care va lega cartierele Drumul Taberei și Pantelimon. Până acum, s-au deschis însă doar stațiile de metrou aflate în zona Drumul Taberei. Alte mijloace de transport în comun care ar putea să-ți fie de ajutor atunci când te vei muta în această zonă sunt autobuzele 300 și 381. Primul face legătura dintre Piața Romană și Piața Victoriei continuându-și apoi traseul de-a lungul Bulevardului Ion Mihalache, iar cel de-al doilea conectează Piața Victoriei cu zona Tineretului și cu cartierul Berceni. De pe Bulevardul Regina Elisabeta vei putea lua troleibuzul 90 pentru a ajunge în Drumul Taberei sau în zona Arenei Naționale, iar în fața Spitalului Colțea vei găsi stația autobuzului 381 care merge în cartierul Berceni. Iar dacă preferi să te deplasezi pe două roți, vei avea la dispoziție una dintre pistele speciale destinate bicicliștilor pe Calea Victoriei. Aceasta îți va oferi, în plus, oportunitatea ideală de a admira arhitectura deosebită a clădirilor aflate de o parte și de alta a uneia dintre cele mai frumoase străzi din București. Consultă harta pentru a afla unde sunt localizate stațiile mijloacelor de transport în comun.
În această zonă găsim sediul central al Universității din București și cel al Academiei de Studii Economice din București (ASE), unele dintre cele mai prestigioase instituții de învățământ superior din România. Tot aici se află și sediile mai multor facultăți. Ai și alte instituții de învățământ cu renume la doi pași de casă, precum precum Colegiul Național "Sfântul Sava", Colegiul Național "Gheorghe Lazăr", Liceul Teoretic Bulgar "Hristo Botev" și Universitatea Națională de Muzică. De menționat este și Căminul Moxa, aflat în zona Calea Victoriei, în care sunt cazați unii dintre studenții ASE. Consultă harta de mai jos pentru a vedea și celelalte unități de învățământ din zonă.
În această parte a orașului vei găsi numeroase reprezentanțe ale unor branduri de lux. Cele mai multe magazine alimentare din zonă au dimensiuni reduse. Pentru cumpărături îți recomandăm Piața Amzei, aflată la doi pași de Romană și modernizată recent. Aici găsești, pe lângă comercianți de unde poți cumpăra legume și fructe și câteva magazine cu preparate proaspete de la burgeri, la pâine artizanală sau înghețată. Centrul Vechi găzduiește, totodată, reprezentanțe ale unor retaileri de modă. Tot aici găsești și librăria Cărturești Carusel, una dintre cele mai frumoase din oraș. O librărie Cărturești deschisă într-o altă clădire deosebită poate fi găsită și în apropiere de Piața Romană. Un spațiu comercial cu renume este Magazinul Victoria, un monument istoric al orașului. Magazinul București, amplasat la intersecția străzilor I.C. Brătianu și Lipscani a fost reconstruit recent cu o investiție substanțială. Ai în apropiere magazinul Cocor, centrul comercial Unirea Shopping City și un hipermarket Carrefour. Cu mașina sau metroul poți să ajungi destul de repede la mall-ul AFI Cotroceni. Consultă harta și vezi ce magazine vei avea în apropierea noii tale case.
Aceasta este una dintre cele mai aglomerate zone din București la orele de vârf. Aici găsești însă și unele dintre puținele parcări subterane din Capitală. Chiar vis-a-vis de Universitatea București ai intrarea într-o astfel de parcare cu peste 400 de locuri. O parcare destul de încăpătoare poate fi găsită și în Piața Victoriei. Atenție, însă, această zonă se poate aglomera nu doar din cauza traficului, ci și din cauza diverselor manifestări sau proteste care se organizează, de obicei, în fața Palatului Victoria, sediul Guvernului României. Dacă te hotărăști să te muți în zonă, atunci îți recomandăm să te interesezi de posibilitatea închirierii unui loc de parcare pentru mașina ta. Poți face acest lucru apelând la Serviciul Parcaje al ADP Sector 1. Consultă harta pentru a afla unde găsești și alte parcări în zona Victoriei-Romană-Universitate.
Zona Victoriei - Romană - Universitate este un epicentru cultural al Capitalei și oferă numeroase opțiuni de petrecere a timpului liber. Aici vei găsi numeroase muzee impresionante pe care le poți vizita în timpul liber (Muzeul Național de Istorie Naturală "Grigore Antipa", Muzeul Țăranului Român, Muzeul Național George Enescu, etc), vei putea participa la evenimentele în aer liber desfășurate pe Calea Victoriei sau în Piața George Enescu sau vei putea merge la un spectacol organizat pe scena Ateneului Român sau pe cea a Teatrului Notarra. Nu rata nici o vizită la Teatrul Național "I.L. Caragiale" și la Muzeul Național de Artă al României. Observatorul Astronomic Amiral Vasile Urseanu te așteaptă cu o experiență extrem de educativă care va fi, cu siguranță, apreciată de micuțul tău. Dacă îți place să ieși la o cafea în timpul liber alături de prietenii tăi, atunci în această zonă vei putea alege dintr-o multitudine de restaurante, terase și pub-uri. Nu lipsesc nici skybar-urile, care îți oferă priveliști de excepție de la înălțime. Cele câteva parcuri din zona Victorieim - Romană - Universitate au dimensiuni destul de reduse, dar sunt frumos îngrijite. Printre acestea amintim Parcul Ateneului și Parcul Nicolae Iorga. Dacă preferi plimbările lungi în weekend, atunci vei avea la dispoziție în apropiere parcurile Kiseleff și Cișmigiu. Nu uita, de asemenea, că te vei afla la doi pași de Centrul Vechi al Capitalei, dar și că vei putea să faci o plimbare cu bicicleta pe Calea Victoriei. În condiții normale, se organizează periodic evenimente în centrul orașului, atât în cadrul Sălii Palatului, cât și în aer liber în Piața Revoluției. În Piața Universității sunt organizate, totodată, diferite târguri și concerte. Vezi pe hartă mai multe puncte de interes din zona Victoriei-Romană-Universitate.
Chiar la Piața Universității se află principala unitate sanitară din zonă. Este vorba despre Spitalul Clinic Colțea, primul înființat în București. În zona Victoriei - Romană - Universitate vei întâlni mai multe clinici private, precum Policlinica Enescu din cadrul rețelei de sănătate Regina Maria și Spitalul Clinic Sanador. La doi pași de Piața Romană se află Spitalul Clinic de Urgențe Oftalmologice, cel mai mare din România cu o astfel de specializare. Consultă harta pentru a afla ce clinici private ai în apropierea casei, dacă te muți în această parte a orașului.
Găsești numeroase restaurante, terase și cafenele potrivite pentru toate gusturile în Centrul Vechi al orașului, pe Calea Victoriei sau în zona din spatele Ateneului Român. Câteva fast food-uri ai la dispoziție în Unirea Shopping Center. Nu foarte departe, în zona Romană, ai și alte opțiuni. Află de pe hartă unde găsești cel mai apropiat restaurant de noua ta casă.
Sucursale ale diferitelor bănci sunt dispuse de-a lungul principalelor artere de circulație sau în marile intersecții din zonă. Un BRD, spre exemplu, găsești chiar lângă Cercul Militar Național. Pe Bulevardul Nicolae Bălcescu o sucursală Banca Transilvania și ING Bank. La doi pași de Piața Universității se află și Palatul Băncii Naționale a României. Consultă harta pentru mai multe detalii.
Înainte să pleci...
Ești sigur că ai văzut și aceste proprietăți?
14.900 € / lună
București, Romană
19 camere
900 mp
260 mp teren
6.000 € / lună
București, Ultracentral
10 camere
217,5 mp
284 mp teren
16.500 € / lună
București, Central
27 camere
673,9 mp
684,23 mp teren
5.800 € / lună
București, Universitate
8 camere
485 mp
157 mp teren
11.500 € / lună
București, Dacia
9 camere
550 mp
1.000 mp teren
7.000 € / lună
București, P-ța Victoriei
18 camere
466 mp
300 mp teren
Creează alertă
Salvează căutarea ca să primești pe email ultimele anunțuri publicate
Case individuale cu 4+ camere de închiriat în zona P-ța Rosetti, Ultracentral
Cere detalii prin email
*
*
*
*
Detaliile tale de contact vor fi partajate cu Imobiliar Expert Grup