12

Casa P+1 - comuna 1 Decembrie - str. Victoriei

115.000 €

1 Decembrie, Județul Ilfov

Nr. cam.:
4
Sup. utilă:
147,6 mp
Sup. teren:
354,6 mp
Tip prop.:
Individuală
  • • Comision 0%
  • • Locație exactă

Descriere casă

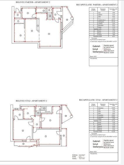
Va propunem spre achizitie / inchiriere o casa P+1 cu 4 camere, avand suprafata totala de 177,30 de metri patrati dintre care 147,60 metri patrati utili + 29,70 terasa si balcoanele. Constructia este din beton armat cu peretii interiori din caramida. Casa dispune de 354,60 metri patrati de teren. Se vinde la gri iar utilitatile: electricitate, gaze, apa, canalizare sunt la poarta. Comision 0%.
Citește mai mult Citește mai puțin

Detalii casă

ID anunț: XBDF1100R Copiat! 126033 Copiat!
Actualizat în: 23 Martie 2026
Tip tranzacție: De vânzare prin agent
Suprafață construită: 92 mp
Suprafață desfășurată: 177.3 mp
Nr. bucătării: 1
Nr. băi: 3
Nr. balcoane / Terase / Logii: 3
Nr. terase: 1
Suprafață terase: 7.8 mp
An construcție: 2008 (La gri)
Structură rezistență: Beton
Regim înălțime: P+1E
Modalitate de plată: Cash sau Credit

Utilități

Utilități
Curent Apă Canalizare CATV Gaze Telefon
Internet
Cablu
Amenajare străzi
Iluminat stradal Mijloace de transport în comun Asfaltate
Comision
0%

Disponibilitate proprietate:

Imediat

Puncte de interes

Școală
school
scoala 305 (veche)
Școli aprox. 251 m
school
scoala 305 (noua)
Școli aprox. 567 m
school
GreenCity kindergarden (en)
Școli aprox. 1202 m
Recreere
park
parcul nou 1 decembrie
Parcuri aprox. 501 m
park
Parc
Parcuri aprox. 604 m
restaurant
Renaissance Restaurant GreenCity (en)
Restaurant aprox. 973 m
supermarket
Mega Image - Green City
Supermarket aprox. 976 m

Detalii despre preț și costuri

Costuri cu achiziția

Fără credit
Credit ipotecar
Noua casă

i

Costuri adiționale mai puțin știute la achiziție: taxe notariale, comisioane etc.

Acces la informații premium după autentificare
Login Gratuit

Proprietăți similare

Casă individuală cu 3 camere în Clinceni
125.000 €
Județul Ilfov, Clinceni
3 camere
102 mp
300 mp teren
Casă individuală cu 4 camere decomandat în 1 Decembrie
110.000 €
Județul Ilfov, 1 Decembrie
4 camere
104 mp
200 mp teren
Casă individuală cu 4 camere în Berceni
120.000 €
Județul Ilfov, Berceni
4 camere
149,1 mp
640 mp teren

Detalii de contact

SMASH FREE

Alexandru Vladarau Consultant imobiliar

4.77(10 review-uri)

SMASH FREE
PRO

Abonează-te la newsletter să fii primul care primește cele mai noi recomandări de proprietăți și sfaturi de la experți.

CONTACT

Creează alertă

Salvează căutarea ca să primești pe email ultimele anunțuri publicate

Case individuale cu 4+ camere de vânzare în 1 Decembrie, Județul Ilfov