3

Casa 4 camere nou construita

180.000 €

Afumați, Județul Ilfov

Nr. cam.:
4
Sup. utilă:
110 mp
Sup. teren:
515 mp
Tip prop.:
Individuală
  • • Locație exactă

Descriere casă

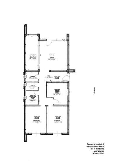
Vanzare casa individuala construita pe o strada linistita cu acces direct . Casa are acces din drumul national. In momentul de fata este in constructie si va fi terminata in primavara. Casa este compusa din 4 camere, are o suprafata de 110mp fiind irtita conform scitei. Casa se preda la alb instalatie electrica si termica montata central a termica pe gaz. Zona instita de case
Citește mai mult Citește mai puțin
Grădină Curte Curte comună Calorifere Centrală proprie 1 Parcare

Detalii casă

ID anunț: X8KF0100G Copiat! 271716143 Copiat!
Actualizat în: 16 Martie 2026
Tip tranzacție: De vânzare prin agent
Suprafață construită: 130 mp
Suprafață desfășurată: 110 mp
Nr. bucătării: 1
Nr. băi: 2
Nr. terase: 1
Nr. fronturi stradale: 1
Front stradal: 14 m
Învelitoare acoperiș: Tabla
An construcție: 2026 (În construcție)
Structură rezistență: Beton
Regim înălțime: P
Modalitate de plată: Cash sau Credit

Utilități

Destinație
Rezidențial
Ușă intrare
Metal
Izolații termice
Exterior
Ferestre cu geam termopan
PVC
Contorizare
Contor gaz Apometre
Alte spații utile
WC Serviciu
Facilități imobil
Acoperiș
Utilități
Gaze CATV Curent Canalizare Curent trifazic Apă
Internet
Cablu
Amenajare străzi
Asfaltate Mijloace de transport în comun
Comision
Standard

Certificat energetic:

Clasa energetică: A

Vecinătăți:

Supermarket
Centre comerciae si enros

Alte detalii despre preț:

5% discount 170000

Disponibilitate proprietate:

Martie 2026

Puncte de interes

Recreere
restaurant
Popas Haplea
Restaurant aprox. 235 m
supermarket
Mega Image
Supermarket aprox. 416 m
restaurant
La Doi Frati
Restaurant aprox. 649 m

Detalii despre preț și costuri

Costuri cu achiziția

Fără credit
Credit ipotecar
Noua casă

i

Costuri adiționale mai puțin știute la achiziție: taxe notariale, comisioane etc.

Acces la informații premium după autentificare
Login Gratuit

Proprietăți similare

Casă individuală cu 4 camere în Berceni
165.000 €
Județul Ilfov, Berceni
4 camere
100 mp
444 mp teren
Casă individuală cu 5 camere în Berceni
185.000 €
Județul Ilfov, Berceni
5 camere
170 mp
450 mp teren
Casă individuală cu 3 camere în Afumați
186.999 €
Județul Ilfov, Afumați
3 camere
110 mp
240 mp teren

Detalii de contact

Abonează-te la newsletter să fii primul care primește cele mai noi recomandări de proprietăți și sfaturi de la experți.

CONTACT

Creează alertă

Salvează căutarea ca să primești pe email ultimele anunțuri publicate

Case individuale cu 4+ camere de vânzare în Afumați, Județul Ilfov