Casă modernă P+1 în Micești, 4 camere, teren 386 mp, predare la cheie

239.000 €

Micești, Alba Iulia

Nr. cam.:
4
Sup. utilă:
120 mp
Sup. teren:
386 mp
Tip prop.:
Individuală
  • • Locație aproximativă

Descriere casă

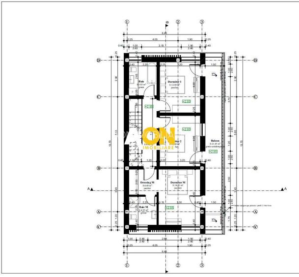
AON Imobiliare vă prezintă spre vânzare o casă unifamilială modernă, situată într-o zonă liniștită din Alba Iulia, cartierul Micești. Proprietatea este poziționată strategic la doar 200 m de drumul asfaltat, oferind acces facil și intimitate. Locuința este dispusă pe două niveluri (P+1), având o suprafață utilă de 120 mp și un teren de 386 mp. Designul contemporan, definit de fațada alb-antracit și ferestrele mari, asigură o estetică deosebită și lumină naturală pe tot parcursul zilei. Compartimentare eficientă: • Parter: Living luminos, bucătărie configurată cu insulă, baie, spațiu tehnic/depozitare și acces către terasa exterioară. • Etaj: 3 dormitoare (dormitorul matrimonial este dotat cu dressing și baie proprie), balcon și o a doua baie pe hol. Dotări și eficiență energetică: • Sistem de încălzire în pardoseală cu centrală termică pe gaz montată. • Toate utilitățile racordate: apă, gaz, curent, canalizare. • Consum redus de energie datorită izolației de calitate și a hidroizolației premium pentru acoperiș. • Infrastructură pregătită pentru montarea panourilor fotovoltaice și a sistemului de supraveghere video. • Gard perimetral din beton cu porți metalice (auto și pietonale). Exterior și finisaje: Proprietatea dispune de o terasă acoperită de 25 mp și o curte amenajată cu grădină proprie, ideală pentru momentele de relaxare. Casa se predă finisată la cheie, având instalațiile electrice și sanitare finalizate și pereții gletuiți, fiind pregătită pentru mutare. Alegeți o locuință construită cu atenție la detalii, care îmbină perfect funcționalitatea cu stilul modern. ID intern: CP2644466
Citește mai mult Citește mai puțin
Nemobilat Centrală proprie Încălzire prin pardoseală

Detalii casă

ID anunț: X5811118S Copiat! 267299172 Copiat!
Actualizat în: 06 Aprilie 2026
Tip tranzacție: De vânzare prin agent
Suprafață construită: 104 mp
Suprafață desfășurată: 193 mp
Nr. bucătării: 1
Nr. băi: 3
Nr. balcoane / Terase / Logii: 1
Nr. terase: 1
Învelitoare acoperiș: Tabla
An construcție: 2025 (Finalizată)
Structură rezistență: Cărămidă
Regim înălțime: P+1E
Modalitate de plată: Cash sau Credit

Utilități

Pereți
Faianță Vopsea lavabilă
Podele
Gresie Parchet
Izolații termice
Exterior
Ferestre cu geam termopan
PVC
Contorizare
Apometre Contor gaz
Utilități
Curent Apă Canalizare Gaze
Amenajare străzi
Mijloace de transport în comun Asfaltate
Comision
standard

Disponibilitate proprietate:

Imediat

Puncte de interes

Recreere
sports-ground
Teren Tenis
Terenuri sport aprox. 1407 m
sports-ground
Teren Tenis
Terenuri sport aprox. 1411 m
sports-ground
Teren Tenis
Terenuri sport aprox. 1434 m
supermarket
Lidl
Supermarket aprox. 1895 m

Istoricul prețurilor

Acces la informații premium după autentificare
Login Gratuit

Detalii despre preț și costuri

Costuri cu achiziția

Fără credit
Credit ipotecar
Noua casă

i

Costuri adiționale mai puțin știute la achiziție: taxe notariale, comisioane etc.

Acces la informații premium după autentificare
Login Gratuit

Proprietăți similare

Casă individuală cu 5 camere în Micești
225.000 €
Alba Iulia, Micești
5 camere
133 mp
319 mp teren
Casă individuală cu 4 camere în Micești
239.000 €
Alba Iulia, Micești
4 camere
120 mp
400 mp teren
Casă individuală cu 4 camere în Micești
240.000 €
Alba Iulia, Micești
4 camere
115 mp
630 mp teren

Detalii de contact

AON IMOBILIARE

Adrian Curta Broker Imobiliar

3.67(3 review-uri)

AON IMOBILIARE

Abonează-te la newsletter să fii primul care primește cele mai noi recomandări de proprietăți și sfaturi de la experți.

CONTACT

Creează alertă

Salvează căutarea ca să primești pe email ultimele anunțuri publicate

Case individuale cu 4+ camere de vânzare în zona Micești, Alba Iulia