2

Casă la preț de apartament zona 3 Insule

55.000 €

3 Insule, Arad

Nr. cam.:
5
Sup. utilă:
52,6 mp
Sup. teren:
188 mp
Tip prop.:
Individuală
  • • Locație aproximativă

Descriere casă

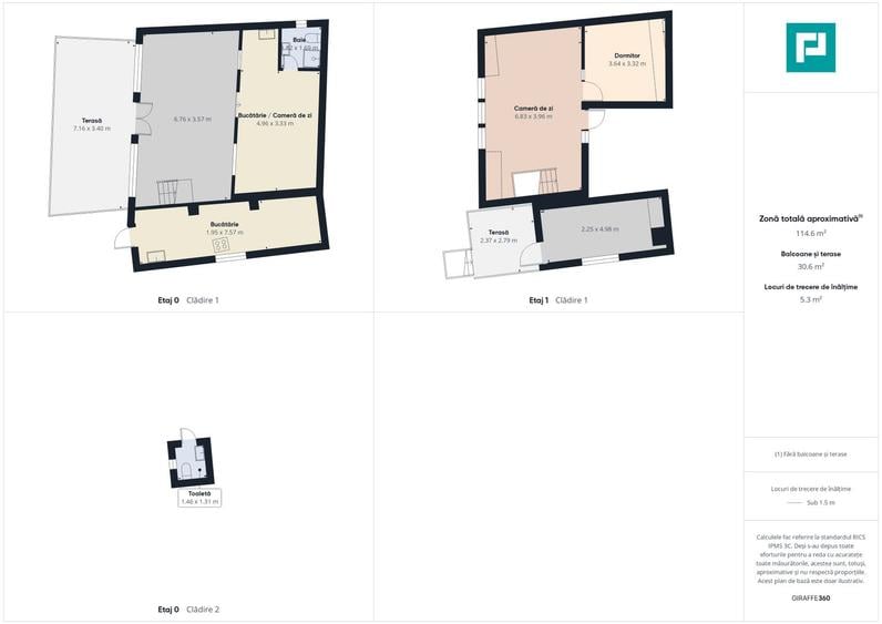
Vă propunem spre vânzare această casă din zona 3 Insule, cu cinci camere, dintre care trei dormitoare, două bucătării complet funcționale și două băi. Casa beneficiază și de o terasă mare, perfectă pentru momente de relaxare în aer liber. Imobilul este construit solid, în anul 2006, având o suprafață totală de 52.6mp și este compartimentat eficient pentru a răspunde nevoilor unei familii. Printre dotări se regăsesc: - Panou solar - Aer condiționat - Scară interioară centrală - Centrală proprie pe lemne - Curte generoasă - Magazie pentru depozitare Proprietatea este ideală atât pentru locuință permanentă, cât și pentru casă de vacanță, oferind liniște și intimitate, departe de agitația orașului. Pentru mai multe detalii și programarea unei vizionări, mă puteți contacta: Agent Imobiliar: Alexandru Ștefănescu Email: Tel: CP2974139
Citește mai mult Citește mai puțin
Mobilat Curte Aer condiționat Calorifere Centrală proprie Bine întreținut (Bună)

Detalii casă

ID anunț: X5I1111NG Copiat! 275391090 Copiat!
Actualizat în: 20 Mai 2026
Tip tranzacție: De vânzare prin agent
Suprafață construită: 26.3 mp
Nr. bucătării: 2
Nr. băi: 2
Nr. terase: 1
Învelitoare acoperiș: Tabla
An construcție: 2006 (Finalizată)
Regim înălțime: P+1E
Modalitate de plată: Cash sau Credit

Utilități

Pereți
Faianță
Podele
Gresie Parchet
Ușă intrare
PVC
Uși interior
Sticlă
Contorizare
Apometre
Electrocasnice
Aragaz Frigider
Diverse
Scară interioară
Facilități imobil
Acoperiș
Utilități
Curent Apă Canalizare CATV Gaze Telefon
Internet
Cablu
Amenajare străzi
Iluminat stradal De pământ
Comision
standard

Disponibilitate proprietate:

Imediat

Puncte de interes

Mijloace transport
bus-station
Arad Vest
Stații autobuz aprox. 1687 m
Recreere
restaurant
Hong Kong
Restaurant aprox. 1989 m

Detalii despre preț și costuri

Costuri cu achiziția

Fără credit
Credit ipotecar
Noua casă

i

Costuri adiționale mai puțin știute la achiziție: taxe notariale, comisioane etc.

Acces la informații premium după autentificare
Login Gratuit

Proprietăți similare

Casă individuală cu 4 camere în Buteni
51.000 €
Județul Arad, Buteni
4 camere
120 mp
1.800 mp teren
Casă individuală cu 4 camere în Periferie
50.000 €
Județul Arad, Sântana
4 camere
120 mp
1.199 mp teren
Casă individuală cu 3 camere în Sânnicolau Mic
57.800 €
Arad, Sânnicolau Mic
3 camere
72,32 mp
385 mp teren

Detalii de contact

PROPERTY LAB

Alexandru Stefanescu Real Estate Consultant Arad

PROPERTY LAB

Abonează-te la newsletter să fii primul care primește cele mai noi recomandări de proprietăți și sfaturi de la experți.

CONTACT

Creează alertă

Salvează căutarea ca să primești pe email ultimele anunțuri publicate

Case individuale cu 4+ camere de vânzare în zona 3 Insule, Arad