1

Ansamblu privat case individuale: 120 mp utili, 600 mp teren, Baciu

170.000 € + TVA

Baciu, Județul Cluj

Nr. cam.:
4
Sup. utilă:
120 mp
Sup. teren:
600 mp
Tip prop.:
Casă individuală
  • • Locație aproximativă

Descriere casă

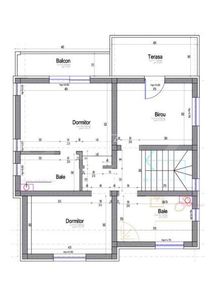
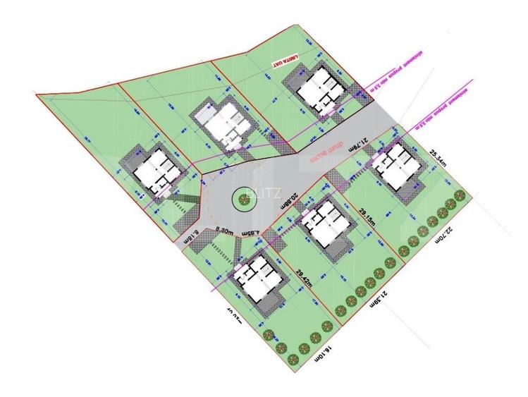
Blitz va ofera spre vanzare o casa individuala situata in Mera, intr-un ansamblu privat de case, fiind o constructie pe fundatie de beton, cu zidarie din caramida, izolata termic la exterior, si dispusa pe doua niveluri (PE) cu urmatoarea compartimentare: - parter (60 mp utili): living, bucatarie, camara, 1 baiE si o terasa de 14 mp; - mansarda (60 mp): 3 dormitoare (din care 1 este matrimonial cu baie si balcon propriu) si inca o baie separata ce deserveste celelalte 2 dormitoare; Ceea ce face proiectul sa fie unul deosebit este stadiul de predare si nivelul de echipare al casei: - geamuri termopan profil Veka cu 3 foi de sticlă și 6 camere - sistem de incalzire in pardoseala cu automatizare pentru parter, prin centrala performanta pe peleti - mansarda izolata cu vata minerala de 10 cm si folie de aluminiu - sapa turnata la mansarda - structură de lemn ignifugată și tratată - curte amenajata - parcare betonata - trotuare pavate în jurul casei La acest moment casa se afla in curs de EXECUTIE, fiind parte dintr-un ansamblu privat de 6 case. LA PRETUL AFISAT, SE ADAUGA TVA 21%! Daca iti place natura si iti doresti acces usor spre infrastructura rutiera, inclusiv autostrada Transilvania, oferta aceasta este pentru tine. Contacteaza-ne pentru mai multe informatii si pentru a programa o vizionare a proprietatii! Cod ofertă / ID BLITZ: P143479
Citește mai mult Citește mai puțin
Nemobilat Centrală proprie Încălzire prin pardoseală 3 Parcări Bine întreținut (Bună)

Detalii casă

ID anunț: XFTI1101C Copiat! 261059481 Copiat!
Actualizat în: 21 Aprilie 2026
Nr. bucătării: 1
Nr. băi: 3
Nr. balcoane / Terase / Logii: 1
Nr. terase: 1
An construcție: 2025 (În construcție)
Structură rezistență: Beton
Regim înălțime: P+1E

Utilități

Izolații termice
Exterior
Ferestre cu geam termopan
Aluminiu PVC
Contorizare
Apometre
Utilități
Curent Apă
Amenajare străzi
Pietruite Iluminat stradal
Comision
2.5%

Puncte de interes

Mijloace transport
bus-station
Statia Intermediara, Linia 31B
Stații autobuz aprox. 28 m
bus-station
Baciu Triaj Hm
Stații autobuz aprox. 296 m
bus-station
Regina
Stații autobuz aprox. 462 m
bus-station
Statia Blocuri, Linia 31B
Stații autobuz aprox. 512 m
Școală
kindergarten
Gradinita Baciu
Gradinițe aprox. 1112 m
school
Scoala Gimnaziala Speciala Transilvania
Școli aprox. 1327 m
school
Scoala cu Clasele I-VIII Baciu
Școli aprox. 1375 m
kindergarten
Grăd.Neghinițăstr. 2
Gradinițe aprox. 1586 m
Recreere
restaurant
Regal
Restaurant aprox. 254 m
park
Parc copii
Parcuri aprox. 862 m
sports-ground
Teren sportiv
Terenuri sport aprox. 941 m
park
Pădurea Hoia Baciu
Parcuri aprox. 1832 m

Detalii despre preț și costuri

Costuri cu achiziția

Fără credit
Credit ipotecar
Noua casă

i

Costuri adiționale mai puțin știute la achiziție: taxe notariale, comisioane etc.

Insight premium disponibil după login

Proprietăți similare

Casă individuală cu 4 camere în Jucu de Sus
159.900 €
Județul Cluj, Jucu de Sus
4 camere
120 mp
470 mp teren
Casă individuală cu 2 camere în Dâmbul Rotund
160.000 €
Cluj-Napoca, Dâmbul Rotund
2 camere
70 mp
430 mp teren
Casă individuală cu 1 camere în Dâmbul Rotund
185.000 €
Cluj-Napoca, Dâmbul Rotund
1 camere
57 mp
387 mp teren

Detalii de contact

BLITZ

BLITZ ROMANIA

4.71(109 review-uri)

BLITZ
PRO

Abonează-te la newsletter să fii primul care primește cele mai noi recomandări de proprietăți și sfaturi de la experți.

CONTACT

Creează alertă

Salvează căutarea ca să primești pe email ultimele anunțuri publicate

Case individuale cu 4+ camere de vânzare în Baciu, Județul Cluj