6

Casa 3 camere 84mp | 0 comision | Balotesti Lahovari 450mp teren

179.000 €

Balotești, Județul Ilfov

Nr. cam.:
3
Sup. utilă:
84 mp
Sup. teren:
450 mp
Tip prop.:
Casă individuală
  • • Comision 0%
  • • Locație exactă

Descriere casă

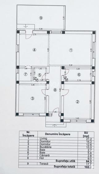
0 Comision. Nu se adauga TVA. Va oferim spre achizitie fara comision o casa individuala noua, localizata intr-un mic complext de case in Balotesti pe strada Lahovari. Casa este finalizata in 2024, are o suprafata de 84mp si detine un teren de 450mp. Asa cum v-am obisnuit: - toate ofertele Monga Imobiliare sunt fara comision din partea cumparatorului - pentru ca iubim transparenta, toate preturile afisate de Monga Imobiliare includ TVA (daca se aplica). Pretul afisat de noi este intotdeauna pretul final pe care il vei achita. Acceseaza Monga Imobiliare (Monga RO) pentru mai mai multe poze si pentru intreg portofoliul nostru de case si apartamente din Otopeni, Tunari, Balotesti, Corbeanca, Pipera si chiar nordul Bucurestiului. Punctele forte al acestei case sunt numeroase: locatia linistita, curtea generoasa, comunitatea frumoasa din care face parte. Despre spatiu: Accesul se face intr-un vestibul cu spatiu pentru haine, ce comunica cu doua doemitoare, doua bai si se termina cu un living-dining cu bucatarie deschisa foarte generos de 35mp. De aici poate fi accesata curtea si terasa. Utilitati - casa este conectata la toate utilitatile - centrala termica cu incalzire prin pardoseala Alte detalii: - Storuri electrice la toate ferestrele - curte foarte spatioasa - parcare. - pod pentru depozitare Despre locatie: - Acces usor catre DN1 si zona comerciala DN1 Value Center - acces rapid catre Balotesti, Edenland, Va asteptam la vizionare pentru a descoperi toate aceste detalii si multe altele ale acestei proprietati. Apeleaza cu incredere la Monga Imobiliare. Suntem alaturi de tine pana la finalizarea tranzactiei si te ajutam sa treci cu incredere si in cunostinta de cauza prin toti pasii necesari. Te putem ajuta in pregatirea documentelor, selectia notarului, obtinerea finantarii, si altele. Te asteptam sa ne contactezi.
Citește mai mult Citește mai puțin
Parțial mobilat Centrală proprie Încălzire prin pardoseală 2 Parcări Bine întreținut (Bună)

Detalii casă

ID anunț: XFHP11092 Copiat! 275315757 Copiat!
Actualizat în: 19 Mai 2026
Tip tranzacție: De vânzare prin agent
Nr. băi: 2
Nr. terase: 1
Suprafață terase: 18 mp
An construcție: 2024 (Finalizată)
Structură rezistență: Beton
Modalitate de plată: Cash sau Credit

Utilități

Utilități
Curent Apă Canalizare Gaze
Amenajare străzi
Asfaltate
Comision
0%

Puncte de interes

Școală
school
scoala
Școli aprox. 1960 m

Istoricul prețurilor

Acces la informații premium după autentificare
Login Gratuit

Detalii despre preț și costuri

Costuri cu achiziția

Fără credit
Credit ipotecar
Noua casă

i

Costuri adiționale mai puțin știute la achiziție: taxe notariale, comisioane etc.

Acces la informații premium după autentificare
Login Gratuit

Proprietăți similare

Casă individuală cu 4 camere în Balotești
180.000 €
Județul Ilfov, Balotești
4 camere
115 mp
510 mp teren
Casă individuală cu 4 camere în Balotești
193.300 €
Județul Ilfov, Balotești
4 camere
115 mp
510 mp teren
Casă individuală cu 4 camere în Balotești
193.600 €
Județul Ilfov, Balotești
4 camere
115 mp
510 mp teren

Detalii de contact

MONGA

Razvan Ceapa Managing Partner

5.00(5 review-uri)

MONGA
PRO

Abonează-te la newsletter să fii primul care primește cele mai noi recomandări de proprietăți și sfaturi de la experți.

CONTACT

Creează alertă

Salvează căutarea ca să primești pe email ultimele anunțuri publicate

Case individuale cu 3 camere de vânzare în Balotești, Județul Ilfov