BARNOVA - Casa individuala P+M+POD, 145 mp + 789 mp teren

109.000 €

Bârnova, Județul Iași

Nr. cam.:
4
Sup. utilă:
145 mp
Sup. teren:
470 mp
Tip prop.:
Individuală
  • • Locație aproximativă

Descriere casă

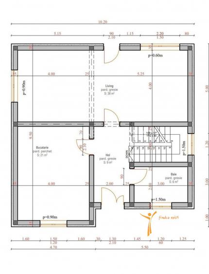
*** DESTINE IMOBILIARE va prezinta spre vanzare: ** Casa individuala 4 camere – BARNOVA Pret: 109.000 € INFORMAȚII GENERALE: An constructie: 2021 Construita in regie proprie Regim de inaltime: P+M+Pod Suprafata utila: 145 mp + balcon 4,70 mp Teren: 789 mp, cu tot cu cale de acces DETALII CONSTRUCȚIE: Fundatie din beton armat Centuri si stalpi din fier beton Zidarie din caramida Izolatie exterioara cu polistiren expandat COMPARTIMENTARE: ~ PARTER: living generos, bucatarie, baie cu geam, hol ~ ETAJ: 3 dormitoare, baie cu geam, hol, balcon ~ POD pentru depozitare Proprietatea se vinde LA GRI, oferind viitorului proprietar libertatea de a o amenaja si finisa exact dupa propriul gust si buget. Pozitionata in planul 2 fata de strada principala Cale de acces privata Zona linistita, aer curat si priveliste frumoasa La doar 2,5 km de Primaria Barnova Ideala pentru o familie care isi doreste liniste, spatiu generos si acces rapid catre oras. > Pentru vizionari sau informatii suplimentare: -> - Atasiei Mihaela *Cod oferta : P4780 Aceasta proprietate poate fi achizitionata prin intermediul unui credit, iar noi suntem aici sa va facilitam acest proces. Datorita parteneriatelor noastre stranse cu cele mai importante institutii bancare, va putem oferi asistenta in obtinerea finantarii potrivite pentru dumneavoastra. Nu ezitati sa ne contactati pentru mai multe informatii despre optiunile de finantare disponibile!
Citește mai mult Citește mai puțin
Nemobilat Curte 2 Parcări Zonă rurală

Detalii casă

ID anunț: XBCG11103 Copiat! 275013027 Copiat!
Actualizat în: 18 Februarie 2026
Suprafață construită: 203 mp
Nr. bucătării: 1
Nr. băi: 2
Nr. balcoane: 1
Front stradal: 34.57 m
An construcție: 2021 (La gri)
Structură rezistență: Cărămidă
Regim înălțime: P+M

Utilități

Contorizare
Apometre Contor gaz
Diverse
Scară interioară
Alte spații utile
Spațiu depozitare
Utilități
Curent Apă Gaze
Ușă intrare
PVC
Izolații termice
Exterior
Ferestre cu geam termopan
PVC
Amenajare străzi
Asfaltate Betonate Iluminat stradal
Comision
standard

Vecinătăți:

Barnova, Bucium, Hanul Trei Sarmale, Arcadia Bucium

Disponibilitate proprietate:

imediat

Puncte de interes

Recreere
park
Parc
Parcuri aprox. 1086 m
park
Club Hamak
Parcuri aprox. 1879 m

Detalii despre preț și costuri

Costuri cu achiziția

Fără credit
6.532 RON
Credit ipotecar
8.107 RON
Noua casă
695 RON+ taxe notariale

i

Costuri adiționale mai puțin știute la achiziție: taxe notariale, comisioane etc.

Proprietăți similare

Casă individuală cu 4 camere în Bârnova
115.000 €
Județul Iași, Bârnova
4 camere
162 mp
500 mp teren
Casă individuală cu 3 camere în Nicolina
99.000 €
Iași, Nicolina
3 camere
56 mp
130 mp teren
Casă individuală cu 5 camere în Exterior Vest
115.000 €
Iași, Exterior Vest
5 camere
160 mp
500 mp teren

Detalii de contact

DESTINE IMOBILIARE

Mihaela Atasiei Agent imobiliar

DESTINE IMOBILIARE

Abonează-te la newsletter să fii primul care primește cele mai noi recomandări de proprietăți și sfaturi de la experți.

CONTACT

Creează alertă

Salvează căutarea ca să primești pe email ultimele anunțuri publicate

Case individuale cu 4+ camere de vânzare în Bârnova, Județul Iași