7

Casa individuala 3 camere/Com.Berceni

120.987 €

Berceni, Județul Ilfov

Nr. cam.:
3
Sup. utilă:
90 mp
Sup. teren:
265 mp
Tip prop.:
Individuală
  • • Comision 0%
  • • Locație exactă

Descriere casă

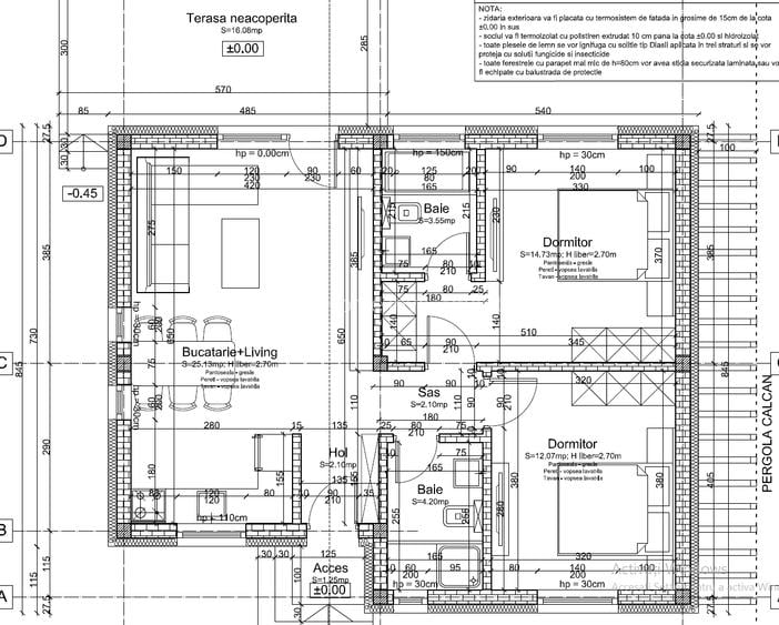
Pentru toți cei care sunt in căutarea unei case de vis, într-o locație intimă, avem deosebita plăcere de a va prezenta aceasta resedinta situata in Comuna Berceni. COMISION 0% PENTRU CUMPARATOR! Casa dispune de un teren în suprafață de 265 mp și o suprafață de 90 mp,fiind compartimentata astfel: -PARTER:hol,living,bucatarie,2 dormitoare,2 grupuri sanitare. TERASA,BECI,POD. PRET IMOBIL-99.990 + TVA 21 %!!! Imobilul se vinde la cheie cu finisaje complete: faianta, gresie, parchet, usi interioare si obiecte sanitare . - Imobilul poate fi achizitionat atat din surse proprii, cat si prin credit bancar ! -Consultanta financiară gratuita ! Asteptam sa ne sunați pentru a afla multe alte detalii despre aceasta proprietate ce poate fi casa familiei dvs. astfel ca va invit sa ne contactați pentru a stabili o vizionare! Număr de contact: Lucia
Citește mai mult Citește mai puțin
Curte Încălzire prin pardoseală Beci

Detalii casă

ID anunț: XFPS01035 Copiat! 264566536 Copiat!
Actualizat în: 07 Mai 2026
Tip tranzacție: De vânzare prin agent
Nr. băi: 2
An construcție: 2025 (Finalizată)
Structură rezistență: Cărămidă
Regim înălțime: P
Modalitate de plată: Cash sau Credit

Utilități

Pereți
Faianță Vopsea lavabilă
Podele
Parchet Gresie
Ușă intrare
Metal
Izolații termice
Exterior Interior
Alte spații utile
Spațiu depozitare Dressing
Utilități
Curent Apă Fosa septică Gaze
Internet
Cablu Fibră optică
Amenajare străzi
Asfaltate Pietruite Mijloace de transport în comun Iluminat stradal
Comision
0%

Puncte de interes

Școală
school
Scoala Berceni
Școli aprox. 482 m
Recreere
sports-ground
Teren sportiv
Terenuri sport aprox. 622 m
restaurant
Salon Evenimente Casa Alba
Restaurant aprox. 1481 m

Detalii despre preț și costuri

Costuri cu achiziția

Fără credit
Credit ipotecar
Noua casă

i

Costuri adiționale mai puțin știute la achiziție: taxe notariale, comisioane etc.

Acces la informații premium după autentificare
Login Gratuit

Proprietăți similare

Casă individuală cu 3 camere în Berceni
105.000 €
Județul Ilfov, Berceni
3 camere
85 mp
290 mp teren
Casă individuală cu 5 camere în Berceni
102.850 €
Județul Ilfov, Berceni
5 camere
135 mp
386 mp teren
Casă individuală cu 5 camere în Berceni
102.850 €
Județul Ilfov, Berceni
5 camere
135 mp
386 mp teren

Detalii de contact

Abonează-te la newsletter să fii primul care primește cele mai noi recomandări de proprietăți și sfaturi de la experți.

CONTACT

Creează alertă

Salvează căutarea ca să primești pe email ultimele anunțuri publicate

Case individuale cu 3 camere de vânzare în Berceni, Județul Ilfov