3

Casa Individuala Berceni Sf.Ana & Oituz | teren 350mp | 92,7mp const

125.000 €

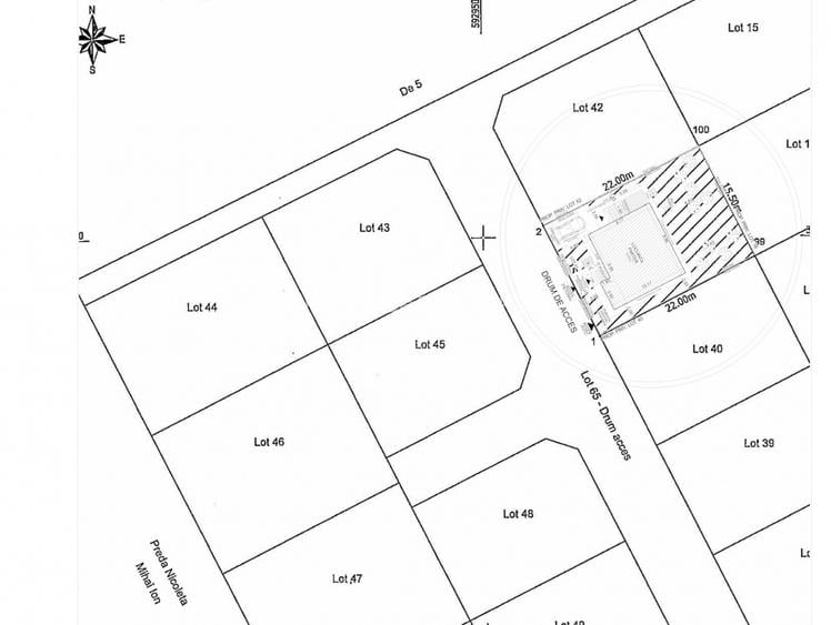
Berceni, Județul Ilfov

Nr. cam.:
3
Sup. utilă:
73 mp
Sup. teren:
350 mp
Tip prop.:
Individuală
  • • Comision 0%
  • • Locație aproximativă

Descriere casă

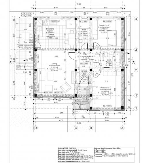
Va propunem spre vanzare vila individuala in suprafata construita de 92,7mp pe terenuri cu suprafate de 340-360mp, suprafata utila de 73mp la care se adauga terase de aproape 12mp. Casa se vinde la gata, direct de la dezvoltator, are compartimentare decomandata, 2 bai, 2 dormitoare, un living si o bucatarie ce se poate inchide. Curtea libera este de aproximativ 250mp. Incalzirea se face pe baza de centrala termica pe curent si incalzire in pardoseala, ceea ce face ca aceasta casa sa aiba consumuri foarte eficiente de energie. Se poate aplica imediat pentru panouri fotovoltaice. Localizare: Str. Sfanta Ana (cu acces direct catre Radiala 9 Berceni) si Str. Oituz cu intrare din Comuna Berceni. Merita o vizionare! Pretul este de 125.000 Euro sau 129.000 Euro in functie de locatie sau teren (TVA INCLUS).
Citește mai mult Citește mai puțin
Grădină Curte Centrală proprie Încălzire prin pardoseală 1 Parcare

Detalii casă

ID anunț: XF9N1100T Copiat! 273362465 Copiat!
Actualizat în: 24 Ianuarie 2026
Suprafață construită: 92.7 mp
Nr. bucătării: 1
Nr. băi: 2
Nr. terase: 1
Front stradal: 15 m
An construcție: 2025 (Finalizată)
Structură rezistență: Beton
Regim înălțime: P

Utilități

Pereți
Vopsea lavabilă Faianță
Podele
Parchet Gresie
Ușă intrare
Metal
Izolații termice
Exterior
Ferestre cu geam termopan
PVC
Utilități
Curent Fosa septică

Certificat energetic:

Clasa energetică: A

Disponibilitate proprietate:

imediat

Detalii despre preț și costuri

Costuri cu achiziția

Fără credit
7.193 RON
Credit ipotecar
8.836 RON
Noua casă
777 RON+ taxe notariale

i

Costuri adiționale mai puțin știute la achiziție: taxe notariale, comisioane etc.

Proprietăți recomandate

Detalii de contact

REALTHOR PARTNERS

Elena Catrina Broker Imobiliar

REALTHOR PARTNERS
PRO

Abonează-te la newsletter să fii primul care primește cele mai noi recomandări de proprietăți și sfaturi de la experți.

CONTACT

Creează alertă

Salvează căutarea ca să primești pe email ultimele anunțuri publicate

Case individuale cu 3 camere de vânzare în Berceni, Județul Ilfov