Casa Individuala Oituz | 85mp | incalzire pardoseala | teren 410mp

103.000 € + TVA

Berceni, Județul Ilfov

Nr. cam.:
3
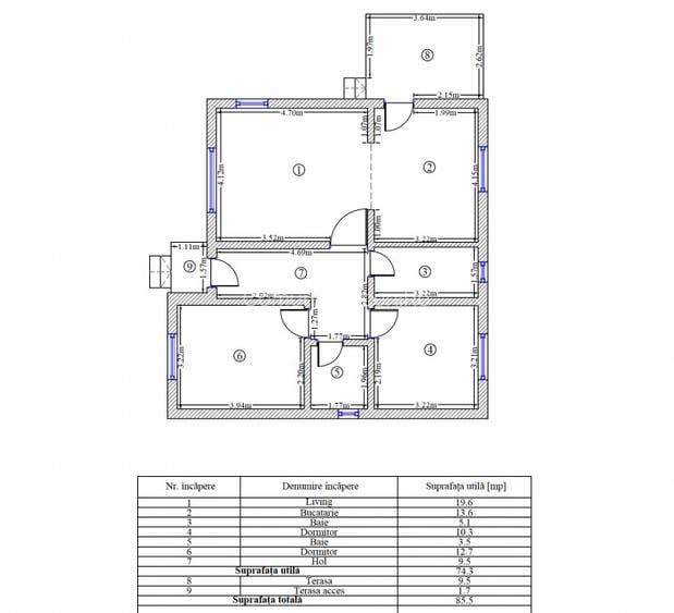
Sup. utilă:
74,3 mp
Sup. teren:
409 mp
Tip prop.:
Individuală
  • • Comision 0%
  • • Locație aproximativă

Descriere casă

Oferta 2026! COMUNA BERCENI, ILFOV! Direct de la proprietar fara comision! Vanzare casa parter cu 3 camere (2 dormitoare si 2 bai) situata intr-un proiect de locuinte la 1 km de Bucuresti, cu intrare prin strada Macului sau Strada Oituz. Construita din: • Exterior realizat din caramida Porotherm 25cm Nut si Feder • Izolatie de Polistiren de 10cm EPS80 • Izolatie sub placa de polistiren de 5cm • Izolatie Acoperis de celulosa de 10cm • Izolatie Tavan de Vata de 10cm • Incalziri in pardoseala “Purmo” Italia cu garantie 30 de ani. • Termopane Salmander Tripan cu profile streamline 76mm si Sticla tripla de 40mm, Germania • Țigla Metalica Bilka 05 cu garantia 15 ani • Parchet calitate, Gresie si Faianta premium - Spania • Finisaj cu Glet premium (Ceresit) • Drum asfaltat la distanta foarte mica (50-100m) • Casa se vinde la cheie, bransata la curent trifazat, fosa septica si put forat la 15ml. Compartimentare: living, bucatarie inchisa, 2 dormitoare, 2 bai, hol * terasa cu iesire din bucatarie * pod 80 mp pentru depozitare. Suprafata construita: 100 mp Suprafata utila: 86 mp Terase: 12 mp Suprafata teren: 409 mp (aproximativ in functie de parcela) Pret inclusiv TVA: 124.900 Euro
Citește mai mult Citește mai puțin
Nemobilat Curte Încălzire prin pardoseală

Detalii casă

ID anunț: XG1R01000 Copiat! 275074802 Copiat!
Actualizat în: 23 Februarie 2026
Suprafață construită: 100 mp
Nr. bucătării: 1
Nr. băi: 2
Nr. terase: 1
Front stradal: 16 m
An construcție: 2024 (Finalizată)
Structură rezistență: Cărămidă
Regim înălțime: P

Utilități

Pereți
Vopsea lavabilă Faianță
Podele
Parchet Gresie
Ușă intrare
Metal
Uși interior
Celulare
Izolații termice
Exterior
Ferestre cu geam termopan
PVC
Utilități
Curent Fosa septică Curent trifazic
Alte spații utile
WC Serviciu
Amenajare străzi
Iluminat stradal

Disponibilitate proprietate:

imediat

Detalii despre preț și costuri

Costuri cu achiziția

Fără credit
7.182 RON
Credit ipotecar
8.824 RON
Noua casă
775 RON+ taxe notariale

i

Costuri adiționale mai puțin știute la achiziție: taxe notariale, comisioane etc.

Proprietăți recomandate

Detalii de contact

ComunaBerceniRo

Dragos Dican Senior Broker

ComunaBerceniRo
PRO

Abonează-te la newsletter să fii primul care primește cele mai noi recomandări de proprietăți și sfaturi de la experți.

CONTACT

Creează alertă

Salvează căutarea ca să primești pe email ultimele anunțuri publicate

Case individuale cu 3 camere de vânzare în Berceni, Județul Ilfov