Vila individuala - Berceni

164.990 €

Berceni, Județul Ilfov

Nr. cam.:
4
Sup. utilă:
110 mp
Sup. teren:
425 mp
Tip prop.:
Individuală
  • • Comision 0%
  • • Locație exactă

Descriere casă

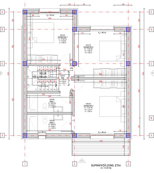
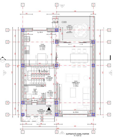
Va oferim spre vanzare o vila cu regim de inaltime P+1E, teren de 425 mp + suprafata utila de 110 mp, situata in comuna Berceni, intr -o zona linistita, ferita de traficul intens . COMISION 0% PENTRU CUMPARATOR! Casa dispune de un teren în suprafață de 425 mp, regim de înălțime P+1 E+POD,și o suprafață interioară utilă de 110 mp,fiind compartimentata astfel: PARTER: -Hol 4,56 mp -Living 28,74 mp -Bucatarie 12,58 mp -Grup Sanitar 3,49 mp TERASA acces 4,32 mp TERASA 10,7 mp ETAJ: -Hol 2,28 mp -Dormitor 12,58 mp -Dormitor 13,14 mp -Dormitor matrimonial 15,50 mp + Grup sanitar 4,84 mp -Grup sanitar 4,84 mp INCALZIRE IN PARDOSEALA PLACA PESTE ETAJ POD DE DEPOZITARE TAMPLARIE TRIPAN Imobilul se vinde la cheie cu finisaje complete: faianta, gresie, parchet, usi interioare si obiecte sanitare . - Imobilul poate fi achizitionat atat din surse proprii, cat si prin credit bancar ! -Consultanta financiară gratuita ! Pentru a afla toate detaliile care conteaza pentru tine , ai la dispozitie un consultant dedicat , care iti va fi alaturi si te va ghida in a lua o decizie informata . ELENA
Citește mai mult Citește mai puțin
Curte Centrală proprie Încălzire prin pardoseală

Detalii casă

ID anunț: XFPS0101O Copiat! 260587034 Copiat!
Actualizat în: 20 Iunie 2025
Suprafață desfășurată: 148 mp
Nr. bucătării: 1
Nr. băi: 3
An construcție: 2025
Structură rezistență: Cărămidă
Regim înălțime: P+1E

Utilități

Pereți
Faianță Vopsea lavabilă
Podele
Parchet Gresie
Utilități
Curent Fosa septică
Internet
Cablu
Amenajare străzi
Asfaltate

Puncte de interes

Școală
school
Scoala Berceni
Școli aprox. 455 m
Recreere
sports-ground
Teren sportiv
Terenuri sport aprox. 587 m
restaurant
Salon Evenimente Casa Alba
Restaurant aprox. 1498 m

Detalii despre preț și costuri

Costuri cu achiziția

Fără credit
8.567 RON
Credit ipotecar
10.380 RON
Noua casă
981 RON+ taxe notariale

i

Costuri adiționale mai puțin știute la achiziție: taxe notariale, comisioane etc.

Proprietăți similare

Casă individuală cu 4 camere în Berceni
175.000 €
Județul Ilfov, Berceni
4 camere
145,2 mp
441 mp teren
Casă individuală cu 5 camere în Berceni
159.900 €
Județul Ilfov, Berceni
5 camere
127,9 mp
463 mp teren
Casă individuală cu 6 camere în Berceni
170.000 €
Județul Ilfov, Berceni
6 camere
250 mp
275 mp teren

Detalii de contact

Real Home Investment

ARMANU ELENA ADMINISTRATOR

Real Home Investment
PRO

Abonează-te la newsletter să fii primul care primește cele mai noi recomandări de proprietăți și sfaturi de la experți.

CONTACT

Creează alertă

Salvează căutarea ca să primești pe email ultimele anunțuri publicate

Case individuale cu 4+ camere de vânzare în Berceni, Județul Ilfov