2

Casa individuala 4 camere/Com.Berceni

144.990 €

Berceni, Județul Ilfov

Nr. cam.:
4
Sup. utilă:
95 mp
Sup. teren:
370 mp
Tip prop.:
Individuală
  • • Comision 0%
  • • Locație exactă

Descriere casă

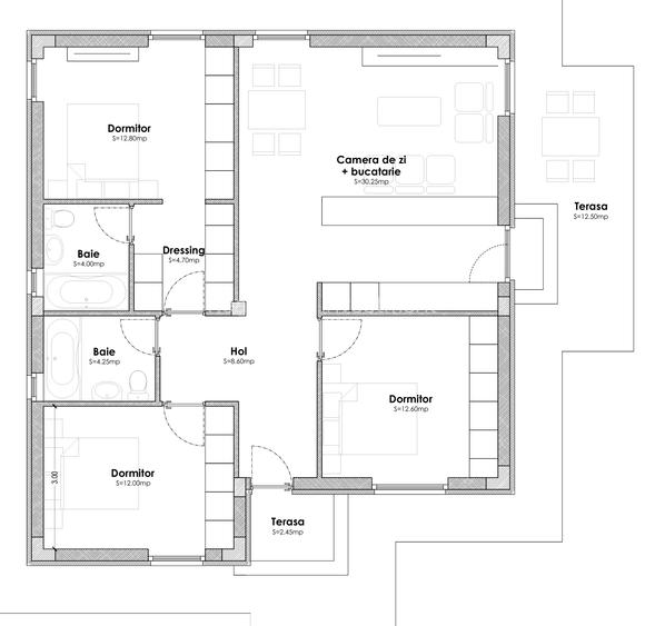
Vă propunem spre vânzare o casă parter situata la 200 de metri de bulevardul principal, amplasată pe un teren generos de 370 mp, ideală pentru o familie care își dorește confort, spațiu și economie la întreținere. COMISION 0 % PENTRU CUMPARATOR! Caracteristici principale: Construcție solidă cu placă de beton 4 camere: living luminos și 3 dormitoare spațioase 2 băi moderne Beci util pentru depozitare Încălzire în pardoseală – confort termic în fiecare anotimp Panouri fotovoltaice – costuri reduse și independență energetică Curtea oferă spațiu pentru grădină, terasă și locuri de parcare, iar compartimentarea interioară este gândită pentru a răspunde nevoilor unei familii moderne. Proprietatea se află într-o zonă liniștită, cu acces facil către punctele de interes din localitate. - Imobilul poate fi achizitionat atat din surse proprii, cat si prin credit bancar ! -Consultanta financiară gratuita ! O alegere excelentă pentru cei care caută o locuință durabilă, eficientă și gata să devină "acasă''. Număr de contact: Lucia
Citește mai mult Citește mai puțin
Curte Încălzire prin pardoseală Beci

Detalii casă

ID anunț: XFPS0102O Copiat! 264101974 Copiat!
Actualizat în: 24 Februarie 2026
Nr. băi: 2
An construcție: 2025 (Finalizată)
Structură rezistență: Cărămidă
Regim înălțime: P

Utilități

Pereți
Faianță Vopsea lavabilă
Podele
Parchet Gresie
Ușă intrare
Metal
Izolații termice
Exterior Interior
Alte spații utile
Spațiu depozitare Dressing
Utilități
Curent Apă Fosa septică
Internet
Cablu Fibră optică
Amenajare străzi
Asfaltate Mijloace de transport în comun Iluminat stradal
Comision
0%

Puncte de interes

Școală
school
Scoala Berceni
Școli aprox. 486 m
Recreere
sports-ground
Teren sportiv
Terenuri sport aprox. 621 m
restaurant
Salon Evenimente Casa Alba
Restaurant aprox. 1475 m

Detalii despre preț și costuri

Costuri cu achiziția

Fără credit
7.883 RON
Credit ipotecar
9.611 RON
Noua casă
879 RON+ taxe notariale

i

Costuri adiționale mai puțin știute la achiziție: taxe notariale, comisioane etc.

Proprietăți recomandate

Detalii de contact

Abonează-te la newsletter să fii primul care primește cele mai noi recomandări de proprietăți și sfaturi de la experți.

CONTACT

Creează alertă

Salvează căutarea ca să primești pe email ultimele anunțuri publicate

Case individuale cu 4+ camere de vânzare în Berceni, Județul Ilfov