Casa/Vila individuala 4 camere,400 m de blv./Com.Berceni

194.990 €

Berceni, Județul Ilfov

Nr. cam.:
4
Sup. utilă:
125 mp
Sup. teren:
308 mp
Tip prop.:
Individuală
  • • Comision 0%
  • • Locație exactă

Descriere casă

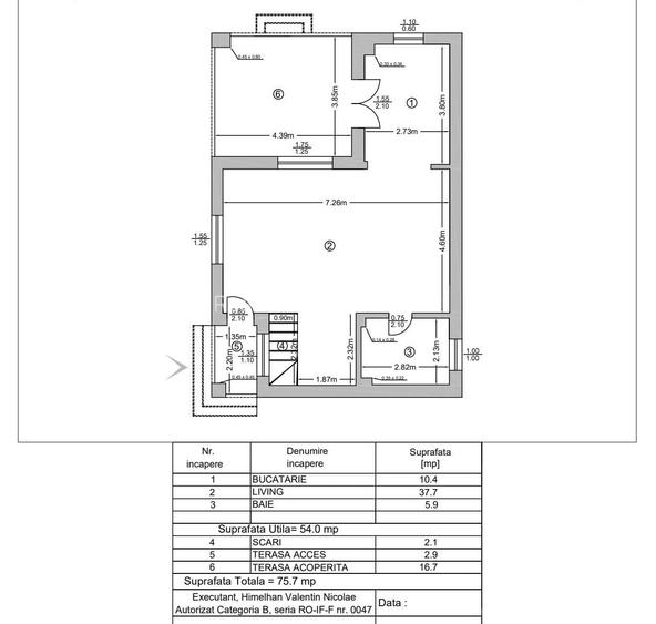
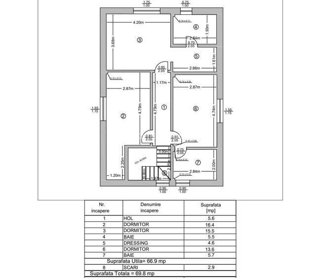
Vă propunem spre vânzare o casă modernă, parter + mansardă, ideală pentru o familie care își dorește confort și funcționalitate,amplasata la 400 m de bulevardul 1 Mai si la 1 km de statia de metrou Tudor Arghezi. COMISION 0% PENTRU CUMPARATOR! Caracteristici: Suprafață utilă: 125 mp Teren: 308 mp 4 camere spațioase 3 grupuri sanitare Dressing Terasă acoperită, perfectă pentru relaxare Încălzire cu centrală și calorifere Compartimentare eficientă Gata de mutare - Imobilul poate fi achizitionat atat din surse proprii, cat si prin credit bancar ! -Consultanta financiară gratuita ! Asteptam sa ne sunați pentru a afla multe alte detalii despre aceasta proprietate ce poate fi casa familiei dvs. astfel ca va invit sa ne contactați pentru a stabili o vizionare!!!
Citește mai mult Citește mai puțin
Curte Calorifere

Detalii casă

ID anunț: XFPS0105A Copiat! 274824010 Copiat!
Actualizat în: 13 Februarie 2026
Nr. băi: 3
An construcție: 2025 (Finalizată)
Structură rezistență: Cărămidă
Regim înălțime: P+M

Utilități

Pereți
Faianță Vopsea lavabilă
Podele
Gresie Parchet
Ușă intrare
PVC
Izolații termice
Interior Exterior
Alte spații utile
WC Serviciu Dressing Spațiu depozitare
Facilități imobil
Acoperiș
Utilități
Gaze Curent Fosa septică Apă
Internet
Fibră optică Cablu
Amenajare străzi
Pietruite Asfaltate Iluminat stradal Mijloace de transport în comun
Comision
0%

Puncte de interes

Școală
school
Scoala Berceni
Școli aprox. 478 m
Recreere
sports-ground
Teren sportiv
Terenuri sport aprox. 607 m
restaurant
Salon Evenimente Casa Alba
Restaurant aprox. 1477 m

Detalii despre preț și costuri

Costuri cu achiziția

Fără credit
9.601 RON
Credit ipotecar
11.542 RON
Noua casă
1.134 RON+ taxe notariale

i

Costuri adiționale mai puțin știute la achiziție: taxe notariale, comisioane etc.

Proprietăți recomandate

Detalii de contact

Abonează-te la newsletter să fii primul care primește cele mai noi recomandări de proprietăți și sfaturi de la experți.

CONTACT

Creează alertă

Salvează căutarea ca să primești pe email ultimele anunțuri publicate

Case individuale cu 4+ camere de vânzare în Berceni, Județul Ilfov