Vila Ready-to-Move, Proiect deosebit, finalizat 2024! Casa individuala 300 mp utili- plus beci, terase si locuri de parcare!
Va propun spre achizitie, o proprietate tip vila, compusa din 5 camere, 4 bai, 5 terase, structurata pe Parter+Etaj+Mansarda, amplasata in zona centrala a comunei Berceni, cu vecinatati selecte, aproapede Primarie, pe o strada cu trafic redus. In proximitate se afla si principalele hub-uri comerciale ale zonei.
Imobilul are expunere mixta iar detaliile exclusiviste plaseaza aceasta proprietate in zona caselor premium din zona centrala a comunei Berceni, destinata persoanelor pretentioase.
Nou construita, cu ultimele detalii finisate 2024, dispune de 5 camere, 4 bai, 5 terase, un beci cu statie de dedurizare, insumand o suprafata utila de 300 mp, suprafata utila totala- 440mp, iar suprafata terenului 400mp. Este spatioasa si primitoare, cu camere inalte, compartimentate astfel:
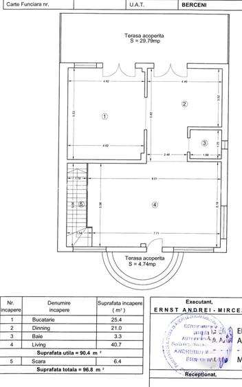
Parterul, in suprafata utila de 100 mp, ne intampina cu living generos de 40 mp plus dining-ul in suprafata utila 21 mp, bucatarie- 25 mp, mobilata ultima generatie si full utilata, cu toate cele necesare unei bucatarii ultramoderne, o baie, camera tehnica si hol.
Etajul 1, cu o structura modernizata, se desfasoara pe o suprafata totala de 135mp, are atribuite 3 dormitoare matrimoniale cu bai proprii, dintre care doua in oglinda, hol si 3 terase. Al treilea dormitor matrimonial dispune inclusiv de 2 spatii de dressing primitoare.
Mansarda include un open space, tip hobby, cu o suprafata la fel de generoasa de 120 mp, compartimentabila.
Casa este construita astfel incat sa incante pe oricine. Camerele sunt inalte, spatioase si luminoase, mobilate in stil minimalist.
Imobilul se preda racordat la toate utilitatile, interiorul acestuia fiind 100% finisat , incluzand peretii tencuiti, gletuiti, lavabila, usi, toate instalatiile electrice si sanitare, termice trase pe pozitii, centrala termica, toate cele necesare unei mutari imediate.
Curtea ofera intimitate, se desfasoara pe o suprafata de 200 mp, amenajata cu pavele si gazon, fiind ideala pentru a petrece timpul liber, intr-un mod placut si relaxant.
Curtea dispune de spatiu pentru 2 locuri de parcare. De asemenea, mai exista posibilitate de parcare in fata portii, pentru cel putin inca 2 masini.
Comuna Berceni este într-un proces amplu de dezvoltare, având în derulare mai multe proiecte, unele finalizate:
Sensul giratoriu suspendat peste linia de centură
Autostrada A0
Parcare de tip “Park & Ride”
Extindere M2 - stație metrou “Centura Berceni”
Disponibilitate Vanzare: imediata.
Va astept cu drag la vizionare!
Sediul central - Timișoara
Bulevardul Victor Babeș nr. 2, 300230, Timișoara, România
Tel: +40.374.40.44.98 / Fax: +40.256.401.179
Email: suport@imobiliare.ro
Luni - Vineri 08:00 - 20:00
Punct de lucru - București: Iride Business Park, Bld. Dimitrie
Pompeiu 9-9A, Clădirea B2B,
020335, Sector 2, București, România
CONTACT
Sediul central - Timișoara
Bulevardul Victor Babeș nr. 2, 300230, Timișoara, România
Tel: +40.374.40.44.98 / Fax: +40.256.401.179
Email: suport@imobiliare.ro
Luni - Vineri 08:00 - 20:00
Punct de lucru - București: Iride Business Park, Bld. Dimitrie
Pompeiu 9-9A, Clădirea B2B,
020335, Sector 2, București, România
Sună acum și cere detalii sau programează o vizionare.
Nu rata ocazia să afli mai multe!
Sună acum și cere detalii sau programează o vizionare.
Cere detalii prin email
*
*
*
*
Școli
Terenuri sport
Scoala Berceni
aprox.
1543 m
Teren sportiv
aprox.
1658 m
Înainte să pleci...
Ești sigur că ai văzut și aceste proprietăți?
249.000 €
Județul Ilfov, Berceni
6 camere
244 mp
894 mp teren
270.000 €
Județul Ilfov, Berceni
4 camere
200 mp
414 mp teren
249.900 €
Județul Ilfov, Berceni
4 camere
120 mp
600 mp teren
248.000 €
Județul Ilfov, Berceni
5 camere
140 mp
500 mp teren
249.999 €
Județul Ilfov, Berceni
6 camere
200 mp
650 mp teren
199.000 €
Județul Ilfov, Berceni
4 camere
150 mp
520 mp teren
Creează alertă
Salvează căutarea ca să primești pe email ultimele anunțuri publicate
Case individuale cu 4+ camere de vânzare în Berceni, Județul Ilfov
Cere detalii prin email
*
*
*
*
Detaliile tale de contact vor fi partajate cu Abraham Cristina Mirela Pfa
Preț total1.285.007 RON (252.253 €)
Costuri cu achiziția11.482 RON
Preț de achiziție1.273.525 RON
Costuri cu achiziția11.482 RON
Comision agenție Întreabă agenţia
Onorariu notarial9.572 RON
Taxă înscriere OCPI1.910 RON
Preț de achiziție1.273.525 RON
Preț locuință1.273.525 RON
TVA 0%Inclus în prețul cerut
Cost total207.740 RON (40.780 €)
Avans (15%)191.029 RON
Cost achitat în prima lună3.056 RON
Costuri cu achiziția13.655 RON
Cost achitat în prima lună3.056 RON
Comision analiză dosar
400 RON - 900 RON
Taxă evaluare imobil(până la)
900 RON
Rata lunară (variabilă)5.673 RON
Asigurare anuală imobil1.274 RON
Arhivă electronică102 RON
Poliță PAD130 RON
Asigurare de viață/lună Costul este variabil. În funcție de banca aleasă, procentul variază între 0.0259% și 0.035% din soldul creditului.
Costuri cu achiziția13.655 RON
Comision agenție Întreabă agenţia
Onorariu notarial9.572 RON
Taxă întabulare OCPI1.910 RON
Autentificare contract credit2.173 RON
Preț de achiziție1.273.525 RON
Preț locuință1.273.525 RON
TVA 0%Inclus în prețul cerut
Preț de achiziție1.273.525 RON
Preț locuință1.273.525 RON
TVA 0%
Inclus în prețul cerut
Avans minim667.327 RON
Credit pe 30 de ani606.198 RON
Cost achitat în prima lună
Taxa evaluare imobil(până la)
900 RON
Rata lunară (variabilă)4.259 RON
Depozit colateral12.777 RON
Comision de garantare FNGCIMM106 RON
Asigurare anuală imobil1.274 RON
Poliță PAD130 RON
Tarif arhivă electronică102 RON
Costuri adiționale1.414 RON + taxe notariale
Asigurare viață și complexă (opțională)Costul este variabil. În funcție de banca aleasă, procentul variază între 0.0259% și 0.035% din soldul creditului
Onorariu notarialconform tarif notarial
Taxă întabulare OCPI1.414 RON
i
Toate valorile de mai sus sunt estimative și nu reprezintă în mod obligatoriu costurile exacte pe care le veți primi de la companiile/instituțiile prin care veți încheia tranzacția.
Căutarea a returnat prea multe rezultate, ce pot reduce relevanța alertelor pe care le vei primi.
Îți recomandăm să aplici mai multe criterii de filtrare (ex: nr. camere, preț, zonă).