1

Casa individuala 5 camere - Teren 428 mp - Berceni Ilfov

159.990 €

Berceni, Județul Ilfov

Nr. cam.:
5
Sup. utilă:
120 mp
Sup. teren:
428 mp
Tip prop.:
Individuală
  • • Comision 0%
  • • Locație exactă

Descriere casă

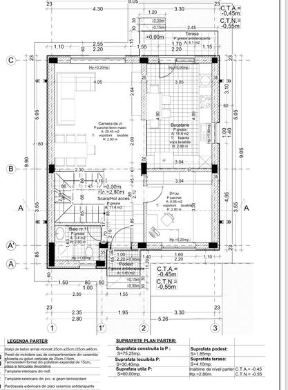
Va prezentam spre vanzare o vila individuala eleganta cu regim de inaltime P+1E ,curte individuala de 428 mp + suprafata utila de 120 mp . Zona de case cu strazi asfaltate, in proximitatea punctelor de interes. COMISION 0% PENTRU CUMPARATOR! Locuinta este compartimentata astfel: PARTER: -Hol 11,40 mp -Living 20,45 mp -Bucatarie 14,82 mp -Dormitor 9,90 mp -Grup Sanitar 3,40 mp ETAJ: -Hol 5,10 mp -Dormitor 12,05 mp -Dormitor 13,65 mp -Dormitor matrimonial 12,00 mp+Dressing 3,90 mp+Grup sanitar 3,75 mp -Grup sanitar 4,50 mp TERASA ACOPERITA POD DE DEPOZITARE INCALZIRE IN PARDOSEALA BECI Imobilul se vinde la cheie cu finisaje complete: faianta, gresie, parchet, usi interioare si obiecte sanitare . Acesta se preda cu utilitatile zonei : curent electric , gaz, fosa , put cu hidrofor sau pompa submersibila . - Imobilul poate fi achizitionat atat din surse proprii, cat si prin credit bancar ! -Consultanta financiară gratuita ! Pentru a afla toate detaliile care conteaza pentru tine , ai la dispozitie un consultant dedicat , care iti va fi alaturi si te va ghida in a lua o decizie informata . ELENA
Citește mai mult Citește mai puțin
Curte Centrală proprie Încălzire prin pardoseală Beci

Detalii casă

ID anunț: XFPS0103V Copiat! 268761747 Copiat!
Actualizat în: 06 Mai 2026
Tip tranzacție: De vânzare prin agent
Suprafață construită: 150 mp
Nr. bucătării: 1
Nr. băi: 3
An construcție: 2025
Regim înălțime: P+1E
Modalitate de plată: Cash sau Credit

Utilități

Pereți
Vopsea lavabilă Faianță
Podele
Gresie Parchet
Alte spații utile
Dressing
Utilități
Gaze Curent Fosa septică
Internet
Cablu Fibră optică
Amenajare străzi
Asfaltate Iluminat stradal Mijloace de transport în comun
Comision
0%

Puncte de interes

Școală
school
Scoala Berceni
Școli aprox. 473 m
Recreere
sports-ground
Teren sportiv
Terenuri sport aprox. 603 m
restaurant
Salon Evenimente Casa Alba
Restaurant aprox. 1482 m

Detalii despre preț și costuri

Costuri cu achiziția

Fără credit
Credit ipotecar
Noua casă

i

Costuri adiționale mai puțin știute la achiziție: taxe notariale, comisioane etc.

Acces la informații premium după autentificare
Login Gratuit

Proprietăți similare

Casă individuală cu 4 camere în Berceni
174.900 €
Județul Ilfov, Berceni
4 camere
136 mp
560 mp teren
Casă individuală cu 4 camere în Berceni
145.000 €
Județul Ilfov, Berceni
4 camere
120 mp
350 mp teren
Casă individuală cu 4 camere în Berceni
145.000 €
Județul Ilfov, Berceni
4 camere
130 mp
350 mp teren

Detalii de contact

Real Home Investment

ARMANU ELENA ADMINISTRATOR

Real Home Investment
PRO

Abonează-te la newsletter să fii primul care primește cele mai noi recomandări de proprietăți și sfaturi de la experți.

CONTACT

Creează alertă

Salvează căutarea ca să primești pe email ultimele anunțuri publicate

Case individuale cu 4+ camere de vânzare în Berceni, Județul Ilfov