Casa noua individuala in Bod la cheie - Comision 0% - Cod intern 2984

187.000 €

Bod, Județul Brașov

Nr. cam.:
5
Sup. utilă:
139 mp
Sup. teren:
520 mp
Tip prop.:
Individuală
  • • Comision 0%
  • • Locație exactă

Descriere casă

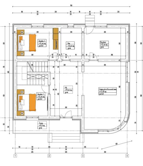
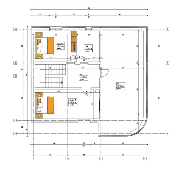
Grenadine Imobiliare vă oferă spre vânzare o casă individuală, situată în localitatea Bod, perfectă pentru o familie cu copii care își dorește un cămin spațios, modern și sigur, într-un mediu liniștit și prietenos. Proprietatea are un teren generos de 520 de metri pătrați, din care rămân aproximativ 400 de metri pătrați de curte liberă, ideală pentru amenajarea unei grădini, a unui foișor sau a unui loc de joacă. Casa are o amprentă la sol de aproximativ 120 mp și este construită în regim parter + mansardă, cu o suprafață utilă totală de aproximativ 139 mp, compartimentată eficient pentru a răspunde nevoilor unei familii. La parter, cei 87 de metri pătrați utili sunt împărțiți în două dormitoare, un living spațios pentru momentele petrecute împreună, bucătărie, baie și hol, oferind confort și funcționalitate în viața de zi cu zi. Mansarda adaugă încă 52 de metri pătrați utili, compartimentați într-un dormitor, o baie, hol, o cameră mare ce poate fi transformată în dormitor pentru copii sau zonă de relaxare și un balcon cu spațiu de dressing, perfect pentru depozitare. La mansarda regasim si un pod de 37 mp, ideal pentru spatiu de depozitare. Casa este racordată la energie electrică și apă, are fosă septică, iar încălzirea este asigurată de o centrală pe gaz, cu alimentare prin butelie, o soluție economică și eficientă pana la instalarea gazului in zona respectiva (demersurile sunt incepute). Construcția este finalizată în 2023, izolată exterior cu polistiren de 10 cm, iar acoperișul din țiglă de beton oferă durabilitate și protecție în orice anotimp. Această casă este locul ideal pentru o familie care își dorește intimitate, spațiu verde pentru joacă sau grădinărit, și confortul unei construcții noi, realizate cu grijă și responsabilitate. Casa se preda la cheie (finisata complet), gresie, faianta, parchet la alegerea clientului, instalatii sanitare complete in ambele bai, usi interioare. Comision 0% din partea cumparatorului! Grenadine Imobiliare Cod intern 2984
Citește mai mult Citește mai puțin
Centrală proprie 2 Parcări Zonă rurală

Detalii casă

ID anunț: X8K3010DR Copiat! 266902517 Copiat!
Actualizat în: 28 Octombrie 2025
Suprafață construită: 120 mp
Suprafață desfășurată: 176 mp
Nr. bucătării: 1
Nr. băi: 2
Nr. balcoane / Terase / Logii: 1
Învelitoare acoperiș: Țiglă
An construcție: 2023 (Finalizată)
Regim înălțime: P+M

Utilități

Destinație
Rezidențial De vacanță
Utilități
Curent Apă Fosa septică
Amenajare străzi
Pietruite

Certificat energetic:

Clasa energetică: B

Puncte de interes

Școală
school
Scoala
Școli aprox. 708 m
school
Scoala Generala Bod
Școli aprox. 731 m
school
Scoala Generala Bod
Școli aprox. 932 m
Recreere
supermarket
Agrostar
Supermarket aprox. 766 m
restaurant
La Francezu
Restaurant aprox. 939 m

Detalii despre preț și costuri

Costuri cu achiziția

Fără credit
9.325 RON
Credit ipotecar
11.232 RON
Noua casă
1.093 RON+ taxe notariale

i

Costuri adiționale mai puțin știute la achiziție: taxe notariale, comisioane etc.

Proprietăți recomandate

Detalii de contact

Grenadine Imobiliare

Gabriel Pavel Manager Vanzari

5.00(3 review-uri)

Grenadine Imobiliare

Abonează-te la newsletter să fii primul care primește cele mai noi recomandări de proprietăți și sfaturi de la experți.

CONTACT

Creează alertă

Salvează căutarea ca să primești pe email ultimele anunțuri publicate

Case individuale cu 4+ camere de vânzare în Bod, Județul Brașov