R.E.A. Imobiliare va prezinta spre vanzare o locuinta moderna, construita pe un singur nivel, cu placa de beton peste parter si pod generos ce permite mansardarea ulterioara, ideala pentru familiile care isi doresc spatiu suplimentar si flexibilitate.
Amplasament:
Casa se afla la intrarea in Bolintin Deal, dinspre Ciorogarla, intr-o zona rezidentiala noua, de case, ferita de agitatie, dar cu acces facil catre Bucuresti si A1.
Bolintin-Deal este o localitate aflata la doar cativa kilometri de Bucuresti, pozitionata excelent pentru cei care isi doresc linistea unei zone rezidentiale noi, dar si acces rapid catre capitala. Localitatea este in plina dezvoltare, cu numeroase ansambluri de case si vile moderne, atragand familii tinere si investitori imobiliari.
Un avantaj important este vecinatatea cu unul dintre cele mai mari parcuri logistice din Romania (CTPark) - hub al marilor companii de distributie si transport, ceea ce confera zonei un potential economic ridicat si o crestere constanta a valorii proprietatilor.
Accesul este facil datorita autostrazii A1 Bucuresti - Pitesti, iar infrastructura locala se dezvolta rapid pentru a raspunde cererii crescande de locuinte moderne in proximitatea Capitalei: Penny, Pepco, Mega Image, 5toGo, Farmacii, Spital, Clinica veterinara, Gradinita, Scoala primara si gimnaziala
Detalii proprietate:
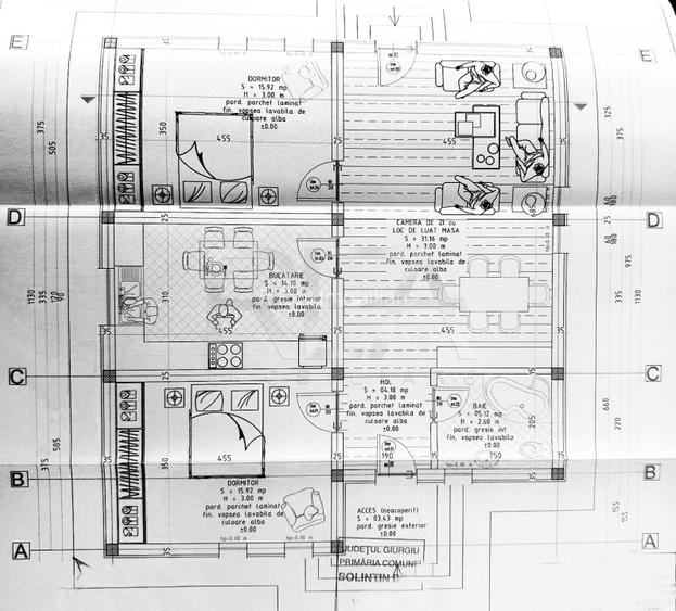
- Suprafata teren: 500 mp
- Suprafata construita parter: ~105 mp + terasa de 30 mp
- Compartimentare parter:
- living generos cu zona de dining - 31 mp
- bucatarie separata - 14 mp
- 2 dormitoare spatioase - cate 15 mp fiecare
- baie - 8 mp
- hol si spatii auxiliare
- Pod mansardabil - placa de beton peste parter, inaltime suficienta pentru amenajarea ulterioara a 2-3 camere.
Constructie & finisaje:
Casa este construita pe structura de rezistenta solida, cu fundatie adanca si pereti din caramida. Proprietarul este constructorul ansamblului rezidential si a acordat o atentie deosebita finisajelor si executiei, deoarece dorea sa se mute in imobil.
Placa de beton armat peste parter confera garantie de durabilitate si posibilitate de mansardare. Acoperisul este din tabla tip Lindab cu folie anticondens. Izolatia termica este eficienta (pereti, pardoseala, acoperis).
Exteriorul ete finisat cu tencuiala decorativa alba si accente gri-antracit, design modern.
Interiorul este la stadiu de finisaje interioare partiale, oferind cumparatorului posibilitatea personalizarii.
In spatele casei a fost amenajata o terasa inchisa, de aproximativ 30 mp, care are si o camera tehnica, care deserveste locuinta - pentru amplasarea hidroforului si a centralei termice si a boilerului.
Aceasta proprietate este o alegere potrivita pentru familii tinere care isi doresc o casa practica, cu potential de extindere si curte proprie intr-un cadru rezidential modern
Pentru mai multe detalii si vizionari, ne puteti contacta telefonic, specificand codul de identificare P8441
Sediul central - Timișoara
Bulevardul Victor Babeș nr. 2, 300230, Timișoara, România
Tel: +40.374.40.44.98 / Fax: +40.256.401.179
Email: suport@imobiliare.ro
Luni - Vineri 08:00 - 20:00
Punct de lucru - București: Iride Business Park, Bld. Dimitrie
Pompeiu 9-9A, Clădirea B2B,
020335, Sector 2, București, România
CONTACT
Sediul central - Timișoara
Bulevardul Victor Babeș nr. 2, 300230, Timișoara, România
Tel: +40.374.40.44.98 / Fax: +40.256.401.179
Email: suport@imobiliare.ro
Luni - Vineri 08:00 - 20:00
Punct de lucru - București: Iride Business Park, Bld. Dimitrie
Pompeiu 9-9A, Clădirea B2B,
020335, Sector 2, București, România
Sună acum și cere detalii sau programează o vizionare.
Cere detalii prin email
*
*
*
*
Înainte să pleci...
Ești sigur că ai văzut și aceste proprietăți?
112.000 €
Județul Giurgiu, Bolintin-Deal
3 camere
89 mp
1.200 mp teren
175.000 €
Județul Giurgiu, Bolintin-Deal
7 camere
220 mp
1.509 mp teren
135.000 €
Județul Giurgiu, Bolintin-Vale
5 camere
117 mp
465 mp teren
340.000 €
Județul Giurgiu, Bolintin-Deal
6 camere
253,3 mp
645 mp teren
135.000 €
Județul Giurgiu, Bolintin-Vale
3 camere
130 mp
600 mp teren
118.000 €
Județul Giurgiu, Ulmi
3 camere
70 mp
250 mp teren
Creează alertă
Salvează căutarea ca să primești pe email ultimele anunțuri publicate
Case individuale cu 3 camere de vânzare în Bolintin-Deal, Județul Giurgiu
Cere detalii prin email
*
*
*
*
Detaliile tale de contact vor fi partajate cu R.e.a. Imobiliare
Preț total618.313 RON (121.378 €)
Costuri cu achiziția7.021 RON
Preț de achiziție611.292 RON
Costuri cu achiziția7.021 RON
Comision agenție Întreabă agenţia
Onorariu notarial6.104 RON
Taxă înscriere OCPI917 RON
Preț de achiziție611.292 RON
Preț locuință611.292 RON
TVA 0%Inclus în prețul cerut
Cost total102.730 RON (20.166 €)
Avans (15%)91.694 RON
Cost achitat în prima lună2.393 RON
Costuri cu achiziția8.643 RON
Cost achitat în prima lună2.393 RON
Comision analiză dosar
400 RON - 900 RON
Taxă evaluare imobil(până la)
900 RON
Rata lunară (variabilă)2.723 RON
Asigurare anuală imobil611 RON
Arhivă electronică102 RON
Poliță PAD130 RON
Asigurare de viață/lună Costul este variabil. În funcție de banca aleasă, procentul variază între 0.0259% și 0.035% din soldul creditului.
Costuri cu achiziția8.643 RON
Comision agenție Întreabă agenţia
Onorariu notarial6.104 RON
Taxă întabulare OCPI917 RON
Autentificare contract credit1.622 RON
Preț de achiziție611.292 RON
Preț locuință611.292 RON
TVA 0%Inclus în prețul cerut
Preț de achiziție611.292 RON
Preț locuință611.292 RON
TVA 0%
Inclus în prețul cerut
Avans minim5.094 RON
Credit pe 30 de ani606.198 RON
Cost achitat în prima lună
Taxa evaluare imobil(până la)
900 RON
Rata lunară (variabilă)4.259 RON
Depozit colateral12.777 RON
Comision de garantare FNGCIMM51 RON
Asigurare anuală imobil611 RON
Poliță PAD130 RON
Tarif arhivă electronică102 RON
Costuri adiționale751 RON + taxe notariale
Asigurare viață și complexă (opțională)Costul este variabil. În funcție de banca aleasă, procentul variază între 0.0259% și 0.035% din soldul creditului
Onorariu notarialconform tarif notarial
Taxă întabulare OCPI751 RON
i
Toate valorile de mai sus sunt estimative și nu reprezintă în mod obligatoriu costurile exacte pe care le veți primi de la companiile/instituțiile prin care veți încheia tranzacția.