2

FARA COMISIOANE in Bolintin casa cu 5 camere P+1 asfalt curent 380v canal apa

135.000 €

Bolintin-Vale, Județul Giurgiu

Nr. cam.:
5
Sup. utilă:
117 mp
Sup. teren:
465 mp
Tip prop.:
Individuală
  • • Comision 0%
  • • Locație exactă

Descriere casă

FARA COMISIOANE in Bolintin Vale locatie foarte avantajoasa, aproape de drum asfaltat, mijloace de transport, diverse Marketuri, Mega Image, Lidl, Scoala, Gradinita, etc., am placerea sa va prezint un PROIECT de 2 case cu 5 camere, regim P+1 construite din caramida Porotherm pe un teren de 1058 mp, se pot preda la stadiul actual neterminate la interior(la stadiul de GRI la 135000euro), sau terminate in totalitate gata finisate la cheie cu posibilitatea Cumparatorului sa-si aleaga finisajele intr-un anumit buget(gresie, faianta, parchet, obiecte sanitare, usile de interior la 150000euro), la exterior este izolata cu Polistiren de 10cm, la interior tavanul este cu rigips, osb, grinzi groase de lemn si in pod este facuta podea de lemn iar intre tavan si podea sa izolat cu spuma, timplarie Tripan, centrala pe gaz, incalzire in pardoseala, distribuitoare de caldura pe fiecare nivel, aleia de acces in curte betonata, gazon si aspersoare de udat gazonul montate, se preda bransate la gaze, curent Trifazic 380v, apa curenta si canalizare. PUTETI VEDEA POZE DIN TOATE, ETAPELE DE CONSTRUCTIE ! Se accepta si credit Bancar. Pentru mai multe detalii si vizionare ne putem auzii la telefon in fiecare zi, de luni pina duminica intre orele 09 - 21.30
Citește mai mult Citește mai puțin
Nemobilat Grădină Curte Curte comună Centrală proprie Încălzire prin pardoseală 2 Parcări

Detalii casă

ID anunț: X9AS010BC Copiat! 274356837 Copiat!
Actualizat în: 21 Ianuarie 2026
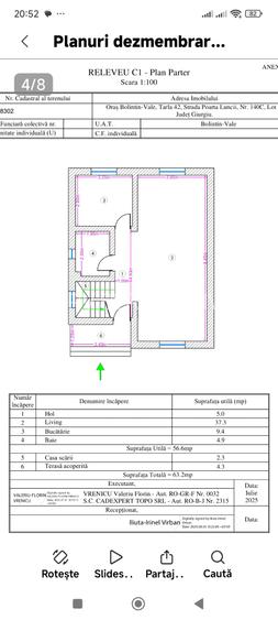
Suprafață construită: 169 mp
Suprafață desfășurată: 169 mp
Nr. bucătării: 1
Nr. băi: 2
Nr. balcoane / Terase / Logii: 1
Nr. fronturi stradale: 1
Front stradal: 16 m
Învelitoare acoperiș: Tabla
An construcție: 2025 (Finalizată)
Structură rezistență: Beton
Regim înălțime: P+1E

Utilități

Destinație
Rezidențial
Ușă intrare
Metal
Ferestre cu geam termopan
PVC
Contorizare
Contor gaz
Diverse
Scară interioară Senzor de fum
Alte spații utile
WC Serviciu Dressing Spațiu depozitare
Facilități imobil
Acoperiș
Utilități
CATV Gaze Apă Canalizare Curent trifazic
Internet
Fibră optică
Servicii imobil
Supraveghere video
Amenajare străzi
Asfaltate Betonate Iluminat stradal Mijloace de transport în comun
Comision
0%

Certificat energetic:

Clasa energetică: A

Alte detalii:

CASELE SE POT PREDA LA STADIUL DE GRI, SAU GATA FINISATE LA CHEIE !

Alte detalii despre preț:

PRETUL AFISAT ESTE PENTRU CASA LA STADIUL DE GRI LA INTERIOR !

Disponibilitate proprietate:

DA

Puncte de interes

Recreere
sports-ground
Teren sportiv
Terenuri sport aprox. 165 m
park
Parc
Parcuri aprox. 363 m

Detalii despre preț și costuri

Costuri cu achiziția

Fără credit
7.539 RON
Credit ipotecar
9.225 RON
Noua casă
828 RON+ taxe notariale

i

Costuri adiționale mai puțin știute la achiziție: taxe notariale, comisioane etc.

Proprietăți recomandate

Detalii de contact

GLOBALSERV  SERVICII  DIVERSE  SRL

Ovidiu Vlad

5.00(5 review-uri)

GLOBALSERV SERVICII DIVERSE SRL
PRO

Abonează-te la newsletter să fii primul care primește cele mai noi recomandări de proprietăți și sfaturi de la experți.

CONTACT

Creează alertă

Salvează căutarea ca să primești pe email ultimele anunțuri publicate

Case individuale cu 4+ camere de vânzare în Bolintin-Vale, Județul Giurgiu